京基云熙阁(京基云熙阁)-2025京基云熙阁首页网站-京基云熙阁楼盘详情/价格/户型
扫描到手机,新闻随时看
扫一扫,用手机看文章
更加方便分享给朋友
京基云熙阁,梧桐半山高端纯粹低密住宅,以2.84超低容积率,超1:1车位比,打造建面约89-130㎡半山云景美宅,身处罗湖繁华中芯 推窗见梧桐山景,尽享半山静谧舒居生活。
如需了解更多关于我们楼盘最新消息、剩余房源、优惠活动、房价走势等情况,感兴趣的朋友欢迎来电预约前往参观,享受一对一专属VIP看房服务,一定比中介和自媒体更便宜享受开发商内部额外最低优惠折扣。
Vip Tel:400 811 3080【开发商认证】
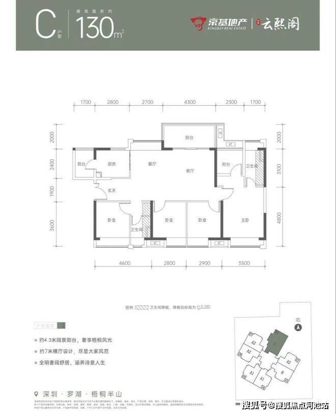
项目介绍
占地面积:约0.53万㎡
总建筑面积:约2.33万㎡
物业类型:纯住宅
总楼层:23层
容积率:2.84
总套数:151套
车位比:1:1
梯户比:2梯7户
管理费:5.5元/㎡(京基物业)
使用率:80%(不含阳台、飘窗)
交楼时间:2024年10月31前(精装)
【产权年限】70年
【开发商电话】400 811 3080
【开发商】深圳市启楷房地产开发有限公司、深圳市坳下股份合作公司
【地址】深圳市罗湖区莲塘街道梧桐山以南,云桐二路以北
交通配套
地铁口:距离2/8号线莲塘站约800米,2站莲塘口岸,6站大剧院,9站岗厦北枢纽;春风隧道(建设中)、罗沙路复合通道(规划中)交通大升级,便捷畅达全城。
项目区位图
深圳京基云熙阁开发商售楼处电话 400-811-3080(中介勿扰)
过来售楼中心看房请提前预约,可尊享内部特惠,价格包您满意!
为您安排楼盘内场专业销售人员一对一接待服务!让你买的放心,住的舒心!
免责声明🔉:
以上所发布的关于楼盘相关图文信息仅供您买房前参考,以上所有关于本楼盘的图文资料及说明请以最终以项目批文及双方在楼盘营销中心现场签署的买卖最终合同为准;本图文内容如无意中侵犯到某方权益,请联系我们将会及时处理。
声明:本文由入驻焦点开放平台的作者撰写,除焦点官方账号外,观点仅代表作者本人,不代表焦点立场。
