约410万产城综合体『鸿荣源观城』一期楼王即将加推,价格发布,总价324万起!
扫描到手机,新闻随时看
扫一扫,用手机看文章
更加方便分享给朋友

鸿荣源观城本次开盘加推1栋1单元,户型建面为89-142㎡3-4+1房,折后单价3.57万/㎡起,折后总价约318万起!
折后价格如下:
89㎡07户型:318-327万
99㎡01户型:351-366万
99㎡05户型:369-377万
99㎡03户型:387-395万
108㎡06户型:458-468万
142㎡02户型:624-648万
1栋1单元拥有无敌景观视野,前后双公园环抱,超百米楼间距,视野开阔,入则宁静出则繁华。

如需了解本楼盘更多详情,欢迎来电咨询深圳龙华鸿荣源观城开发商售楼处免费400咨询/预约电话:400-880-7297(已认证)中介请勿扰,因近期参观的人员太多,本项目营销中心暂不接受临时到访,为不耽误您的行程,过来楼盘现场参观样板房请务必记得提前来电预约,预约看房的话最终房价还能更加优惠,最终价格包您满意!
下面是我们楼盘营销中心实拍照片:

1、鸿荣源观城五大必买理由
①鸿荣源物业 品质保障
34载鸿荣源品牌,鸿荣源物业国家物管一级资质,连续五年获中国物业服务百强企业,物管总面积超1000万㎡,超3000名员工,服务超4万名客户。
②区政府旁 万亿硅谷
龙华区府所在,深圳市级中心。观澜占据龙华70%产业,拥有九龙山数字城鹭湖中心城、全国第一的医疗器械城,已入驻华为、迈瑞、华润三九等世界500强10亿+龙头超20家,以及亿航智能、乐聚机器人等无人机及机器人行业头部企业,芯片、人工智能、生物医疗等前沿产业云集,打造万亿深圳硅谷。
③多重立体交通
地下+地上+空中,高速直通小区地库+地铁4号线+3.6km空中连廊直连五大公园,近邻在建18号线和规划中22号线,高铁广深中轴城际线通达湾区。
④龙华最顶级市政配套
坐拥龙华最大文化建筑群鹭湖四馆、观澜体育中心及观湖文体中心2大政府公配,享市级中心配套。项目自带5大公园,超23公顷的生态配套深圳第一,规划8所学校,1家专科医院,焕新马坜大屋历史文化街区,多元业态于一体。
⑤商业+地铁+公园+文化
超40万㎡观城壹方商业,融合云谷公园、“观澜之钻”地标建筑、马坜大屋特色历史文化商业街区,全龄段一站式休闲购物中心,缔造龙华新商业地标。
2、七大唯一 大城配套

【唯一】功能最多、业态最丰富的大城
涵盖住宅、商业、办公、公园、历史文化、教育、文体、医疗、康养等一体的多元都市范本。
【唯一】公园+历史文化+地铁直连商业
超40万㎡观城壹方商业,融合马坜大屋历史街区和云谷公园,产品线、硬件、交通、业态等全面升级,打造深圳商业新地标。
【唯一】下楼步行贯穿五个公园的小区
步行到达生态云谷公园、横坑河西公园、横坑河东公园、锦山公园、富安公园、横坑河等生态区,享23公顷生态资源。
【唯一】拥有约3.6km空中漫步道的小区
超3倍于深业上城空中连廊,串联各业态,包含商业,住区、办公、文化休闲、生态康养等多个特色主题环游路。
【唯一】梅观高速可直通住宅地库
结合前海地下路网规划,高速直连小区地库,告别红绿灯,拒绝拥堵。
【唯一】片区内规划8所学校
3所九年一贯制学校(含华丰一所九年一贯制),5所幼儿园,12年目送式教育。

鸿荣源观城项目介绍
01
项目信息
【开发商】鸿荣源集团
【总建面】约410万㎡
【首推地块】云山府8号
【车位比】超1:1
【梯户比】4梯6户
【交楼时间】2026年12月(今年买明年住)
【物业管理费】5.3元/月/㎡
鸿荣源观城这个楼盘究竟值不值得买?
【大城首发——云山府8号】
坐落大城心脏,前后双公园环抱(建设中),核心居住区,入则宁静出则繁华,静谧宜居。
【住宅项目配套贡献面积最高】
项目更新范围占地约81万㎡,总建面约410万㎡,涵盖住宅、商业、写字楼、产业、公园、历史文化、教育、医疗、康养等一体,以前瞻视角、领先设计理念,再造国际超级综合体标杆。

国内外选评载誉无数,区域国际铸就战略高地。问鼎国际ILFA顶级荣誉以及荣获2022年大湾区城市设计大奖、广东省风景园林与生态景观协会科学技术奖规划设计(规划类)奖项。

02
户型鉴赏
①平面图

②户型图
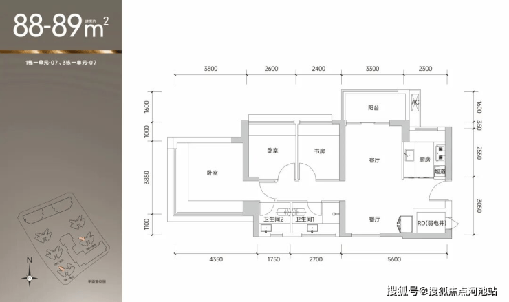
88㎡三房两厅两卫 (双娃家庭置业首选)
南北通透双厅设计
户型方正百变空间
双卫设计宜居便利
主卧270°C宽景采光


99㎡三房两厅两卫 (舒居三口之家首选)
空间奢阔静谧舒居
全南向客厅及卧室
公卫干湿浴三分离
主卧270°巨幅视野



108㎡四房两厅两卫 (品质置换首选)
全明设计大景观视野
约3.6米开间宽活阳台
全南向客厅及卧室
主卧270°C宽景采光


117㎡四房两厅两卫 (至尊置换 安家必选)
稀缺尊贵仅52席
约4米开间大竖厅
4开间朝南
景观视野采光全优

约142㎡4+1房2厅2卫 (楼王至尊 仅53席)
一线瞰景,瞰湖瞰公园,一窗尽揽天地
7.6米双联阳台, 四开间朝南
套房式主卧,双面开窗270°环幕视野



看完以上介绍,如需了解更多关于我们深圳龙华鸿荣源观城楼盘最新消息、剩余房源以及楼层、这几天房价优惠活动、在卖的户型、限购政策、房贷相关问题等情况,欢迎来电咨询鸿荣源观城楼盘开发商售楼处全国免费400咨询/预约电话:400 880 7297(已认证)中介请勿扰。
温馨提示:因近期本项目售楼中心来访的看房客户特别多,过来营销中心参观样板间采取预约制,为不耽误您的行程,过来营销中心现场看房请务必记得提前拨打售楼处400电话来电进行预约一下,预约看房价格还可以享受更多开发商内部优惠,名额有限千万不要错过,感谢您对我们工作的支持和配合,在此恭候您大驾光临实地品鉴。
免责声明:以上展示的关于深圳龙华区鸿荣源观城楼盘最新图文资料可能有部分来自网络,一切信息以最终在现场签署的购房合同为准,如图文内容无意中侵犯某方权益的话,请及时联系我们将配合处理。
声明:本文由入驻焦点开放平台的作者撰写,除焦点官方账号外,观点仅代表作者本人,不代表焦点立场。
