深圳楼市新政首个开盘《松茂御城二期》开盘去化165套!89㎡做正规四房308万起

搜狐焦点河池站 2025-10-05 22:25:00
用手机看
扫描到手机,新闻随时看

扫一扫,用手机看文章
更加方便分享给朋友

松茂御城,由松茂集团开发,总占地面积约4.53万㎡,总建筑面积约29.78万㎡,容积率4.67,绿化率40%,共分2期开发打造,后期将会有风雨连廊连接在一起,总规划2130户,停车位2321个,车位占比约1:…

深圳光明凤凰城新楼盘——松茂御城2期计划将在2025年8月底取证入市,拿证了开放样板房,9月初直接认购,目前户型图已曝光!81㎡三房二卫,89㎡四房二卫,109㎡四房二卫,135㎡五房二卫,光明户型天花板,得房率最高100%。将推出1栋A座-1栋H座住宅,共1225套房源(有一部分回迁房),二期预计价格4万/㎡,准现房精装交付。

如需了解本楼盘更多详情,欢迎来电咨询深圳光明松茂御城开发商售楼处免费400咨询/预约电话:400-880-7297(已认证)中介请勿扰,因近期参观的人员太多,本项目营销中心暂不接受临时到访,为不耽误您的行程,过来楼盘现场参观样板房请务必记得提前来电预约,预约看房的话最终房价还能更加优惠,最终价格包您满意!

下面是我们楼盘营销中心实拍照片:

松茂御城,由松茂集团开发,总占地面积约4.53万㎡,总建筑面积约29.78万㎡,容积率4.67,绿化率40%,共分2期开发打造,后期将会有风雨连廊连接在一起,总规划2130户,停车位2321个,车位占比约1:1.09。

首推的松茂御城1期,总占地面积约1.4万㎡,总建筑面积约10.21万㎡,共由4栋住宅组成,其中1栋A/B座住宅33F,1栋C座住宅32F,2栋公寓32F,共规划905户,其中商品房279套,回迁房112套,公租房124套,另外还有390套商务公寓,停车位773个。

本次将推出的松茂御城2期,总占地面积约3.13万㎡,总建筑面积约20.74万㎡,计容建筑面积约16.21万㎡,容积率4.55,绿化率40%,共由8栋总高31-32层高的住宅组成,其中1栋A/B/C/D/E/H座住宅32F,1栋F/G座住宅31F,2栋规划1所幼儿园。

松茂御城小区里面总规划1225户,全部都是商品房,是否有回迁房暂不确定,大概率是没有的,其中1栋E座是楼王2梯4户,1栋A座跟1栋H座2梯6户,其它栋数2梯5户设计,地下室有2层,规划1548个车位,其中充电桩车位465个,车位比约1:1.26。

松茂御城规划平面图

楼盘基础信息

1、开发商:深圳市松茂房地产集团有限公司

2、物业公司:深圳市海天泰物业管理有限公司

3、物业管理费:3.8元/㎡

4、总占地面积:84.53万/㎡

5、总建筑面积:29.78万/㎡

6、开发商电话:4008807297

7、绿化率:40%

8、产权年限:2022年7月25日-2092年7月24日(70年)

9、总户数:2130户

10、总栋数及楼高:12栋,31-32F

11、梯户比:2梯4户/2梯5户/2梯6户

12、车位数:2321个

13、车位占比:1:1.09

14、交楼时间:一期现房,二期准现房

15、交楼标准: 精装修

实景图

效果图

园林营造出大型内庭花园,项目设计获得国家绿色建筑设计二星级的标准。

效果图

整体布局和谐流畅,地势错落有致,移步异景,创造专享生活逸趣;

高台府邸的围合设计,营造舒心从容的归家仪式感。

松茂御城平面图

灰色为回迁房物业

松茂御城户型图欣赏:

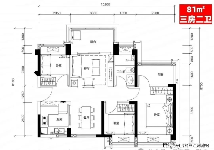
H01户型:81㎡三房二厅二卫

H02户型:81㎡三房二厅二卫

H03户型:81㎡三房二厅二卫

G01户型:82㎡三房二厅一卫

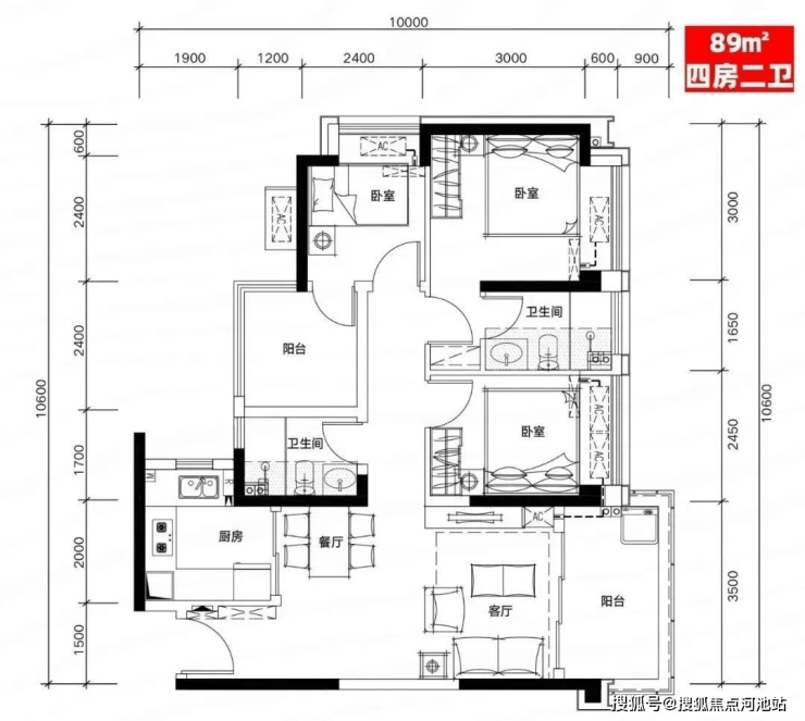
B01户型:89㎡四房二厅二卫

B02户型:89㎡四房二厅二卫

B03户型:109㎡四房二厅二卫

G01户型:109㎡四房二厅二卫

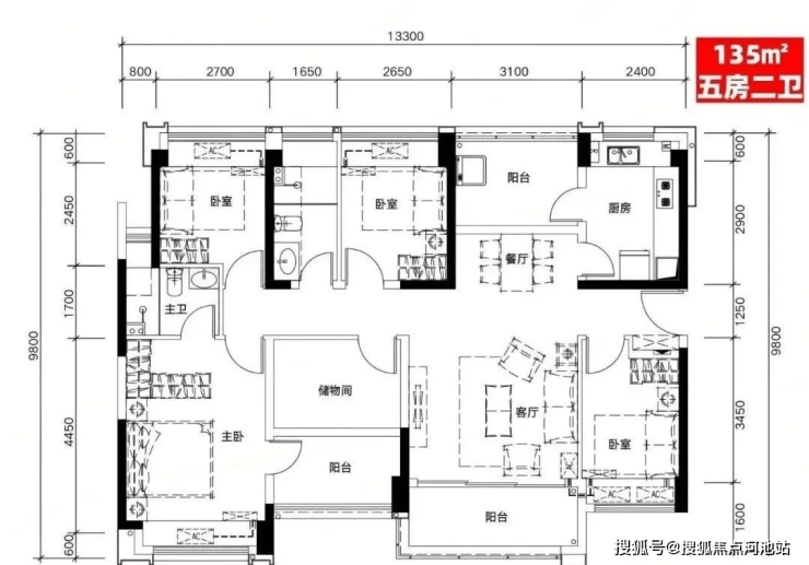
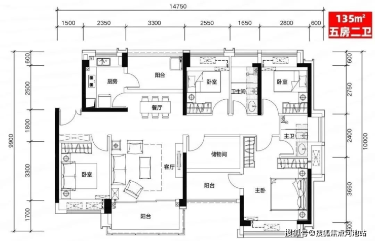
G02户型:135㎡五房二厅二卫

E户型:135㎡五房二厅二卫

松茂御城配套方面

松茂御城自带有约1.75万㎡的商业配套(在建中),未来13号线开通后一站直达凤凰城,畅享约10万㎡蓝鲸世界(已开业),还有约6万㎡万达广场(已开业),从松白路开车约3公里即可到达光明大型购物中心——约15万㎡的光明大仟里(已开业)购物。

效果图

在建13号线月亮路站直线距离楼盘约600m,从月亮路站乘坐地铁1站即可到达凤凰城,通达南山科技园、深圳湾口岸,对于在南山上班的购房者来说,将大大减少通勤时间。

示意图

同时从凤凰城站可以换乘6号线,通达深圳北站及福田区。

学校配套:

根据2024年光明区教育局最新的学区划分,小学学区划分在教科院实验小学,秋硕小学,龙豪小学,光明实验学校,初中学区划分在深圳中学光明科学城学校二初中部,凤凰城实验学校初中部。

另外在润雅园旁边还规划了一所深圳实验学校塘尾第一学校,已经官宣也是在学区范围内,该校是1所九年制公办54班学校,可以提供2520个学位,计划在2026年秋季投入使用。

示意图

松茂御城周边有丰富的生态配套

示意图

南面隔窗相望就有约58万㎡明湖城市公园及约42.9万㎡13号线重点城市更新项目的公园绿地(规划中);

北面有约1.2万㎡市政公园(规划中),市政公园由松茂集团代建,将成为项目第二室外空间;

西面有塘尾街心公园约0.5万㎡;

东面则有约7.45万㎡的鹅颈水湿地公园;

东面还有总长度约6.8Km的茅洲河碧道。

茅洲河实景

而茅洲河作为深圳市第一大河,将被打造成光明区的“塞纳河”,环境十分优美。

光明区凤凰街道轨道13号线重点城市更新片区(规划中)将轨道站点周边土地资源重新整合,利用轨道沿线的土地开发弥补轨道交通建设与运营缺口的运作模式。

13号线重点城市更新项目

根据光明区政府部署,开发潜力地区约196万㎡,总建面约383万㎡,规划城市住宅建筑面积约172万㎡、绿化用地建筑面积约79万㎡、教育用地建筑面积约8万㎡、产业用房及产业研发用地建筑面积约144万㎡、商业/办公/酒店建筑面积约20万㎡。(数据来源:深圳市光明区城市更新和土地整备局)

13号线重点城市更新项目示意图

同时13号线重点城市更新项目(规划中)开发理念是以水系为链,未来打造共融共通的生态绿廊,未来整合片区蓝绿空间,将完善片区基础设施和公共配套设施,助力产业转型升级,促使光明城市面貌整体得到质的提升,集居住、交通、生态、商业、办公、文体、教育、医疗于一体,未来片区自成舒适便捷生活区,将会打造成生态、宜居、乐业的综合新城区。

松茂御城项目优劣势

1、区域板块,松茂御城不是当前的光明核心地段,不过从塘尾这么大面积的规划旧改体量来看,以后板块属性也不会差,毕竟有人口力支撑。

2、买房3件套,配套的深实验塘尾学校+深中光明科学城学校初中部,拥有2所四大名校加持,光明的生命线13号地铁线月亮路站距离400米,商业方面短期来看是短板,不过这么庞大的居住社区在周边,以后的商业体量肯定是不会差的,也会有大型商业会慢慢落地。

3、准现楼,松茂御城2期已经是准现房,所见即所得,不用担心烂尾或质量问题,外立面也是全部贴的瓷片,不是现在常见的外墙涂料。

4、得房率,松茂御城虽然是旧规楼盘,户型得房率明面上看备案数据是在77.27-79.26%,但是实际得房率是达到了100%的,也是光明得房率最高的楼盘,绝对名副其实,户型也做的很很好。

5、居住纯粹,松茂御城2期全部都是商品房,是否有回迁还不确定,相对于1期的居住人群纯粹很多,一期这里除了商品房外,还有回迁房+公租房+公寓,总共905户,其中商品房仅279套,如果只看一期地块,占比是不到31%的,并且都是共用的小区花园,包括公寓都是没有区分开的,都有共享园林。

看完以上关于深圳光明松茂御城楼盘相关的图文介绍,如果您对我们楼盘感兴趣的话,建议您可以联系我们开发商售楼处全国免费400热线电话:400-880-7297(已认证)在线进行免费咨询或对接楼盘现场销售人员(中介请勿扰),我们可以为您安排本楼盘现场销售一对一在线服务,比如说把楼盘的最新图文资料、样板房视频、通过手机的方式发给您看一看、您不需要立即过来楼盘现场就能够对我们楼盘熟悉个大概,还可以告诉您关于我们松茂御城楼盘对比周边楼盘的优点缺点、楼盘这几天最新的优惠政策、银行政策以及LPR利率、积分入学,等相关购房方面的问题都给你讲解的明明白白,让您买房不踩坑,毕竟买房是大事。找现场销售咨询并不需要额外花钱,反而更省钱,而且可以避免一些中介虚报价格浪费你宝贵的时间和精力,我们会把额外认购优惠、按时签约优惠、房贷优惠、一次性付款的优惠都告诉您,希望您能通过这个平台,全面了解我们的楼盘信息并顺利、开心的完成购房流程。

免责声明:以上展示的关于深圳松茂御城楼盘最新相关图文资料可能有部分来自于网络,一切信息以最终在在我们楼盘现场签署的购房合同为准,如图文内容可能无意中侵犯某方权益的话,请及时联系我们将配合处理。

声明:本文由入驻焦点开放平台的作者撰写,除焦点官方账号外,观点仅代表作者本人,不代表焦点立场。