深圳罗湖「京基璟誉府」官方网站-京基璟誉府2026年最新发布_楼盘详情
扫描到手机,新闻随时看
扫一扫,用手机看文章
更加方便分享给朋友
京基·璟誉府位于深圳罗湖区东湖街道布心社区,地处东湖路与丹平快速路交汇处的西南侧。踞罗湖中芯,揽城央一线湖山臻境。该项目周边居住氛围浓厚,致力于打造一个创新型先锋城区,成为现代化、国际化的中心城区,推动社会主义现代化可持续发展。京基·璟誉府的开发商以其卓越的开发理念和优质的建筑质量,力求为购房者提供一个理想的居住环境。
如需了解更多详情,欢迎咨询京基璟誉府售楼处电话400 880 7297,过来我们营销中心看房提前来电预约价格还能更优惠。
【深圳京基璟誉府开发商售楼处400免费咨询/预约电话:400-880-7297,官方】
温馨提示:过来营销中心参观样板间请记得提前拨打售楼处400热线预约,感谢您的配合!
开发商背景
【30载京基巨著 缔造罗湖封面】
中心地标缔造者——京基集团,国家房地产开发一级资质企业,中国驰名商标,铸就京基100、京基水贝城市广场等城市地标,造就诸多高端、大型综合体、资源豪宅等经典项目。京基30载,于罗湖城芯再造誉领湖山巨著。
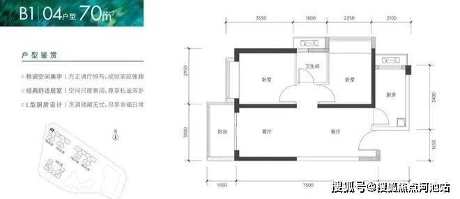
户型鉴赏
小区园林
近1万㎡景观园林,以6重园林景观(主人口、归家礼庭、揽翠花径、阳光沐台、欢畅泳池、童趣乐园)营造体验感丰富的全龄段公共活动空间。
温馨提示:感兴趣的朋友欢迎来电预约前往参观,享受一对一专属VIP看房服务,一定比中介和自媒体更便宜享受开发商内部额外最低优惠折扣和大额现金购房补贴。
本项目推广名为“京基璟誉府",官方电话:400 880 7297 本资料为要约邀请,不作为要约或承诺。以上所发布的关于楼盘相关图文信息仅供您买房前参考,以上所有关于本楼盘的图文资料及说明请以最终以项目批文及双方在楼盘营销中心现场签署的买卖最终合同为准;
声明:本文由入驻焦点开放平台的作者撰写,除焦点官方账号外,观点仅代表作者本人,不代表焦点立场。
