深圳湾沄玺 295㎡四房四卫,横厅阔景阳台,全明格局,多孩家庭三代同堂改善首选
扫描到手机,新闻随时看
扫一扫,用手机看文章
更加方便分享给朋友
最新消息:最后一栋小高层计划4月底开盘加推 !目前已经启动诚意登记,本次开盘推出建面约202平米~225平米~258平米~1100平米户型,深圳顶级豪宅《 深圳湾澐玺 》 本次推售爆抢户型面积段产品,中间楼栋最好景观,
温馨提示:因我们项目参观样板房采取预约制,过来现场参观需提前拨打开发商电话:400 800 9113 进行提前预约,到现场需验资1000万,请知悉!
最后一栋参考价格及折扣优惠:澐玺南区首推2栋2单元备案总价3250万-1个亿左右,单价约15-24万/㎡!共162套216-287-295-305-345-409-430㎡。
开盘折扣:开盘当天减100万,仅限开盘当天享受!准签98折!
叠加:首付3成99折 Or 首付5成98折 Or首付7成97折Or全款96折,折后叠加完再减100万,可以说价格完全超乎想象!超级性价比!按照正常首付折后13.7万/㎡起!本次开盘折扣仅限开盘当天,错过不再有!秒杀整个深圳湾同等次新二手房!
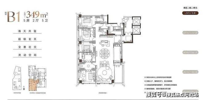
加推户型图欣赏(仅供参考)
仍有房源在售官方户型!
上个月南区首推的房源仍有少量优质房源在售!可随时预约参观认购!
以往开盘回顾:
第一次开盘130亿!
深圳湾澐玺首开即封神!2025年11月30日该楼盘开盘,348套房源单日售罄,其中500㎡、700㎡及1150㎡天际大平层最先售罄,成交均价约18万/㎡,总销售额突破130亿元,刷新2025年全国单一楼盘开盘销售纪录。
第二次开盘:
2026年3月22日下午,备受市场关注的深圳湾澐玺项目南区新品热势加推,于
深圳湾安达仕酒店盛大开盘,推出162套建面约216-426㎡大平层住宅。
开盘当日,意向客户比原定时间早早抵达开盘现场,安达仕宴会厅涌现大量意向客户集中排队的现象,现场选房等候区更是氛围火热。现场采用线上选房的形式,正式选房系统启动后,现场意向客户纷纷火速锁定房源,选到心仪房源的客户激动欢呼,未抢到心仪房源的客户纷纷问询,持续驻守现场等候认购结束后的候补名额,现场热度持续攀升,尽显深圳湾澐玺作为深圳湾核心资产价值的强大吸引力。
深圳湾澐玺本批次加推销售额超50亿元,去化约112套,去化率约70%,其中建面约216㎡户型全部售罄。
刚开年豪宅迎来小阳春!
深圳湾澐玺整体项目效果图看着十分高大上,4栋住宅,1栋公寓,采用铝板及单元窗设计,大部分户型可瞰海景!实用率将达到92%以上,品质和景观都十分值得期待!
深圳湾最后一块绝版宅地,开启天际生活新纪元,在深圳湾这片全球瞩目的热土上,一座划时代的人居作品——深圳湾澐玺正缓缓揭开神秘面纱。这一由华润置地与中海地产联袂打造的城市地标,不仅凝聚了全球顶尖设计智慧,更以创新的产品策略重新定义深圳湾顶奢生活的价值标准。
稀缺区位:项目坐落于深圳湾后海CBD总部基地核心,与华润“春笋”为邻,周边聚集数十家世界500强与企业总部,是深圳湾当前乃至未来都极具稀缺性的住宅用地。
项目规划有垂直泛会所满足全龄社交,尊崇地库重塑归家礼序,顶级商业与物业护航日常。高线公园会所更以“立体社交心脏”之姿,集恒温泳池、高端健身与云端私宴于一体,联袂华润“礼仕”服务,以高效、私密、专属、雅致的4S理念,奉上一对一管家定制生活。通过主仆分径、五级安防与保密协议,构筑无形的隐逸屏障。华润高品质物业服务不仅提供日常保障,更以圈层活动与终身守护,成为业主资产与生活的隐形引擎。除悦府住宅后海中心区近十余年仅有公寓产品入市,从深圳湾一号到深圳湾瑞府、恒裕深圳湾,以上公寓产品无一不是深圳顶级豪宅价格标杆!
深圳湾澐玺以“框架核心筒”结构,为业主预留可自由重构的“X空间”,彻底告别传统户型的妥协。室内装修携手傅厚民、渡边智昭等国际大师,提供定制化精装方案;并支持厨电系统深度定制。在这里,拒绝标准答案——顶豪客户的偏好,就是设计的核心。
(概念方案示意图,非最终效果,仅作参考)
项目层高都是3.6米、都设双电梯入户,是深圳住宅天花板。
能让业主回到家就内心就能平静下来才是顶配。
项目打造了三维静音系统,从外到内构筑15重降噪闭环:
外御喧嚣——三玻·中空·超白玻玻璃与复合幕墙,将繁华静音于窗外;
上阻下隔——18-30cm加厚楼板、同层排水与电梯四重保障,让邻里生活互不惊扰;
内守宁和——静音门系统、大金三重静音空调,于细微处呵护每刻浅眠,真正的隐奢,从一声不响开始。
示意图
项目更有安心的智慧系统,华为全屋智能赋予的“无感守护”。3D人脸门锁实现无感归家;厨房自动监测水险气患,主动关阀开窗;夜间离床,灯带自动亮起,不扰伴侣。真正的安心,是科技隐于无形——华润和中海做的,是让业主感觉不到任何存在,却始终被周全守护。
价格策略揭秘:
深圳湾澐玺作为深圳湾顶级豪宅市场的全新风向标,其价格策略备受瞩目:周边天花板级豪宅单价已站上20万+且一房难求。这里不是造梦,不是画饼,都是“确定的现在”与“可见的未来”,很适合各位大boos冲。
尽管全国高端市场波动,但深圳湾核心区的一手成交价和典型二手成交价依然坚挺,这印证了其不可复制的稀缺性。
华润深圳湾悦府2017年入市,开盘均价约12.8万,二手成交价曾高达25万+/㎡,悦府一期大户型当前二手参考价格依然达19-22万/㎡,而且少有放盘及二手成交。
深圳湾一号T4栋今年成交了一套608㎡的高区房源,总价约2.8亿,折算单价约48万/㎡,恒裕深圳湾在售公寓价格约15-30万/㎡,这片区域的价值由深圳湾悦府、深圳湾瑞府、恒裕深圳湾、深圳湾壹号等顶级项目的价格构筑了坚实的“价值护城河”。
地块东面是中铁南方总部大厦、中建科工大厦、喜之郎大厦、钢结构博物馆等;南面则是华强方特大厦;北面则是中海油大厦。
深圳湾澐玺的亮相,为深圳顶级豪宅市场带来了全新选择。项目融合了世界级的地段、全球大师的设计、顶级配套资源,必将成为2025年深圳楼市最具影响力的顶奢项目。
对于追求品质生活的高净值客群而言,这是占据深圳湾核心资源的最后一次机会。以惊喜价格,收藏世界湾区至臻资产,见证时代作品诞生。
看完以上关于我们深圳湾澐玺楼盘最新图文介绍,相信你一定还有一些疑问的?楼盘真实优缺点、当前限时优惠政策、房贷最优技巧、积分入学落实细节?不用纠结,欢迎拨打深圳湾澐玺开发商售楼部电话:400 800 9113(官方认证·可查可验,中介或自媒体勿扰),我们可以帮您安排本楼盘现场销售为您一对一在线解答,避开中介虚报房价;如果您是从外地专程过来深圳买房置业,看房不方便的话,也可以预约我们安排免费专车接送看房【温馨提醒】立即拨打深圳湾澐玺开发商官方400电话进行预约看房,可尊享专属额外折扣优惠,最终价格包您满意,限时72小时有效!
声明:本文由入驻焦点开放平台的作者撰写,除焦点官方账号外,观点仅代表作者本人,不代表焦点立场。
