深圳【望海玥家园】公寓389套,36㎡—60平户型,蛇口半岛城邦旁一线海景,清盘倒计时
扫描到手机,新闻随时看
扫一扫,用手机看文章
更加方便分享给朋友
好产品不缺购买力,这一定律在任何市场周期下似乎都成立,尤其在核心地段的稀缺资产上,表现得更为突出。
从成都豪宅单价突破22万/㎡,到上海单日新房成交达到131.41亿,无不印证着“好产品是永恒的硬通货”。
深圳市场同样延续这一趋势。
以深圳湾新盘望海玥为例,近期热度持续攀升。
项目在48小时累计到访1100组,劲销了78套,工作日期间更是成交过百套,堪称同期深圳公寓市场的销售标杆。
如需了解本楼盘更多详情,欢迎来电咨询深圳望海玥开发商售楼处免费400咨询/预约电话:400-880-7297(已认证)中介请勿扰,因近期参观的人员太多,本项目营销中心暂不接受临时到访,为不耽误您的行程,过来楼盘现场参观样板房请务必记得提前来电预约,预约看房的话最终房价还能更加优惠,最终价格包您满意!

实景图
尤为引人关注的是,项目不仅吸引了大量外地客户,并出现多组客户一次性购入多套、甚至半层的情况,更有客户首次到访就买下了整层,销售直呼“要签字的合同堆成了小山”。
▲图源网络
实际上,进入9月以来,市场情绪逐步升温、资金加速入场,这当中美联储降息可谓是市场底出现的契机,随着降息周期开启,后续将引发全球货币秩序重构、货币政策空间加大、居民储蓄流向变化等一系列连锁反应。
在这一宏观环境转变下,资金的逻辑正发生根本性改变,“现金为王”的观念逐渐被打破,更多资金将寻求更具增值潜力的出口,反映到股市楼市上,优质资产将迎来重估。
而作为深圳最优质资源集中地的区域,深圳湾沿线资产因其持续的稀缺性与抗风险能力,被视为真正能够穿越经济周期的核心资产。
01/
2025年10月推高区新品
深圳湾景观再升级
买家之所以敢半层、整层地出手望海玥,关键在于其不可复制的稀缺属性——深圳湾的海景房。
深圳湾的地段价值已成共识,区域内聚集了最具代表性的高端住宅,最贵的房子几乎都集中在这了。
然而这几年想要入驻深圳湾实属太难,一方面是供应量的问题,一方面是总价的事实。
目前深圳湾沿线上的资源型豪宅,大多在2015-2020年期间开盘,像恒裕滨城、双玺只能去拼二手房。
近几年虽有个别新盘入市,但已基本去化完成,选择并不多。
更重要的是,沿线从住宅到公寓、商办,均以超大户型为主,动辄几千万的入场门槛。
目前区域内尚未入市且具备海景资源的项目,主要有深圳湾澐玺、中信信悦湾、半岛城邦5期,其中:
澐玺户型约200㎡起步,预估均价15-20万/㎡,总价可能要2700万起步;
信悦湾约210㎡起步,市场预测要到17-18万/㎡以上,至少要先准备好3000万;
半5目前未见动工,即便后期入市预计均价要15万/㎡以上。
不难看出,“供应少+大户型+高总价”,是深圳湾沿线市场最鲜明的特征。
在这样的背景下,想进场深圳湾并非易事。
而望海玥的出现恰好填补了这一空白,为市场提供了“另一种可能”:
不仅拥有一线海景资源,约36㎡起的户型设计更大幅降低了入驻门槛。
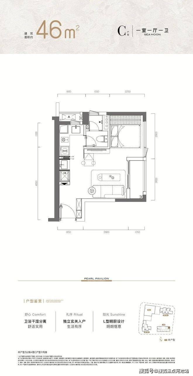
▲户型示意图(点击可放大图)
虽说是小户型产品,但项目在设计上仍考虑到了“灵动可变”这层,业主可根据需求的不同进行空间打造。
以44㎡为例,如果对私密性追求高,需要独立的睡眠区,可以是“一房一厅”的布局,打造出一个独立的卧室。
如果更喜欢个性化的空间,这时可以把卧室的这堵墙拆掉,打造为开放式的大开间,带给空间更多呼吸感。
▲创意展示样板房实景图,仅供参考,非最终交付标准,具体以实际交付标准为准(左右滑动)
值得一提的是,据悉项目10月1日起还将推出高区全新新品,进一步丰富产品线。
新品的推出将带来两大升级:
选择更灵活——36㎡起步满足投资需求,60㎡以上户型兼顾了自住与资产配置;
景观更优越——原本低区南向也能看海,而新品位于23层之上,深圳湾景观优势更显著。
▲望海玥效果图,仅供参考
更好的海景视野,不仅仅是视觉上的享受,更意味着更高的资产价值与生活品质。
“首先,在深圳海景一直是房产保值增值的重要筹码,尤其西部海景未来在流通市场中具备更强的议价能力。
这一点早已被市场反复验证。
像深圳湾沿线上的项目,顶得住市场波动的考验,从入市至今价格实现了数倍涨幅。
而且具体到成交表现上,海景与非海景也存在明显价差。
比如招商玺,同类户型有海景的成交价要高出300多万,目前123㎡直面海景的高区房源成交总价去到了2000万。
红树西岸的海景房与非海景房,挂牌上也有2万/㎡左右的价差。
▲红树西岸挂牌价,截图自贝壳找房
“其次,开阔海景的居所,也意味着更高的居住舒适度与生活幸福感。
透过望海玥全景落地窗望出去,直面渔人码头和深圳湾内湾,远眺可看海景。
不妨想象下这样的生活场景:
清晨醒来,推窗见海,一整片蔚蓝悄然唤醒一整天的好心情;
傍晚时分,华灯初上,海天之间的日落与城市灯火交织,轻松洗去日间的忙碌与疲惫。
关键等到渔人码头焕新完成,窗前风景将再添层次。
白日里,可赏码头鱼获交易的热闹鲜活;
夜幕下,则观渔灯摇曳于海浪之间的静谧浪漫。
从朝霞到夜幕,窗景随时间流转而变化,生活是惬意且从容的。
▲望海玥效果图,仅供参考
值得一提的是,除了更好的海景体验外,为了更好地满足居家需求,平衡功能性与舒适度,创意样板房在收纳与场景上下足了功夫。
02/
酒店式服务体系
让生活多了些可能
如果说“户型+景观”是望海玥价值的第一层体现。
那么令其在市场中脱颖而出的第二重竞争力,则在于“软性价值”——精心构建的“海玥酒店式服务体系”。
不同于传统出租型公寓的常规服务模式,望海玥为业主定制了一套对标国际一流标准的酒店式服务机制。
基于这个服务体系,提供了酒店服务类、业主权益类、增值服务类三大板块服务,其内容已远超常规物业管理范畴。
具体而言,这是一套覆盖从日常家政、健身课程,到出行安排、住宿礼遇,甚至宠物照料的全方位服务,如此一来贴心解决业主生活中的大小事务。
试想下:
太忙没时间做清洁?
每周的卫生打扫、衣物送洗,省下的时间精力可以更好地投入到工作中。
想养宠物又有顾虑?
不在家的时候,宠物是可以被委托照料的,哪怕猫砂清洁、宠物除毛也只需一个电话预约就能实现。
平日里想要动起来?
楼下就有瑜伽、健身操等课程,在高效、专业环境中开启健康生活。
突然有出行的计划?
别忘了,作为望海玥业主是有专属出行礼遇的,能享受多家酒店住宿与商场消费权益,出行可以更便捷、舒适。
▲望海玥社交空间实拍图
以上种种体验都是今后业主所享受到的,已经不输于一些豪宅的增值服务。
从更深层次来看,这不仅是一次简单地服务升级,更是一种生活方式的革新,让业主从日常杂务中解放出来,把时间还给生活本身,拓展日常的宽度与可能性。
更重要的是,酒店式服务的引入,也为项目的资产价值注入了差异化的竞争力。
无论是住宅还是公寓,物业服务对于房子的影响都是长期而深远的,它是资产增值的隐形杠杆。
据统计优质物业的小区,其房价平均比普通小区高15%-30%,租金溢价可达20%以上。
以招商蛇口旗下的泰格壹棠公寓为例,同样提供酒店式服务,其75㎡1房可以租到2万+/月,要比周边同面积公寓高出七八千。
服务赋能所带来的溢价能力,由此可见。
▲泰格壹棠公寓挂牌租金
要知道在当前公寓市场中,真正配置了高端酒店式服务的项目少之又少。
而今,招商蛇口将其40余年的高端物业服务与服务式酒店运营管理经验,搬到了望海玥项目上,这无疑是对居住品质与资产回报的双重保障。
03/
一圈一路一头
三个确定性的加持
深圳湾的价值无需多言,这里有深圳湾超级总部基地、后海金融服务总部基地,看到的都是确定性。
但这次对片区的全面踩盘后,壹地产认为抛开公认的2大总部基地价值,更需要从“一圈、一路、一头”三个维度去分析望海玥的价值。
“一圈,环深圳湾文化艺术生活圈。
2024年深圳落地了“环深圳湾文化艺术生活圈”规划,这条约15KM的深圳湾海岸带上,不仅要有总部集聚区、滨海国际中心,也要有世界级文化艺术区。
而望海玥正位于“世界级文化艺术区”内,日后这里将是一个特色鲜明、生动有趣的城市体验系统,国际范+艺术范将是其独有的气质,打造成深圳新的城市名片和文化旅游目的地。
值得一提的是,深圳湾沿线上有两个内湾,一个在深圳湾1号那里、一个在望海玥这边:
深圳湾1号板块,是深圳湾文化广场、深圳人才公园等重要元素的聚集地。
望海玥一带,则以深圳歌剧院、渔人码头、音乐公园、海上世界等场景为主导的世界级文化艺术区。
相较之下,望海玥一带更具特殊性,在于其多元化的文化与艺术氛围,以及更加丰富的休闲与生活体验。
从深圳歌剧院的艺术文化生态圈,
到蛇口渔港的都市休闲港湾,
再到蛇口老街的休闲乐活圈,
以及海上世界的改革开放与时尚文化全域博物场,
会发现是四个差异化特色的复合活力区在此汇聚、融合,共同构建了一个艺术与生活完美融合的世界级艺术湾区,成为深圳最具有代表性的城市名片之一。
“一路,串联顶豪、地标、公园的望海路。
在深圳,除了让大家印象深刻的深南大道、粤海街道外,望海玥所在的望海路同样是标志性大道,串联起了顶豪、地标、公园以及海景。
摊开地图,东起东滨路、西至兴海大道的望海路,汇聚着深圳湾1号、恒裕滨城、半岛城邦、元湾府、招商双玺等一众顶豪。
与此同时,深圳歌剧院、渔人码头、海上世界、K11等地标建筑,更是沿着望海路从东至西依次排列,将艺术与繁华完美融合。
当下,望海玥对面的鱼人码头正在升级改造中,不远处的歌剧院正在建设中。
据悉渔人码头的升级改造的优胜方案,出自2020年东京奥运会主场馆设计师隈研吾之手。
等到渔人码头升级完成,跨海步行桥、博物馆、渔港配套建筑都将兑现。
而体量是悉尼歌剧院3倍的深圳歌剧院建成后,又将是世界级艺术殿堂,成为世界级旅游目的地。
说实话,一条6.9公里的望海路能汇聚如此多的顶级资源,在深圳是独一无二的存在,未来也很难再有如此集大成的区域。
“一头,坐拥多个地标的东角头。
这里的“东角头”,既是指歌剧院、中信东角头项目的所在板块,更是望海玥的“地铁站”名。
从当前兑现情况看,望海玥属于双地铁交汇项目,距离2号线与13号线交汇的“东角头”站仅约200米。
要知道,2号线是真正意义上的豪宅线。
从东到西贯穿了蛇口、深圳湾、华侨城、香蜜湖等深圳知名豪宅区。
13号线则是科创线+文旅线。
往北串联起了后海总部基地、深超总、科技园、留仙洞等深圳最重要的高新区和总部基地。
往南串联起了人才公园、深圳湾公园、歌剧院等文化艺术与休闲景观。
从这点看,2号线和13号线的地位和含金量是毋庸置疑的,为望海玥的价值提供了强有力的支撑,给出了确定性。
重点是今后从项目出发,可1站到达歌剧院、2站畅游海上世界,别人羡慕的国际生活圈就在家门口。
实际在地产圈,有这样一个买房公式:
楼市价值要看城市和土地,房子价值是看地段和配套。
虽说这两年产品力成了主旋律,但产品力可以超越,而地段价值不可代替。
而这正是望海玥能和多数项目拉开差距的关键。
深圳湾的资源型产品,向来是“卖一套少一套”的限量版。
某种意义上来说,望海玥的出现改写了规则,打破了千万级豪宅对海景资源的垄断,为更多人开启了低成本入驻深圳湾,实现资产收租与品质居住的可能。
而10月即将推出的高区海景新品,更是让一线海景从遥不可及的奢望,变成触手可及的日常。

【望海玥开发商售楼处咨询/预约电话☎️ 400-880-7297(中介勿扰)】
✅ 本项目暂不接受临时到访,过来参观样板房请记得提前来电预约!
✅ 为您安排楼盘现场销售全程一对一在线解答,给您更贴心的体验!
温馨提醒:我们楼盘开发商售楼处400电话没有设置任何所谓的“分机号”,拨打前请仔细甄别,注意保护个人隐私!谨防上当!
免责声明:
以上所发布的关于深圳蛇口望海玥公寓项目相关介绍详情仅供您购房前参考,以上所有关于本楼盘的图文资料及说明请以最终项目批文及双方在楼盘营销中心现场签署的买卖最终合同为准;本图文内容如无意中侵犯到某方权益,请联系我们将会及时处理。
声明:本文由入驻焦点开放平台的作者撰写,除焦点官方账号外,观点仅代表作者本人,不代表焦点立场。
