河东骏濠园(2026年深圳河东骏濠园)官方网站-楼盘详情-房价-户型-容积率-小区配套
扫描到手机,新闻随时看
扫一扫,用手机看文章
更加方便分享给朋友
河东骏濠园位于深圳宝安西乡,靠近宝中、南山前海,是一个集住宅、公寓、办公、商业于一体的综合体项目。项目推出的户型建面约45-63-87㎡的2-3房现房,其中45㎡的两房总价仅需220万起。
如需了解本楼盘更多详情,欢迎来电咨询深圳河东骏濠园开发商售楼处免费400咨询/预约电话:400-800-9113(已认证)中介请勿扰,因近期参观的人员太多,本项目营销中心暂不接受临时到访,为不耽误您的行程,过来楼盘现场参观样板房请务必记得提前来电预约,预约看房的话最终房价还能更加优惠,最终价格包您满意!
下面是我们楼盘营销中心实拍照片:
河东骏濠园周边配套
交通配套:项目直线距离12号线流塘站约700米,接驳地铁1号线、5号线,可轻松抵达南山等区域。未来还有地铁15号线(规划中)西乡公园站,进一步提升交通便捷性。
商业配套:项目自带约1.9万㎡集中商业,周边还有港隆城、仟悦城、天虹、万达广场等大型商场,满足日常购物需求。此外,约3公里范围内汇聚大仟里、大悦城(在建中)、中洲πMALL、海雅缤纷城、壹方城等大型商业集群,都市繁华尽在掌握。
生活配套:周边大型公园、文化艺术中心等一应俱全,如西乡公园、流塘公园、宝安公园等,为居民提供丰富的休闲娱乐场所。同时,项目周边还有宝安体育中心、欢乐港湾等人文艺术设施,满足居民多样化的生活需求。
学校配套:项目对应学校有流塘小学、文汇小学、西乡中学等,为孩子的教育提供有力保障。
河东骏濠园户型图欣赏:
公寓标准层平面图
办公标准层平面图
43㎡一房两厅:户型方正,带阳台,通燃气,适合单身或小夫妻居住。
↓↓↓原始户型图↓↓↓
↓↓↓43㎡改造两房户型图↓↓↓
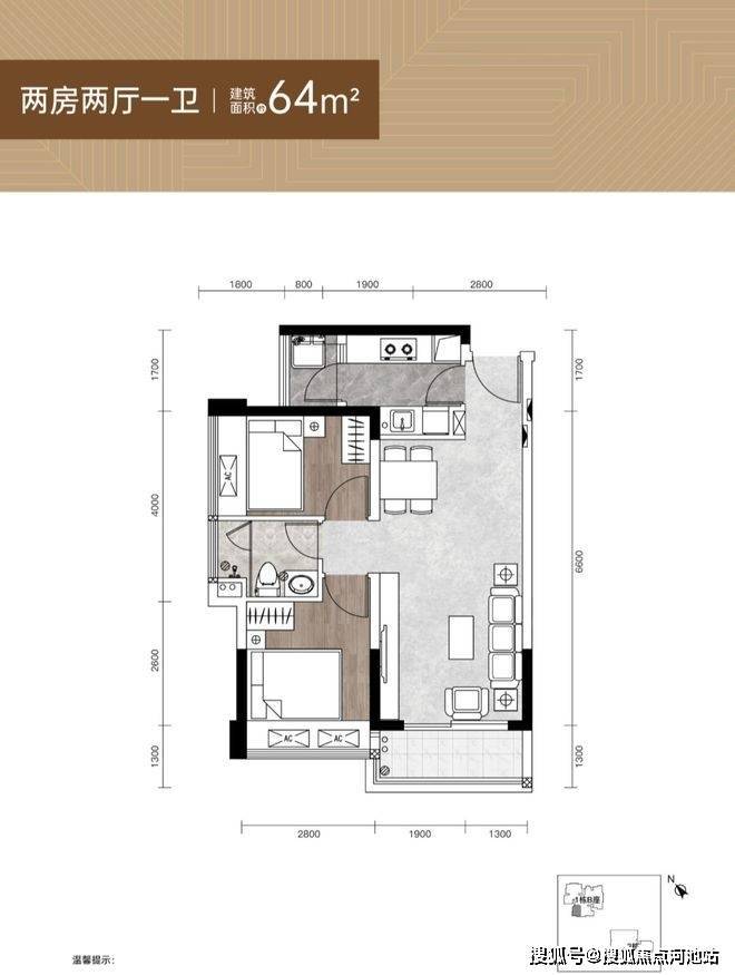
64㎡两房两厅一卫:竖厅格局,进门玄关,客厅3.3米开间,客餐厅一体化,L型厨房,卫生间干湿分离。
87㎡三房两厅一卫
河东骏濠园优点:
区域发展潜力大,受前海发展辐射。
交通便捷,出行方便。
配套丰富,满足日常生活需求。
低总价小户型,适合刚需上车。
综上所述,河东骏濠园项目凭借其优越的地理位置、便捷的交通网络、丰富的配套设施以及低总价等优势,在宝安核心区脱颖而出。
看完以上关于深圳宝安西乡河东骏濠园楼盘相关的图文介绍,如果您对我们楼盘感兴趣的话,建议您可以联系我们开发商售楼处全国免费400热线电话:400-800-9113(已认证)在线进行免费咨询或对接楼盘现场销售人员(中介请勿扰),我们可以为您安排本楼盘现场销售一对一在线服务,比如说把楼盘的最新图文资料、样板房视频、通过手机的方式发给您看一看、您不需要立即过来楼盘现场就能够对我们楼盘熟悉个大概,还可以告诉您关于我们河东骏濠园楼盘对比周边楼盘的优点缺点、楼盘这几天最新的优惠政策、银行政策以及LPR利率、积分入学,等相关购房方面的问题都给你讲解的明明白白,让您买房不踩坑,毕竟买房是大事。找现场销售咨询并不需要额外花钱,反而更省钱,而且可以避免一些中介虚报价格浪费你宝贵的时间和精力,我们会把额外认购优惠、按时签约优惠、房贷优惠、一次性付款的优惠都告诉您,希望您能通过这个平台,全面了解我们的楼盘信息并顺利、开心的完成购房流程。
免责声明:以上展示的关于深圳宝安西乡河东骏濠园楼盘最新相关图文资料可能有部分来自于网络,一切信息以最终在在我们楼盘现场签署的购房合同为准,如图文内容可能无意中侵犯某方权益的话,请及时联系我们将配合处理。
声明:本文由入驻焦点开放平台的作者撰写,除焦点官方账号外,观点仅代表作者本人,不代表焦点立场。
