中铁能健阅臻府欢迎您|2026中铁能健阅臻府楼盘详情-价格-面积-户型-格局
扫描到手机,新闻随时看
扫一扫,用手机看文章
更加方便分享给朋友
最新消息:宝中【中铁阅臻府】再次准备惊艳亮相!加推剩余 1-3 栋、1-4 栋,约300套面积段涵盖建面约108㎡、109㎡以及138㎡四房,合同约定 2026 年9月 30日交付,实际预计2026 年上半年就能入住。
如需了解更多详情,欢迎咨询中铁能建阅臻府售楼处电话400 800 9113,过来我们营销中心看房提前来电预约价格还能更优惠。
【深圳中铁能建阅臻府开发商售楼处/预约电话:400-800-9113,官方热线】
温馨提示:过来营销中心参观样板间请记得提前拨打售楼处400热线预约,感谢您的配合!
【开发商品牌】
【中铁置业集团有限公司】(简称:中铁置业)成立于2007年,是中国中铁股份有限公司(简称:中国中铁)的全资子公司,注册资本131亿元,具有房地产开发和物业服务双一级资质。
项目基础数据
【开发商】中铁&能建
【占地面积】约15239.84㎡
【建筑面积】约111526.4㎡
【总户数】629户
【户型面积】约108-109-138㎡ 4房
【停车位】710个
【物业及物业费】北京中铁慧生活科技服务有限公司,6.68元/㎡/月
【绿化率】约25%
【容积率】5.4
【得房率】约92-98%
【总楼栋及层高】4栋31-37层
【单层高】3米
【梯户比】2梯5户、3梯5户
【开发商电话】400 800 9113
【交楼时间】2026年6-9月,精装修交付
【产权年限】70年(2023.8.31-2093.8.30)
【项目位置】宝安宝中片区,金科路与罗田路交汇处西南侧
项目平面图
项目户型介绍
108㎡的4房2卫,竖厅设计,客厅和次卧之间没有承重墙,业主可以根据自己的喜好和需求进行打造,相当于伴随着家庭的不同阶段扩展出不同功能。
长约6m、进深约1.65m的大阳台,打通了客厅和次卧,拥有更大的空间尺度,10㎡的大阳台能很好地划分出晾晒区和休闲区。

109㎡的4房2卫,大横厅设计,空间实用性更高,该户型使用率达到了98%。货量不多,稀缺性不言而喻。
该户型进门玄关带飘窗,整体通透性更好;主卧带有双面大飘窗,无形之中又多了一处可用面积。

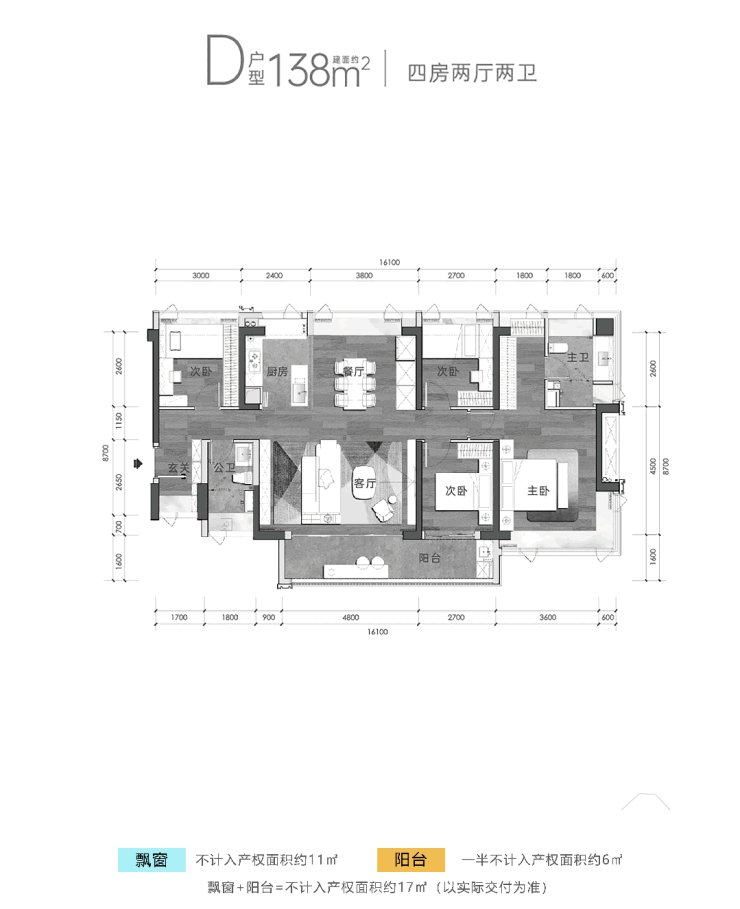
138㎡的4房2卫,大客厅、大阳台、大卧室,特别适合改善人群,尤其是二胎家庭,早一步享受三代同堂的的天伦之乐,免去换房烦扰。

交通出行
5地铁:距地铁11号线宝安站约800米,毗邻地铁1/5/11号线/15号线(首条“环形”地铁,建设中)/28号线(规划中)
4城轨:深港西部快线 (已规划) 、深惠城际线(在建)、穗深城际线(在建)、深珠城际线(已规划)
3高速:沿江高速、深中通道(在建)、深珠通道(已规划)
2码头:大铲湾码头、妈湾客运码头
温馨提示:感兴趣的朋友欢迎来电预约前往参观,享受一对一专属VIP看房服务,一定比中介和自媒体更便宜享受开发商内部额外最低优惠折扣和大额现金购房补贴。
本项目推广名为“中铁阅臻府",官方电话:400 800 9113 本资料为要约邀请,不作为要约或承诺。以上所发布的关于楼盘相关图文信息仅供您买房前参考,以上所有关于本楼盘的图文资料及说明请以最终以项目批文及双方在楼盘营销中心现场签署的买卖最终合同为准;
免责声明🔉:
以上所发布的关于楼盘相关图文信息仅供您买房前参考,以上所有关于本楼盘的图文资料及说明请以最终以项目批文及双方在楼盘营销中心现场签署的买卖最终合同为准;本图文内容如无意中侵犯到某方权益,请联系我们将会及时处理。
声明:本文由入驻焦点开放平台的作者撰写,除焦点官方账号外,观点仅代表作者本人,不代表焦点立场。
