家欢于乐 6天前 【新天·石厦铭苑】清盘特价房,仅9套,约72-138㎡两至四房
扫描到手机,新闻随时看
扫一扫,用手机看文章
更加方便分享给朋友
面积及价格(预约看房以下价格更优惠)
AC 栋 72平 两房510 万
2B 栋 72平两房560 万
88平大三房799 万
138平大四房1050万
C栋82平小三房639 万
如需了解本楼盘更多详情,欢迎来电咨询深圳福田新天石厦铭苑开发商售楼处免费400咨询/预约电话:400-800-9113(已认证)中介请勿扰,因近期参观的人员太多,本项目营销中心暂不接受临时到访,为不耽误您的行程,过来楼盘现场参观样板房请务必记得提前来电预约,预约看房的话最终房价还能更加优惠,最终价格包您满意!
下面是我们楼盘营销中心实拍照片:
项目介绍:
福田CBD,区府旁新楼盘,享受深圳高端商务中心、深港创新合作区双重利好加持。产品户型设计好,使用率极高。
项目基础信息
项目占地:约2.1万㎡
总建面:约16万㎡
容积率:6.0
绿化率:40%
产权:70年(2021年-2091年)
可售商品房:235户
总层高:40层
梯户比:2梯4户、2梯5户
开发商电话:400 800 9113
使用率:77%
主推产品:约72-138㎡二至四房
均价:约10万
交楼标准:简装
交楼时间:2024年10月
物业公司:深圳市新天时代物业管理有限公司
开发商:深圳市新天时代投资有限公司
项目地址:福田·石厦·3、7号线石厦站
新天石厦铭苑这个楼盘究竟值不值得买?
【项目核心价值】
【区位】居福田腹地得塔尖精萃
集行政,文化,金融,交通,会展,购物,酒店,公园,住宅等九大优质配套。
积淀深圳40年发展力量,集权力行政中心、金融财富中心、企业总部中心、商业消费中心、文化艺术中心、交通梳纽中心、资讯交流中心、商务社交中心等八大中心于一体,是深圳影响世界的力量。
【规划】三大引擎赋能,造湾区科创中心
最新“十四五”规划中,福田定位湾区总部经济核心区,并聚焦河套深港科技创新合作区、香蜜湖新金融中心、环中心公园活力圈“三大新引擎”,项目位于三大引擎的三角地带核心位置,坐拥众多规划和资源。
【交通】 踞立体交通 得无忧出行
▫️毗邻地铁3、7号线石厦站,步行仅500米,贯穿深圳中心;
▫️临近福田口岸与皇岗口岸,无缝接驳深港两地;
▫️穗莞深城际轨道(建设中)2站直达前海,联通两大深港合作区;福田高铁站,快速链接全国。
【生态】拥多重景观 福田唯一超大花园
项目自带:倾力打造舒适生态人居,内揽大花园林、美景;
一路之隔:石厦公园,日常居住推窗见景,与家人一起拥抱自然;
约600米:五星级皇岗公园,享受多重美景;
约1500米:红树林生态公园,享受绿色健康生态。
【商业】拥三大商圈 揽万象繁华
周边坐拥购物公园、CBD及石厦三大商圈
下楼即享:项目与5万m²马成时代广场为邻,各大品牌下楼即享;
地铁一站:COCOPark、皇庭广场、领展中心城、购物公园环伺万象繁华尽在掌握。
【教育】荔园&红岭双名校旁
周边500米内涵盖幼儿园到初中的全龄段教育配套。
项目毗邻“省国家级示范性高中“红岭中学(石厦初中部)及荔园小学(众孚校区),以及益强小学和石厦学校中学部,为全龄段教育保驾护航。
红岭中学石厦初中部隶属于红岭教育集团,有深圳“中心城区 第一学府”之称,升学率屡创新高。
荔园小学隶属于荔园教育集团,办学规模、条件最为优越小学之一,多远教育优良校风得到高度认可
【新天石厦铭苑样板房实拍】
【户型】新天石厦铭苑共有三个面积段、五个户型
新天石厦铭苑规划平面图如下:
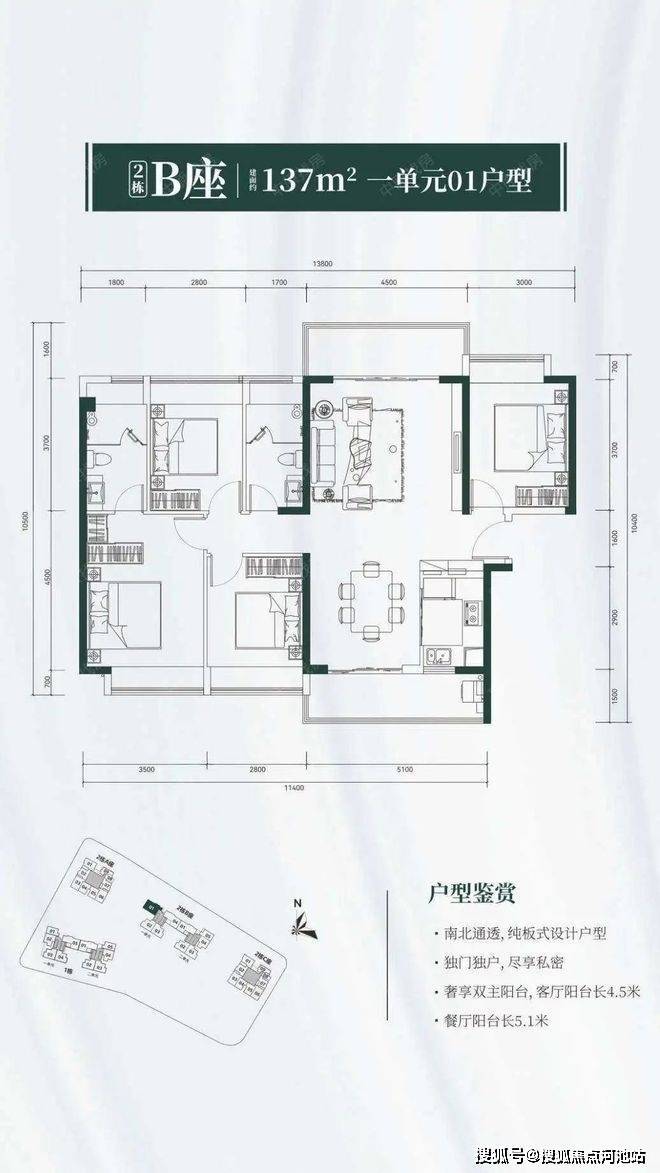
2栋B座一单元01、04户型
2栋B座二单元01户型
面积:约137-138㎡4房2厅2卫
2栋B座一单元02、03户型
2栋B座二单元02、03户型
面积:约88㎡的3房2厅1卫
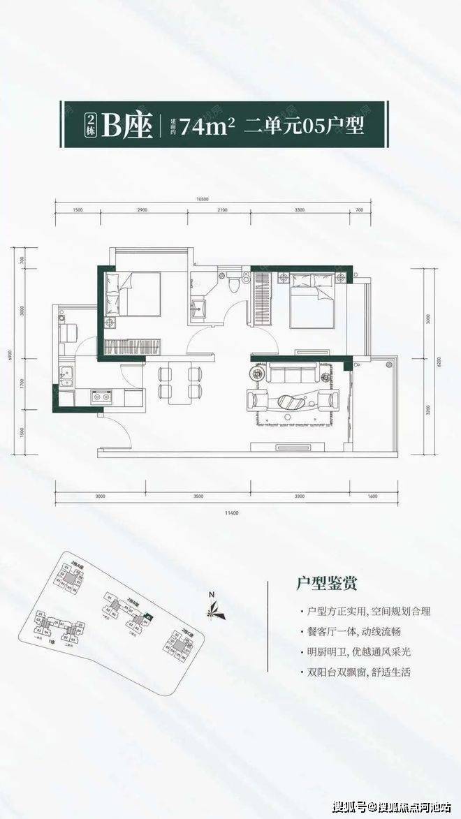
2栋B座二单元04、05户型
面积:约72-74㎡的2房2厅1卫
【新天石厦铭苑整层平面图】
新天石厦铭苑户型图欣赏
居 室2室2厅1卫1厨
建筑面积约72平
户型简介双阳台,全阳光户型
居 室2室2厅1卫1厨
建筑面积约74平
户型简介户型方正实用,明厨明卫
居 室3室2厅1卫1厨
建筑面积约88平
户型简介南向三开间,三卧室均朝阳
居 室4室2厅2卫1厨
建筑面积约137平
户型简介独门独户,尽享私密
居 室4室2厅2卫1厨
建筑面积约138平
户型简介南北通透,纯板式设计户型
新天石厦铭苑优点:
项目与5万m²马成时代广场为邻,各大品牌下楼即享,周边坐拥购物公园、CBD及石厦三大商圈,周边还有石厦公园、皇岗公园、红树林生态公园,楼盘周边荔园学校、红岭学校双名校坐落,还有石厦学校、益强小学分布在周围,开车10-30分钟,就可到达儿童医院、北大医院、人民医院,距离3/7号线石厦站步行约500米,贯穿深圳中心,周边还有惠莞深城际轨道在建设中,开通后可2站直达前海、福田高铁站。
看完以上图文介绍,您如果想要了解更多关于我们深圳福田新天石厦铭苑楼盘最新消息、当前剩余房源、这几天楼盘现场折扣优惠活动、近期周边房价走势、银行相关利率政策等情况的话,欢迎来电咨询新天石厦铭苑楼盘开发商售楼处免费400咨询/预约热线电话:400-800-9113(已认证)中介勿扰。

温馨提示:因本项目营销中心参观样板间采取预约制,为不耽误您的行程,过来营销中心现场看房前请务必记得提前来电预约,预约看房的话享受的优惠折扣比直接上门更多,最终成交价格也会更加划算,在此真诚感谢您对我们工作的支持和信赖,恭候您大驾光临。
免责声明:以上展示的关于深圳新天石厦铭苑楼盘最新相关的最新图文资料可能部分来自网络,具体细节以最终签署的购房合同为准,如无意存在侵犯某方权益请及时联系我们处理。
声明:本文由入驻焦点开放平台的作者撰写,除焦点官方账号外,观点仅代表作者本人,不代表焦点立场。
