深圳蛇口【华侨城新玺】200-700㎡前海蛇口自贸区豪宅标杆
扫描到手机,新闻随时看
扫一扫,用手机看文章
更加方便分享给朋友
深圳蛇口·华侨城新玺,目前在售的是现房并且已经交楼了,即买即收楼,很多人问到华侨城新玺是公寓还是住宅?华侨城新玺是公寓,不是住宅,项目目前在售230㎡、280㎡、350㎡、400㎡、00㎡、630㎡、700㎡海景真公寓3-7房户型折后为13万元/㎡起,折后总价区间为3000万-1.32亿万。华侨城新玺名苑是深圳南山天花板级别的楼盘,档次完全不逊色于深圳湾一号。

效果图
开发商实力
央企华侨城深耕深圳36年
项目开发商为深圳市华侨城新玺发展有限公司。天眼查数据显示,该公司最大股东为深圳华侨城房地产有限公司,持股比例60%,另外深圳新玺投资有限公司占股40%。
华侨城集团于1985年在深圳成立,是国务院国资委直接管理的大型央企。华侨城成功开发运营了欢乐谷、锦绣中华民俗文化村、世界之窗、东部华侨城等多个文化、旅游项目。其“旅游+地产”模式非常成熟,此外还形成了文化产业、旅游产业、新型城镇化、电子科技产业及相关业务投资五大发展方向。


在豪宅方面,华侨城也有不少代表作,波托菲诺天鹅堡、纯水岸、香山里、招华曦城等,在深圳均颇有名气。
华侨城新玺值不值得买?
三面临海,最高出地面约20层
华侨城新玺位于南山区蛇口街道湾厦路最南端,距2号线东角头站约900米,南、西、北三面临海。

项目原是渔人码头旧改项目而来,时至当日,码头还散乱地停留着不少渔船,与周边齐整的建筑形成鲜明反差。
华侨城·新玺 位于蛇口半岛
商务公寓主推230-480㎡3-4房
项目将推出的商务公寓均为大户型,有230㎡、260㎡、280㎡、350㎡、400㎡、480㎡多种,为3-4房,更多详情欢迎咨询售楼处电话4008113080了解更详细的情况。
项目占地面积25147.13㎡,建筑面积288268.36㎡
包含 办公、商业、酒店、商务公寓,还有一个1800㎡的海洋博物馆!
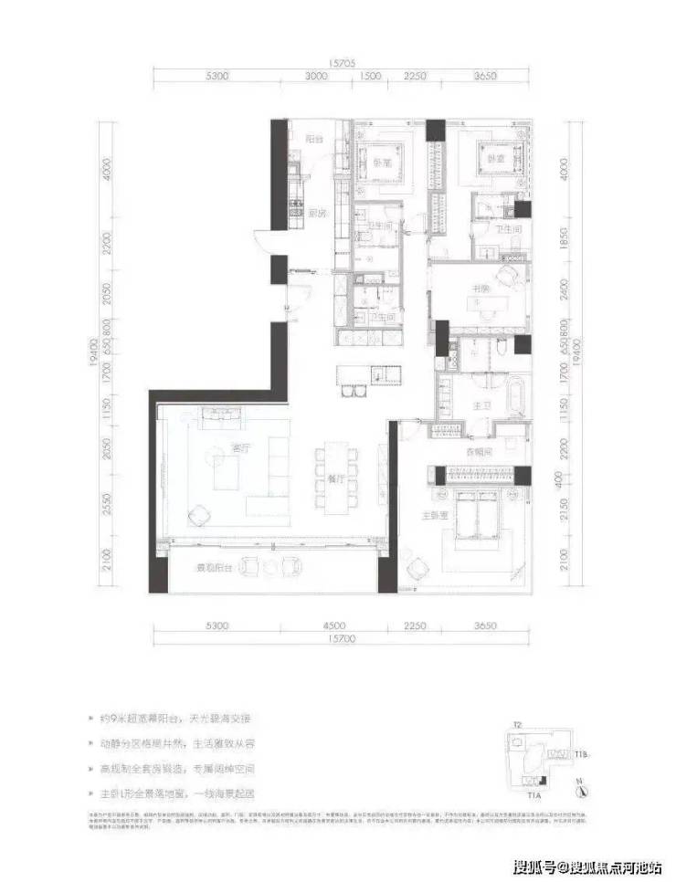
华侨城新玺户型图鉴赏
T1A栋B/C:约230-238㎡ 3房2厅3卫

B/C户型对称,楼栋中间位置,3房设计,类似恒二的庭室布局。遗憾的是暗卫多,中间位置决定了户型开间的有限,美好的海景面肯定要留给睡房。长约5m左右的阳台略短,2.1m的宽度很多公寓达不到,实地看房体验还是很舒适的。
T1A栋A/D:约346/353㎡ 4房2厅4卫
两个户型分别在东西端头位置,三套间+书房,格局相同,面积略有差异,D户型书房更大点。
约9m长的一线海景大阳台,一望无际的海景可以铺满视野。270°采光,270°景色环绕,L型全景落地窗大主卧,绝对的奢享。整体上西端头景观面要好些,西面靠内湾视野更开阔,东面则是住宅区。
T1A栋E:约475㎡ 5房3厅5卫+工人房

整个项目的楼王单位,只存在于高区33-38楼,极为稀缺。户型格局相当于T1A栋A户型的加强版,楼层更高,尺度更大,功能性更全面;增加了保姆间、起居室等空间,近80㎡的至尊主卧配备独立书房,收藏级产品。
T1A栋F:约259㎡ 3房2厅3卫

T1A栋F户型格局感觉是T1A栋D户型的削弱版,尺度更小,东西向面宽缩短,减少了一个房间。相同的景观面,但该户型楼层更高。不足之处在于,“中央公卫”设计很突兀,狭长的过道有点浪费面积。
T1B栋B/C:约221-227㎡ 3房2厅3卫

T1B栋B/C与T1A栋B/C格局相同,只是面积上略有差异。位置不如T1A栋,但是也能看不错的海景。个人认为C户型位置要优于B户型,因为南面海景和北面湾景视角都要大一点。
T1B栋A/D:约280㎡ 3房2厅4卫
T1B栋D与T1A栋F户型格局相似,但是终于把“中央公卫”去掉了,换成吧台,明显协调了许多。东端头无遮挡,270°景观,适合看日出。
A户型与D对称,位于东端头位,但是T2栋和T1A栋会对270°的景观的完整性有影响。
T1B栋E:约409㎡ 4房2厅5卫+工人房

409平的超级平层,四套间设计,动静分区,井然有序。西端头公共空间“L”形超大面宽非常气派;卧室都在东侧,远离T2办公楼,有私密起居室,宁静怡然。仅存在T1B栋33-38层,数量稀缺。
T1B栋F:约404㎡ 4房2厅5卫+工人房

户型四套间设计,配备工人房,主佣分区,竖厅布局,约12m双厅进深,空间利用率很高。东端头位置,所有卧室都有开阔的景观,270°景观完全无遮挡。只存在T1B栋33-38层,仅6套。
【华侨城新玺样板间鉴赏】
华侨城·新玺位置示意图如下

【华侨城新玺开发商售楼部400免费咨询/预约电话📞: 400-811-3080,中介勿扰】
温馨提示:过来营销中心参观样板间请记得提前拨打开发商售楼部免费400热线预约,本项目需要验资,在此感谢您对我们工作的支持与配合!
提醒:我们楼盘售楼部400电话没有任何所谓的“分机号”,拨打前请仔细甄别,注意保护个人隐私!谨防上当!
【免责声明】
1、本文部分信息和图片来源其开发商推广内容,对项目周围交通、商业、文化教育、医疗以及其他市政条件的介绍,具体以政府规划及现场实际为准。
2、效果图是规划意向的概念设计展示,非最终规划方案,不作为开发商承诺,最终以向政府报批报建的方案为准。
3、本文所述内容和意见仅供参考,不构成市场交易依据和投资建议,买卖双方权利义务以双方签署的买卖合同为准。
声明:本文由入驻焦点开放平台的作者撰写,除焦点官方账号外,观点仅代表作者本人,不代表焦点立场。
