鸿荣源观城售楼处电话丨首页网站-营销中心欢迎您-楼盘详情-最新价格-户型图-容积率-地址-配套@售楼处
扫描到手机,新闻随时看
扫一扫,用手机看文章
更加方便分享给朋友
鸿荣源观城,位于深圳观澜,本项目11月中下旬加推广大购房都认为景观视野特别好的楼王1栋1单元,本次推出的户型为面积88-98㎡三房二卫,108-142㎡的四房二卫,共318套房源,其中有稀缺大户型142㎡。
1栋1单元(折后)价格说明(仅供参考,看房预约还能更便宜!)
01户型351万起(99平米)351-366万
02户型624万起(142平米)624-648万
03户型387万起(99平米)387-395万
05户型369万起(99平米)369-377万
06户型458万起(108平米)458-468万
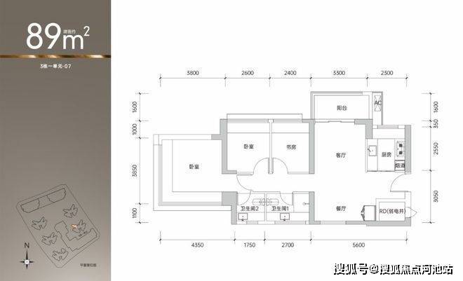
07户型318万起 (89平米)318-327万
如需了解本楼盘更多详情,欢迎来电咨询深圳龙华鸿荣源楼盘开发商售楼处免费400咨询/预约电话:400-880-7297(已认证)中介请勿扰,因近期参观的人员太多,本项目营销中心暂不接受临时到访,为不耽误您的行程,过来楼盘现场参观样板房请务必记得提前来电预约,预约看房的话最终房价还能更加优惠,最终价格包您满意!
下面是我们楼盘营销中心实拍照片:
在最新的QS世界大学排名中,香港中文大学位居全球第32名,仅次于港大、清北和复旦。
大学赋能
打开基础教育“无限可能”
“集团将持续深化‘大学+智库+成员校’协同机制,努力打造具有大学气质、学术底蕴与创新精神的卓越学校集群,成为深港融合背景下的湾区教育新典范,为基础教育发展贡献‘港中深’智慧与力量。”在今年9月份举办的2025基础教育创新大会上,港中深基础教育集团总校长裘建浩作为集团化办学板块代表,在大会主论坛作了主旨发言。
这番发言,其实揭示了港中深基础教育集团办学的核心逻辑——大学赋能。
鸿荣源观城上次7月份开盘加推的是3栋1单元,已开盘,直接顺销,先到先得!
7月12号开放新一栋样板,视野很开阔,170米楼间距,楼王位置!传出惊喜价,本次楼王位置,且带着非常诚意的价格!
已经爆出折后价3.86万~4.21万!89㎡总价约344万起!99㎡约377万起!3栋1单元新品共计312套,约88㎡(3房2卫)约104套,约98㎡(3房2卫)约208套,鸿荣源观城将于明年12月底可以进行精装交楼!
鸿荣源观城户型图欣赏:
89㎡的3+1改四房户型!
龙华观澜,鸿荣源观城(首推地块备案名:未来平方云山府)计划将在2025年5月份取证入市,本次将会首推1栋2单元,共312套房源,面积有88-98㎡的3房2卫,108-117㎡的4房2卫户型
鸿荣源观城作为观澜CBD综合体大盘,从建设初期就一直广受关注,迭代升级的壹方天地2.0版本,集超40万㎡一站式观城壹方商业、3所全龄段公立学校、5大生态公园、三甲医院及甲级写字楼集群于一体,以全维配套矩阵重塑区域价值,打造深圳西部醇熟生活新范本!
看完以上介绍,如需了解更多关于我们深圳龙华区观澜鸿荣源观城楼盘最新消息、剩余房源以及楼层、这几天房价优惠活动、在卖的户型、限购政策、房贷相关问题等情况,欢迎来电咨询深圳鸿荣源开发商售楼处全国免费400咨询/预约电话:400 880 7297(已认证)中介请勿扰。
温馨提示:因近期本项目售楼中心来访的看房客户特别多,过来营销中心参观样板间采取预约制,为不耽误您的行程,过来营销中心现场看房请务必记得提前拨打售楼处400电话来电进行预约一下,预约看房价格还可以享受更多开发商内部优惠,名额有限千万不要错过,感谢您对我们工作的支持和配合,在此恭候您大驾光临实地品鉴。
免责声明:以上展示的关于深圳龙华鸿荣源观城楼盘最新图文资料可能有部分来自网络,一切信息以最终在现场签署的购房合同为准,如图文内容无意中侵犯某方权益的话,请及时联系我们将配合处理。
声明:本文由入驻焦点开放平台的作者撰写,除焦点官方账号外,观点仅代表作者本人,不代表焦点立场。
