桑泰缙樾府官方售楼处电话(桑泰缙樾府)官方网站-桑泰缙樾府营销中心欢迎您-楼盘详情·最新价格-户型图-容积率
扫描到手机,新闻随时看
扫一扫,用手机看文章
更加方便分享给朋友
缙樾府项目位于深圳市南山同乐片区,中山路以东,铁二路以北,东侧紧挨着同乐实验学校。由3个地块组成,共计5栋住宅塔楼,其中地块二和地块三分明命名为荔源雅苑和乐源雅居,地块一包含两栋30-31层高的住宅塔楼,将于2026年6月30日带精装交楼!
温馨提示:因近期参观的购房者较多,所以本楼盘采取预约制,过来营销中心现场参观样板间请记得提前拨打开发商售楼处400热线电话在线预约,预约看房价格更优惠,感谢您的配合!
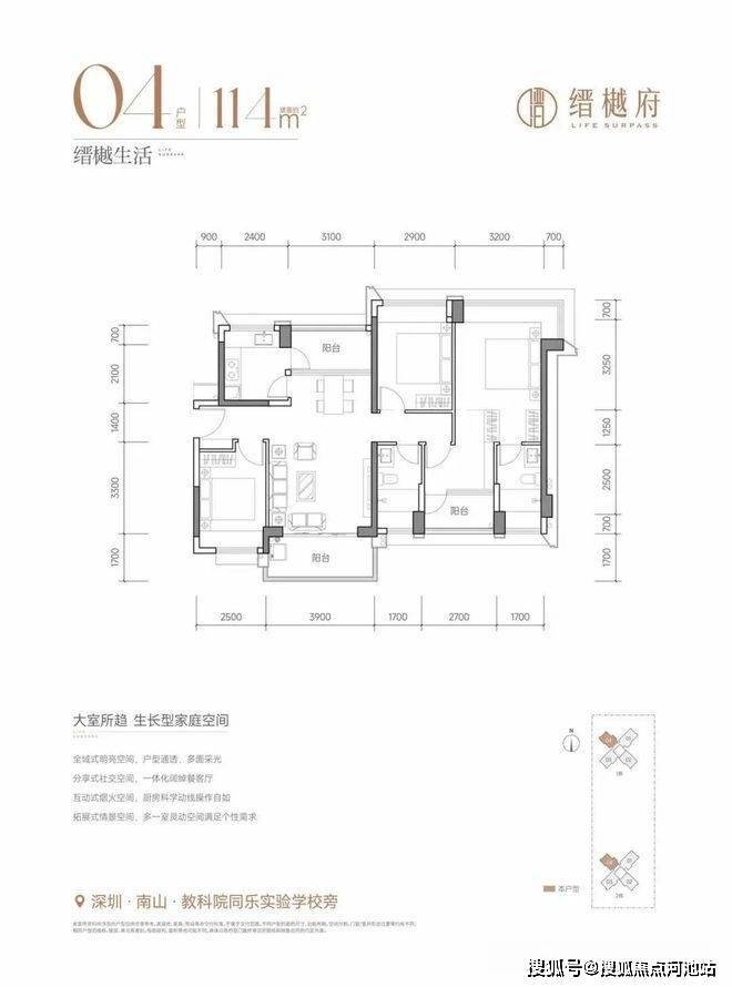
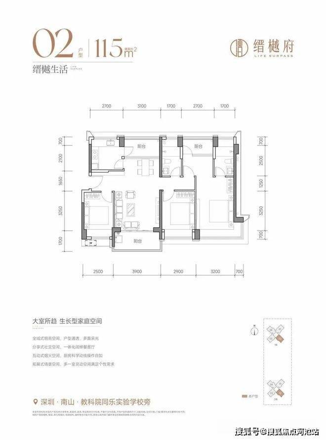
缙樾府总户数为220户,整个项目只有2栋相同平面的100米高纯商品住宅,十字型平面,114-115-118㎡四房各两条腿、133㎡五房2条腿,东南、西南朝向。
【项目基本信息】
【项目名称】缙樾府
【开发商】深圳市塘泰投资发展有限公司
【项目地址】深圳南山教科院同乐实验学校旁
【物业公司】深圳市厚德物业服务有限公司
【开发商电话】400 880 7297
【物业类型】商品住宅
【总建筑面积】47780.16㎡
【总用地面积】9054.12㎡
【产品面积】约114㎡/115㎡/118㎡/ 133㎡
【总套数】220套
【容积率】约3.62
【产品年限】70年
缙樾府户型图
【缙樾府开发商售楼处咨询/预约电话☎️ 400-880-7297(中介勿扰)】
✅ 本项目暂不接受临时到访,过来参观样板房请记得提前来电预约!
✅ 为您安排楼盘现场销售全程一对一在线解答,给您更贴心的体验!
温馨提醒:我们楼盘开发商售楼处400电话没有设置任何所谓的“分机号”,拨打前请仔细甄别,注意保护个人隐私!谨防上当!
免责声明:
以上所发布的关于深圳南山桑泰缙樾府楼盘相关介绍详情仅供您购房前参考,以上所有关于本楼盘的图文资料及说明请以最终项目批文及双方在楼盘营销中心现场签署的买卖最终合同为准;本图文内容如无意中侵犯到某方权益,请联系我们将会及时处理。
声明:本文由入驻焦点开放平台的作者撰写,除焦点官方账号外,观点仅代表作者本人,不代表焦点立场。
