深圳光明90多平米做四房新盘《振业天境云玺》9栋楼17-26层高
扫描到手机,新闻随时看
扫一扫,用手机看文章
更加方便分享给朋友
最新消息/ INTRODUCTION
光明中心区新规住宅——振业天境云玺家园,计划2026年一季度取证并开盘,面积有83-89㎡的3房2厅2卫,95-104-113-140㎡的4房2卫,165㎡的5房3卫户型,共1082套房源,也是光明第一个国标建设的楼盘,总高仅17-26层,超100%的得房率,层高3米,全部都是商品房,没有回迁房、保障房等掺和,且是光明花园最大的新楼盘,目前仍是期房,计划2028年下半年带精装交楼。
如需了解本楼盘更多详情,欢迎来电咨询振业天境云玺家园开发商售楼处免费400咨询/预约电话:400-811-3080(官方发布)中介请勿扰,因近期参观的人员太多,本项目营销中心暂不接受临时到访,为不耽误您的行程,过来楼盘现场参观样板房请务必记得提前来电预约,预约看房的话最终房价还能更加优惠,最终价格包您满意!
天境云玺位于深圳光明,本项目堪称"好房子"新标准下的"深圳最大盘"之一,也是真正意义上的新规产品,大花园社区、限楼高80米、3.1低容积、纯商品房(无回迁、保障房)。
项目将打造9栋小高层大园林社区,采用围合式布局,户型约83-166㎡新规3-4房,新规使用率超100%!
振业天境云玺家园原是在2025年6月27日深圳集中土拍中,由振业+天健+光明建发三家集团联合竞得的A509-0074宗地,19.94亿元底价竞拍成功,楼面价18380元/㎡,预计落地成本不会超过2.9万/平,目前周边新房均价普遍在3.7-4万/平,以此作为参考。
振业天境云庭,位于深圳光明中心区核心腹地,华夏路与周家大道交汇处,紧邻华夏中学,坐拥科学公园绿轴景观。项目所在区域原为工业用地,经规划调整后转型为低密度居住区,容积率仅3.1,远低于周边竞品。北侧为东周文化公园、国防教育主题公园及木墩村公园,东侧紧邻东周小学等优质教育资源,西侧与南侧为待开发空地,保证了开阔的景观视野和低密度居住体验。项目处于光明科学城规划的"产业转化区"与"生活服务中心"交汇处,直接受益于科学城人才导入和区域价值提升。
振业天境云玺,由振业+天健+光明建发三家集团联合打造,分2期开发,总占地面积约3.5万㎡,总建筑面积约16.3万㎡,计容建筑面积约13.42万㎡,容积率3.1,绿化率32%,共由9栋17-26层高住宅组成,其中1栋至9栋住宅26F,10栋住宅17F,4栋是1所9班制幼儿园,规划有游泳池,羽毛球场,健身场地,托育机构。
楼栋示意图
总规划1082户,10栋楼王2梯2户,9栋2梯3户,6-8栋2梯5户,其它栋数都是2梯6户设计,地下室有1层,规划1222个车位,车位占比约1:1.13。
【项目基本信息】
1、开发商:深圳市振业天发开发建设有限公司
2、开发商电话:400 811 3080(官方发布)
3、物业管理费:3.9元
4、总占地面积:3.5万㎡
5、总建筑面积:16.3万㎡
6、容积率:3.1
7、绿化率:32%
8、产权年限:住宅70年,2025年7月-2095年7月
9、总户数:1082户
10、总栋数及楼高:6栋,17-26层
11、层高:3米
12、梯户比:2梯2户/2梯3户/2梯5户/2梯6户
13、车位数:1222个
14、车位占比:1:1.13
15、交房时间:期房待定
16、交房标准:精装修交房
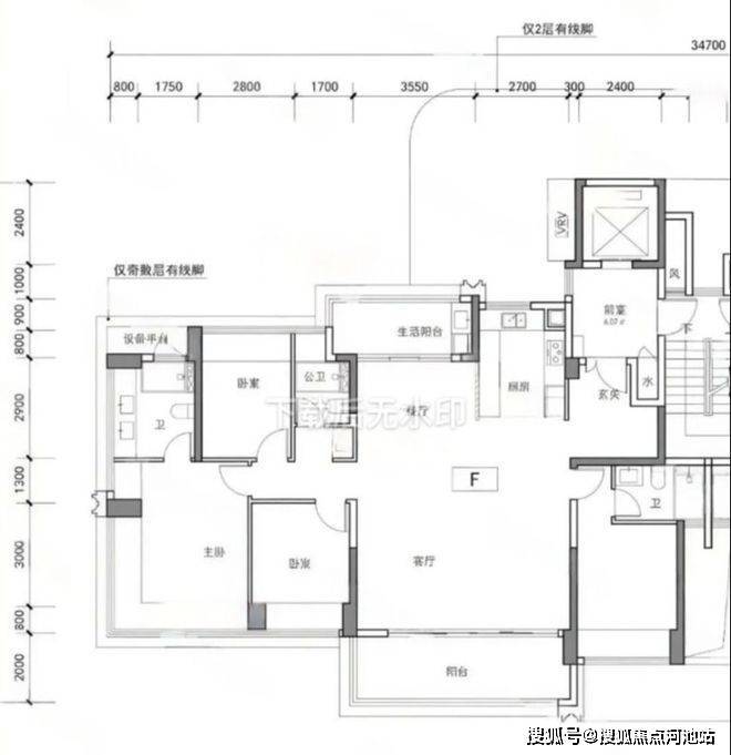
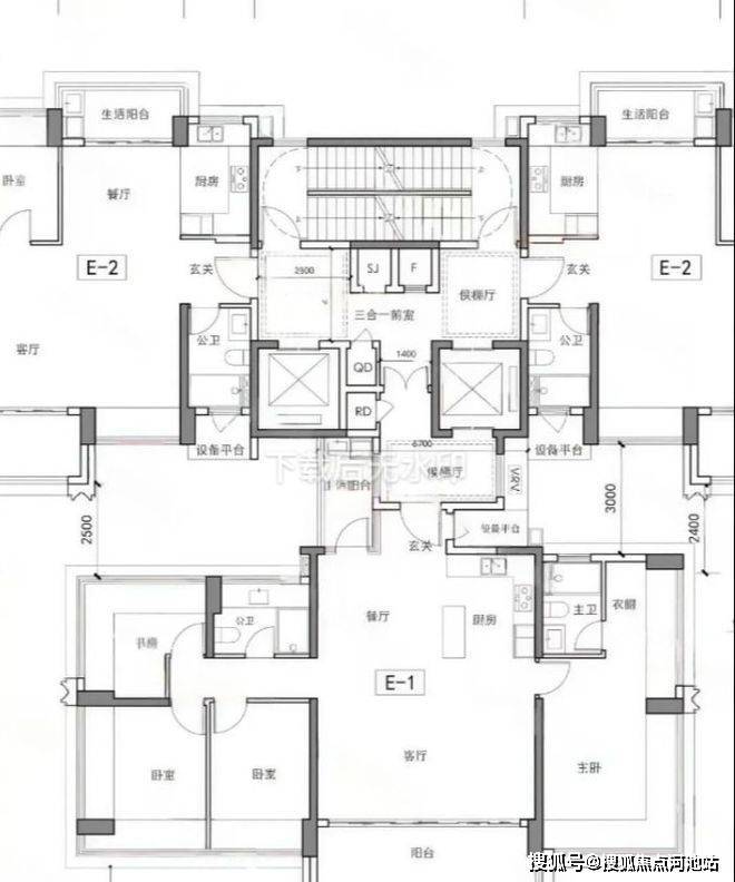
振业天健云玺规划平面图:
园林中央16层板楼(楼王),面积约166㎡ 大户型,2梯2户,主打高品质舒居体验;
其余8栋26层塔楼:涵盖2梯3户、2梯4户、2梯5户,适配83-139㎡ 不同面积段的刚改户型。
产品方面,大户型产品都用上了南北双阳台设计,主卧沿用新规270°大飘窗,连小户型儿童房也用上双飘窗,通风采光效果绝佳,预计得房率高达100%。
看平面图10号楼是2梯2户,9号楼是2梯3户,1-6-8号楼为2梯5户,3-4-5-7号楼为2梯6户设计,大概有1000户左右,停车位有1222个。
平面图及户型图
01 交通配套
振业天境云玺毗邻光侨路、光明大道等主干道,可通过南光高速、龙大高速40分钟通达福田、南山;距离6号线光明大街站约1.3公里(步行需要20分钟),凤凰城距离约2.1公里(步行需要30分钟),其中凤凰城可换乘13号地铁线,预计2026年全线开通运营,9站到南山留仙洞,12站到南山高新园。
02 商业配套
振业天境云玺周边商业配套成熟且规划完善,距离项目约700米的星河COCO City将于2025年12月19日试营业,签约率超80%,引入盒马鲜生、寰映影城及海底捞等头部品牌,与项目步行约15分钟可达,填补区域大型商业空白。约1.7公里范围内有蓝鲸世界、万达广场等成熟商业体,满足日常购物、餐饮、娱乐需求。项目自带3000㎡创意街区,定位社区基础商业,虽具体品牌未披露,但可满足日常基础生活需求。未来绿地新都会三期(4.3万㎡商业)有望重启建设,九樾广场虽商业部分暂未开业,但整体规划为光明中心区地标性建筑,未来将形成更完善的商业集群。
03 教育配套
天境云玺属于光明街道翠湖社区,根据光明区2025年的学区划分来看,小学学区划分在光明小学、东周小学、
华南师范大学附属光明星河小学、修远小学、深圳小学光明曙光学校、南方科技大学附属光明凤凰学校、南科大荔园学校,初中学区划分在光明中学、华夏中学、深圳实验光明学校、光明高级中学、南方科技大学附属光明凤凰学校、南科大荔园学校。
04 医疗配套
“中国科学院大学深圳医院(光明)新院”,政府投资 40 亿打造的三甲医院,未来将打造成区域医疗中心,是深圳市重点项目之一,预计2025 年建成并投入使用。项目用地面积约 5 万平方米,总建筑面积为33.7 万平方米,可提供床位 1500 个,将有效缓解群众看病难的问题。
05 休闲配套
项目北侧一路之隔在建的“科学公园”占地面积约208.10万㎡,集生态、科普、健康、娱乐、运动、休闲、游览等功能为一体的大型综合性城市公园,承担着区域绿色核心、绿意引擎的重任。
同时科学公园范围有大量的市政配套正在建设或者筹划中:如深圳国际美术馆(在建)、深圳科技馆新馆(在建)、科学城体育中心等。
如果看完关于我们深圳光明振业天健云玺家园楼盘详情介绍后,如果您还对本楼盘开盘房价,售楼处地址,备案价,户型图,剩余房源,规划图,营销中心位置,周边配套,楼盘优缺点,开发商售楼处电话,开盘多少钱一平,附近地铁交通怎么样,楼盘最新消息以及近期开发商折扣优惠、特价房,售楼部最新销售详情,工程进度情况,学校学区划分等具体详情需要了解的话,欢迎咨询我们开发商营销中心电话进行沟通。
温馨提醒:我们楼盘开发商售楼处400电话没有设置任何所谓的“分机号”,拨打前请仔细甄别,注意保护个人隐私!谨防上当!
免责声明:
以上所发布的关于深圳光明振业天境云玺家园楼盘相关介绍详情仅供您购房前参考,以上所有关于本楼盘的图文资料及说明请以最终项目批文及双方在楼盘营销中心现场签署的买卖最终合同为准;本图文内容如无意中侵犯到某方权益,请联系我们将会及时处理。
声明:本文由入驻焦点开放平台的作者撰写,除焦点官方账号外,观点仅代表作者本人,不代表焦点立场。
