【松茂御城二期】光明高使用率小区!81㎡~135㎡三至五房!其中89平做四房,南北通透,总价2字头起

搜狐焦点河池站 2025-10-10 15:17:39
用手机看
扫描到手机,新闻随时看

扫一扫,用手机看文章
更加方便分享给朋友

深圳光明凤凰城新楼盘【松茂御城】雅苑二期,临近地铁13号线月亮路站。松茂御城本次开盘推出的面积段81-89-109-135㎡3、4、5房户型。其中81㎡就是3房2卫(或者小4房1卫)89-109㎡4房2卫、1…

深圳光明凤凰城新楼盘【松茂御城】雅苑二期,临近地铁13号线月亮路站。

最新消息:2025年8月28日开样板间并开启正式认筹,9月初开盘,首推1栋B/G/H/E座共333套房源。

松茂御城本次开盘推出的面积段81-89-109-135㎡3、4、5房户型。其中81㎡就是3房2卫(或者小4房1卫)89-109㎡4房2卫、 135m²5房2卫。准现房,交房时间预计2027年2月份精装交楼。可以说在深圳西部光明区总价200-300以内,深圳最值得购买的项目之一!

如需了解本楼盘更多详情,欢迎来电咨询深圳光明松茂御城开发商售楼处免费400咨询/预约电话:400-880-7297(已认证)中介请勿扰,因近期参观的人员太多,本项目营销中心暂不接受临时到访,为不耽误您的行程,过来楼盘现场参观样板房请务必记得提前来电预约,预约看房的话最终房价还能更加优惠,最终价格包您满意!

下面是我们松茂御城售楼部内部实拍照片:

松茂御城项目配套优势:

交通,名校,产品,准现房,4大维度都很不错。值得入手的项目。

地铁:13号线月亮路地铁站,30分钟直达南山。

学校:深中光明学区+深实验光明校区,双名校学区。

产品:高拓展+高使用率,81可做3房2卫还可做3+1房1卫。

准现房:目前已经封顶了,交房时间,就是26年12月(26年可申请读书)

其实目前就是看价格了,如果开出的价格合适,还是非常值得入手的项目。

下面是松茂御城楼盘实拍照片:

项目介绍

松茂御城,松茂集团开发,占地4.53万㎡,建面29.78万㎡,容积率4.67,绿化率40%。分2期建设,风雨连廊连接。规划2130户住宅,停车位2321个,车位比1:1.09。

松茂御城1期占地1.4万㎡,建面10.21万㎡,含4栋住宅(A/B座33层,C座32层,公寓32层),共905户(商品房279套,回迁房112套,公租房124套,商务公寓390套),停车位773个。

【项目基本信息】

1、开发商:深圳市松茂房地产集团有限公司

2、物业公司:深圳市海天泰物业管理有限公司

3、物业管理费:3.8元/㎡

4、总占地面积:84.53万/㎡

5、总建筑面积:29.78万/㎡

6、开发商电话:400 880 7297

7、绿化率:40%

8、产权年限:2022年7月25日-2092年7月24日(70年)

9、总户数:2130户

10、总栋数及楼高:12栋,31-32F

11、梯户比:2梯4户/2梯5户/2梯6户

12、车位数:2321个

13、车位占比:1:1.09,二期车位比1:1.26

14、交楼时间:准现房,2027年2月

15、交楼标准: 精装修交楼

松茂御城项目平面图

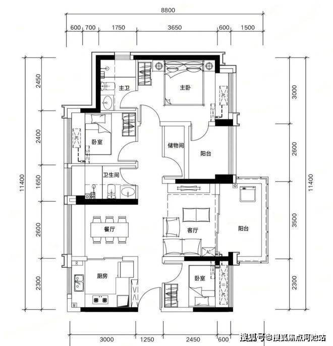
松茂御城户型图欣赏:

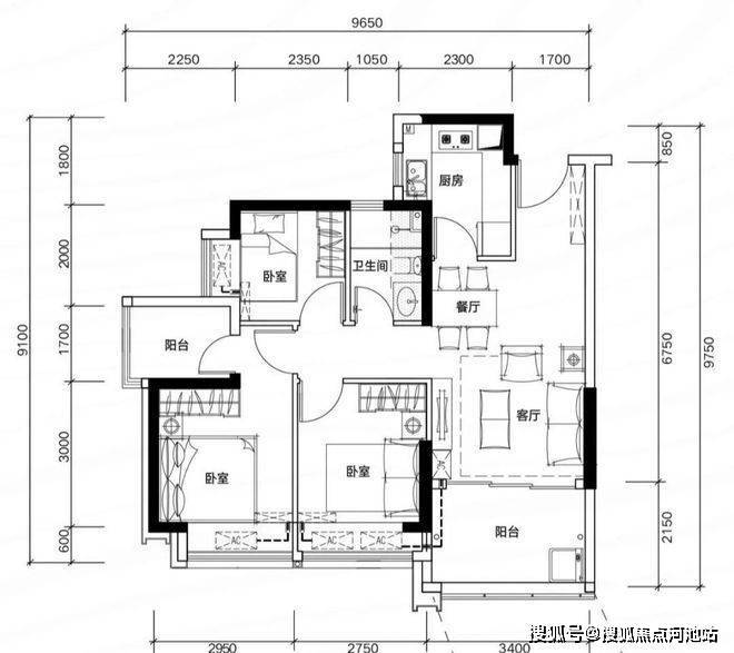
81m²的3房2厅2卫,1H栋01户型,设计的是竖厅南北通透格局,得房率79.6%(不含赠送),阳台东北朝向看花园。套内面积64.48m²+赠送面积11.25m²=实用面积75.73m²,加上赠送后得房率93.49%。

81m²的3房2厅2卫,1H栋03户型,设计的是经典竖厅格局,得房率79.6%(不含赠送),阳台西南朝向。套内面积64.48m²+赠送面积9.64m²=实用面积74.12m²,加上赠送后得房率91.5%。

81m²的3房2厅2卫,1G栋03户型,设计的是经典竖厅格局,得房率79.6%(不含赠送),阳台东南向看花园。套内面积64.48m²+赠送面积10.33m²=实用面积74.81m²,加上赠送后得房率92.35%。

82m²的3房2厅2卫,1G栋05户型,设计的是经典竖厅格局,得房率79.6%(不含赠送),阳台西南朝向。套内面积65.27m²+赠送面积10.31m²=实用面积75.58m²,加上赠送后得房率92.17%。

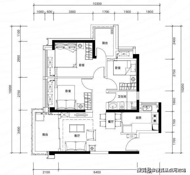
89m²的4房2厅2卫,1B栋01户型,设计的是竖厅南北通透格局,得房率79.6%(不含赠送),阳台东南朝向看松白路。套内面积70.85m²+赠送面积15.02m²=实用面积85.87m²,加上赠送后得房率96.48%。

89m²的4房2厅2卫,1B栋02户型,设计的是经典竖厅格局,得房率79.6%(不含赠送),U型厨房,卫生间干湿分离,阳台东南朝向看松白路。套内面积70.85m²+赠送面积11.85m²=实用面积82.7m²,加上赠送后得房率92.92%。

89m²的4房2厅2卫,1B栋03/05户型,设计的是经典竖厅格局,得房率79.6%(不含赠送),阳台西南朝向看花园。套内面积70.85m²+赠送面积12.45m²=实用面积83.3m²,加上赠送后得房率93.6%。

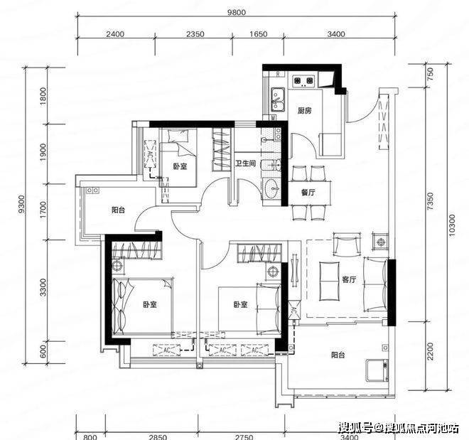
109m²的4房2厅2卫,1B栋06户型,设计的是竖厅南北通透格局,得房率79.6%(不含赠送),阳台西南朝向看花园。套内面积86.77m²+赠送面积16.43m²=实用面积103.2m²,加上赠送后得房率94.67%。

109m²的4房2厅2卫,1G栋02户型,设计的是经典竖厅格局,客厅3.9米开间,得房率79.6%(不含赠送),阳台6.43m²东南朝向看花园。套内面积86.77m²+赠送面积14.41m²=实用面积101.18m²,加上赠送后得房率92.82%。

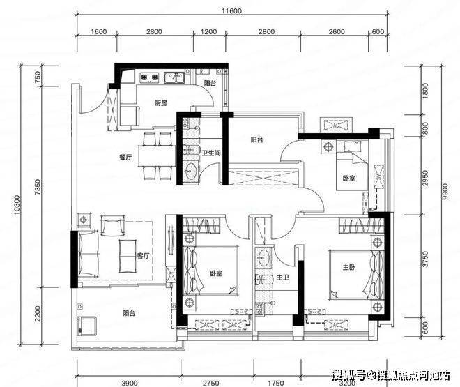
135m²的5房2厅2卫,1G栋01户型,设计的是竖厅南北通透格局,客厅4.2米开间,得房率79.6%(不含赠送),阳台7.14m²东南朝向看花园。套内面积107.5m²+赠送面积21.81m²=实用面积129.31m²,加上赠送后得房率95.78%。

135m²的5房2厅2卫,1E栋03户型,楼王单位,设计的是竖厅南北通透格局,客厅4.15米开间,得房率79.6%(不含赠送),阳台6.64m²正南朝向看花园。套内面积107.5m²+赠送面积21.51m²=实用面积129.01m²,加上赠送后得房率95.56%。

户型总结:

81㎡三房两卫,空间利用率高,功能齐全,满足一家需求。

89㎡四房两卫,同样的面积,多一间房。两孩家庭也能3代同堂。

108㎡四房两卫,部分独立入户,享受品质生活。

135㎡五房两卫,奢阔平层独门独户,悦享宽境奢居。

项目周边配套情况:

交通配套

直线距离约400m到达地铁13号线月亮路站(建设中),1站凤凰城,9站到南山(约30分钟到达南山)。2025年将推动13号线二期(北延)建成通车(信息来源:宝安日报)。

通过南光、龙大高速,30分钟可达深圳中心区及机场。大外环高速横贯深圳,光明城站高铁30分钟至广州、香港。

商业配套

项目自带1.5万方特色商业街,隔壁润宏也有约6万㎡特色商业街区,涵盖TOD集中商业、公园潮聚场等多元形态,类似华润置地打造的万象天地新型商业体,提供24小时潮流体验。

3公里内汇聚光明大仟里(15万㎡)、蓝鲸世界(10万㎡)、万达广场(6万㎡)三大商圈,提供高端消费体验。

学校配套

社区内配置9班幼儿园,100米处在建一所九年一贯制学校,与项目一路之隔。

周边名校众多,包括深中光明科学城学校、深实验明湖校区和深大附属光明学校。好消息就是26年如果有需求,就可以申请(比润宏提前一年)。

生态资源

项目步行500m即达约60万㎡明湖城市公园,周边还有约3000㎡三角公园规划中。周边2公里范围内近享约200万㎡城市公园美景,包括明湖城市公园、鹅颈水湿地公园、东坑湿地公园等。

松茂御城优势总结:

1、距离在建的13号线月亮路站约400米,预计2025年或2026年通车,届时去到南山非常方便;

2、深实验光明学校+深中光明学校,教育资源较好;

3、使用率较高,接近100%,同面积多一房。

4、交房时间更早,所见即所得。

看完以上关于深圳光明松茂御城楼盘相关的图文介绍,如果您对我们楼盘感兴趣的话,建议您可以联系我们松茂御城开发商售楼处全国免费400热线电话:400-880-7297(已认证)在线进行免费咨询或对接楼盘现场销售人员(中介请勿扰),我们可以为您安排本楼盘现场销售一对一在线服务,比如说把楼盘的最新图文资料、样板房视频、通过手机的方式发给您看一看、您不需要立即过来楼盘现场就能够对我们楼盘熟悉个大概,还可以告诉您关于我们光明松茂御城楼盘对比周边楼盘的优点缺点、楼盘这几天最新的优惠政策、银行政策以及LPR利率、积分入学,等相关购房方面的问题都给你讲解的明明白白,让您买房不踩坑,毕竟买房是大事。找现场销售咨询并不需要额外花钱,反而更省钱,而且可以避免一些中介虚报价格浪费你宝贵的时间和精力,我们会把额外认购优惠、按时签约优惠、房贷优惠、一次性付款的优惠都告诉您,希望您能通过这个平台,全面了解我们的楼盘信息并顺利、开心的完成购房流程。

免责声明:以上展示的关于深圳松茂御城楼盘最新相关图文资料可能有部分来自于网络,一切信息以最终在在我们楼盘现场签署的购房合同为准,如图文内容可能无意中侵犯某方权益的话,请及时联系我们将配合处理。

声明:本文由入驻焦点开放平台的作者撰写,除焦点官方账号外,观点仅代表作者本人,不代表焦点立场。