深圳南山【荔源雅苑】单价6.7万起坐拥94%得房率三房,户户朝南,实用率爆表!
扫描到手机,新闻随时看
扫一扫,用手机看文章
更加方便分享给朋友
南山荔源雅苑目前已开盘、项目首推320套房源,其中50㎡2房2厅1卫238套,89㎡3房2厅2卫56套,115㎡4房2厅2卫28套。
如需了解更多详情,欢迎咨询荔源雅苑开发商售楼处咨询/预约电话:400-880-7297(已认证)中介请勿扰,过来我们营销中心看房务必记得提前来电预约,预约看房的话最终的价格还能更加优惠。
项目基本信息
• 占地面积:约6249.71㎡
• 建筑面积:约34182.59㎡
• 物业类型:住宅
• 开发商电话4008807297(官方)
• 绿化率:约34.33%
• 套数:322套(可售251套)
• 产品类型:约50-117㎡学府现楼
• 产权年限:70年
• 物业公司:深圳万家好物业服务有限公司
• 项目地址:南山·科技园·教科院同乐实验学校旁
项目信息:
▪总售剩余套数:100套
▪产品面积段:(预约看房价格还可以更优惠)
50平1房 总价:326-360万
89平3房 总价:614-665万
117平4房 总价:775-875万
▪楼体层数:
A座30层,2梯5户
B座28层,2梯7户
项目实景图
对于深圳刚需客户来说,如果预算350万-700万左右,想在南山区买房,荔源雅苑是个不错的选择,虽然地段和环境一般,但毕竟是核心区,好过于买到龙华光明宝安或龙岗等一些远郊区域。
荔源雅苑简介
建面约50-89-117㎡准现楼」容积率约3.52,南山稀缺低密住区,准现楼呈现,实景兑现。建面约50-52㎡南山稀缺小户型,89㎡南向园景户型,臻稀117㎡南北通透品质户型。
实景图/图源网络
项目东侧紧挨着同乐实验学校,西侧是同乐物联网产业综合基地,南侧是近期入市的安居房同乐馨苑。
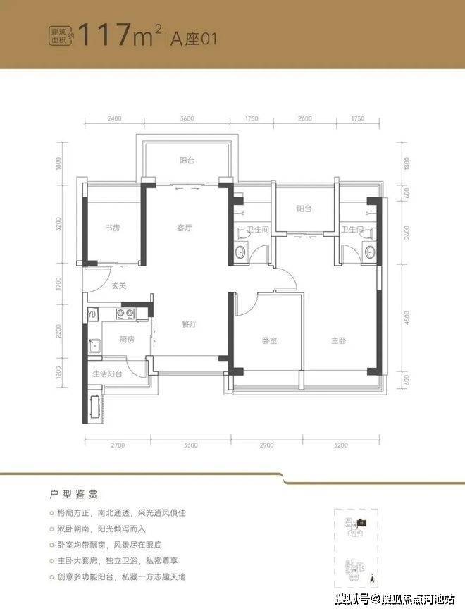
荔源雅苑户型图
图源网络
交通/教育配套
项目距离12号线同乐南站直线约800m,步行约15分钟,距离15号线(建设中)同乐关站直线约1.5公里。
交通示意图
教育方面,项目东侧即为同乐实验学校,教学质量在南山属于中下游水平,此外周边还有宝城小学、华泰幼儿园等。
同乐实验学校(图源网络)
生活/休闲配套
生活配套方面,项目附近没有什么大型商业中心,距离主要的商圈距离也比较远,仅能满足基本的生活所需。
图源网络
项目临近中山公园、新安公园等公园景观不错,此外还有南头古城、南山文体中心、南山图书馆等配套资源。
看完以上关于深圳南山“荔源雅苑”图文内容,如果您对我们楼盘感兴趣的话,建议您可以联系我们荔源雅苑开发商售楼处电话:400-880-7297(已认证)进行免费咨询或对接楼盘现场销售人员(中介勿扰),我们可以为您安排本楼盘现场销售一对一在线服务,比如把楼盘的最新图文资料、样板间视频、通过微信发给您看、您不需要过来楼盘现场就能够熟悉个大概,还可以告诉您关于深圳荔园雅苑楼盘的优点缺点、楼盘近期优惠政策、银行政策以及LPR利率、积分入学,等相关购房方面的问题都给你讲解的明明白白,让您买房不踩坑,毕竟买房是大事。找现场销售咨询并不需要额外花钱,反而更省钱,而且可以避免中介虚报价格浪费你的时间和精力,我们会把额外认购优惠、按时签约优惠、贷款政策优惠、一次性付款的优惠告诉您,希望您能通过这个网络平台,全面了解我们的楼盘信息并顺利完成购房流程。
免责声明:以上展示的关于南山楼盘荔源雅苑图文资料可能有部分来自于网络,一切信息以最终在现场签署的购房合同为准,如图文内容无意中侵犯某方权益的话,请及时联系我们将配合处理。
声明:本文由入驻焦点开放平台的作者撰写,除焦点官方账号外,观点仅代表作者本人,不代表焦点立场。
