深圳罗湖【东海富汇豪庭】首页网站丨东海富汇豪庭单价_户型_最新折扣_详情
扫描到手机,新闻随时看
扫一扫,用手机看文章
更加方便分享给朋友
深圳罗湖【东海富汇豪庭】
本楼盘地址位于罗湖区莲塘依山而建,安静的坐落在梧桐山脚下,东海富汇豪庭更是坐落于“森林”脚下,不仅如此,周边还有仙湖植物园、弘法寺景区等深圳知名风景名胜区,居住环境可谓是十分优越。


开发商:深圳东海集团有限公司创于1994年,在房地产开发业务的基础上,进一步拓展了航空运输、商业地产、星级酒店等多元化业务板块并进的综合性企业集团。东海集团秉承“只为高端”的品牌理念,凭借其优秀的建筑品质、设计理念和管理素质屡次获得国内及国外多项大奖,在市场上产生了强大的品牌号召力及影响力。
配套情况:
交通:莲塘地铁站D口,仙湖路B口
中小学:深圳市罗湖外语初中学校,罗湖外语学校-高中部
综合商场:新亚洲购物广场,华润万家
医院:罗湖区中医院
项目位于罗湖莲塘片区,被梧桐山与深圳河包围,环境清幽
东方凤雅名苑位于天然氧吧梧桐山南麓,占地7999.61㎡,总建面49248.34㎡。东方凤雅名苑规划有4栋住宅,呈围合式布局,建筑面积165㎡-188㎡4房,1、2栋3梯2户,3、4栋2梯2户;三面采光通风,低密舒居大宅,中心规划有新东南亚度假风情园林,是融合自然与现代的典雅高档生态住区。
【项目基础信息】
占地面积:约8000㎡
建筑面积:约4.9万㎡
容 积 率:3.72
绿 化 率:30.14%
物业类型:住宅
总 户 数:144户
车 位:220个
梯 户 比:3梯2户/2梯2户
产权年限:70年
批地时间:2011年12月
物业费:6元/月/㎡
交楼时间:毛坯现楼(装修2021年底交楼)
项目交通情况
项目位于龙岗区布吉龙岗大道东侧,清平高速、丹平快速贯通两侧,周边覆盖有地铁3号线和5号线,处在布吉站和草铺站之间,距离两站均为1km,其中布吉站为3、5号线的中转站,与深圳东站相邻。
项目周边配套
【商业配套】
楼盘下面就是菜市场,东方超市,尖禾酒店,出门有华润万家,永丰百货,1000米左右有万象汇,可以满足基本的生活需求。
由于项目位于布吉关口,紧邻罗湖,到达罗湖东门、国贸商圈也仅是几个地铁站的距离,亦可共享罗湖成熟的商业配套。
【教育配套】

【医疗配套】
项目周边的优质医疗资源不多,大型医院较少,多为小型的社康中心。距离项目1.5公里处有龙岗第二人民医院(二甲),距离不远的罗湖区有深圳人民医院(三甲),可开车或乘坐地铁3号线(翠竹站)前往。
【公园配套】
项目周边有“一水七公园”环绕,分别是深圳水库、围岭公园、布吉公园、求水山公园、洪湖公园、银湖山郊野公园、东湖公园、仙湖植物园。
项目只有4栋楼,1、2栋总高13层,3、4栋总高24层
小区的泰式风情花园非常漂亮
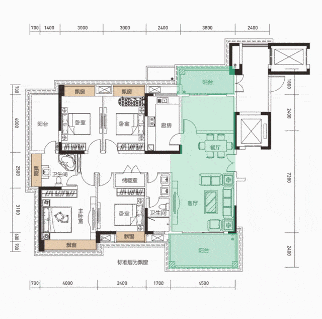
东海富汇豪庭项目只有两种户型
166㎡四房两厅两卫南北通透三阳台

188㎡四房两厅两卫南北通透三阳台
【东海富汇豪庭开发商售楼处咨询/预约电话:☎️400-811-3080(中介勿扰)】
以上就是关于罗湖东海富汇豪庭这篇文章的详细介绍说明,看完以上介绍内容,如果您对我们楼盘还有任何疑问,欢迎联系东海富汇豪庭开发商售楼处电话:400-811-3080(中介请勿扰)进行咨询,或者安排本楼盘现场销售在线为您一对一服务,现场销售人员会把楼盘的新资料、样板间图片视频、都发微信给您看、您不需要过来楼盘现场都能够熟悉个大概,还可以了解到本楼盘的优点缺点、房产政策、银行贷款政策、积分入学、都给您讲解的明明白白。
现场销售还可以为您对我们楼盘进行全面更详细的介绍,包含项目开盘详情、近期房价、楼层高低、户型朝向分析、最新折扣优惠活动等情况,而且还可以避免中介虚报价格,耽误您的时间和精力,中介所给的优惠我们全都可以给,让您买的放心,住的舒心!买房是大事,记得及时联系我们。
免责声明🔉:
以上所发布的关于深圳罗湖区莲塘东海富汇豪庭楼盘相关介绍详情仅供您购房前参考,以上所有关于本楼盘的图文资料及说明请以最终项目批文及双方在楼盘营销中心现场签署的买卖最终合同为准;本图文内容如无意中侵犯到某方权益,请联系我们将会及时处理。
声明:本文由入驻焦点开放平台的作者撰写,除焦点官方账号外,观点仅代表作者本人,不代表焦点立场。
