深圳南山荔源雅苑(售楼处)首页网站-荔源雅苑(营销中心)-荔源雅苑欢迎您丨户型价格-容积率-样板房-配套详情
扫描到手机,新闻随时看
扫一扫,用手机看文章
更加方便分享给朋友
温馨提示:因近期参观的购房者较多,所以本楼盘采取预约制,过来营销中心现场参观样板间请记得提前拨打开发商售楼处400热线电话在线预约,感谢您的配合!
实景图
好消息:2025年五一期间推出特价房单元,先到先得!
项目基本信息
占地面积:约6249.71㎡
建筑面积:约34182.59㎡
物业类型:住宅
容积率:约3.52
绿化率:约34.33%
套数:322套(可售251套)
楼体层高:A座30层、B座28层
开发商电话:400 880 7297(官方)
单层层高:3米
梯户比:A座2梯5户、B座2梯7户
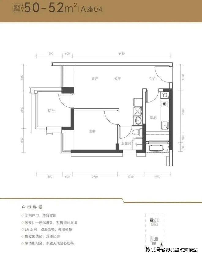
产品类型:约50-117㎡学府现楼
产权年限:70年(2020.3-2090.3)
物业费:6.68元/㎡/月
物业公司:深圳万家好物业服务有限公司
项目地址:南山·科技园·教科院同乐实验学校旁
一、项目核心参数:低密现房+小户型上车,但硬伤扎堆
基本属性
地段基因
:南山区同乐片区中山园路与铁二路交汇处,紧邻南山科技园、前海自贸区、西丽高铁枢纽三大产业高地,属“科技园居住外溢第一站”。
开发背景
:由深圳市荔源实业与源兴发展实业联合开发,总建面3.36万㎡,容积率3.52(南山新盘最低之一),含2栋30层超高层,总户数322套,2025年6月精装现房交付。
建筑硬指标
50㎡两房
:总价309万起,次卧面宽仅2.5米,需封阳台改造功能性空间;
89㎡三房
:总价589万起,南向采光但厨房无生活阳台;
117㎡四房
:总价741万起,南北通透但北向受货柜车噪音干扰。
户型定位
:主推50-117㎡两至四房,套内使用率72%-75%,但实际得房率仅68%-70%:
社区隐患
:车位比仅1:0.75(240个车位),高峰期停车需抢位;回迁房与商品房混居,私密性弱于纯住宅社区。
二、配套能级:规划红利与现实现状的撕裂感
交通:双地铁概念与步行痛点
地铁红利
:12号线同乐南站直线800米(步行15分钟),30分钟直达科技园/前海;15号线(在建)同乐关站1.5公里,但施工周期或延长至2028年。
自驾硬伤
:北环大道、南坪快速高峰期拥堵指数达7.8,至前海需绕行40分钟,西北向户型噪音达65分贝。
教育与商业的“预期落差”
学区争议
:划入教科院同乐实验学校(九年一贯制),步行仅100米,但2024年初中四大率仅3.2%,教学质量属南山二梯队末位。
商业荒漠
:依赖1万㎡隆尚Minitown(招商率不足30%),大型商业需驱车2.3公里至海雅缤纷城,日常买菜需步行至城中村夜市。
生态特权与界面短板
景观资源
:楼下规划2.5万㎡公园绿地,但东南侧物流园区施工将持续至2027年;
城市界面
:片区被城中村与工业区包围,城市升级需5-8年兑现。
三、价格博弈:倒挂30%背后的流动性困局
定价策略
深铁阅山境
(二手7.8万/㎡):纯住宅社区+成熟商业,但容积率5.0;
荔源雅苑优势
:现房+低总价,但装修标准被碾压。
备案价7.26万/㎡
:特价房折后5.4万/㎡起,对比周边鸿荣源尚璟公馆(二手8.2万/㎡)倒挂30%,但产权缩水至65年(2020-2090年)。
竞品对比
:深铁阅山境(二手7.8万/㎡):纯住宅社区+成熟商业,但容积率5.0;
荔源雅苑优势:现房+低总价,但装修标准被碾压。
长线价值
旧改红利
:隶属西丽高铁枢纽辐射区,但东侧同乐村旧改拆迁停滞,产业人口导入需10年;
流动性风险
:总价300-800万段竞品库存超3000套,二手成交周期比科技园板块长3-6个月。
四、购房者终极指南
适配人群
地缘刚需
:预算300-600万,在科技园/西丽工作的首置家庭,能忍受5年界面升级期;
倒挂投机客
:押注15号线通车+西丽高铁站2027年运营红利,持有周期建议3-5年。
避坑策略
选房优先级
楼层
:15层以上南向(避开低楼层噪音+采光遮挡),117㎡>89㎡>50㎡;
杀价技巧
:争取物业费减免至5元/㎡·月(现行6.68元),清退房源最高可享85折。
风险对冲
要求开发商书面承诺“2026年学区不调整”;
优先选择带专梯入户的117㎡户型(二手溢价空间更高)。
硬伤预警
圈层混杂
:回迁房与商品房共享园林、车库,私密性弱于纯商品社区;
装修黑洞
:精装品牌未公示,需预留10-15万改造预算。
如果看完关于我们深圳荔源雅苑楼盘详情介绍后,如果您还对荔源雅苑房价,售楼处地址,备案价,户型图,剩余房源,规划图,营销中心位置,周边配套,楼盘优缺点,开发商售楼处电话,开盘多少钱一平,附近地铁交通怎么样,楼盘最新消息以及近期开发商折扣优惠、特价房,售楼部最新销售详情,工程进度情况,学校学区划分等具体详情需要了解的话,欢迎咨询我们荔源雅苑开发商营销中心电话进行沟通。
【荔源雅苑开发商售楼处咨询/预约电话☎️ 400-880-7297(已认证,中介勿扰)】
✅ 本项目暂不接受临时到访,过来参观样板房请记得提前来电预约!
✅ 为您安排楼盘现场销售全程一对一在线解答,给您更贴心的体验!
温馨提醒:我们楼盘开发商售楼处400电话没有设置任何所谓的“分机号”,拨打前请仔细甄别,注意保护个人隐私!谨防上当!
免责声明:
以上所发布的关于深圳南山荔源雅苑楼盘相关介绍详情仅供您购房前参考,以上所有关于本楼盘的图文资料及说明请以最终项目批文及双方在楼盘营销中心现场签署的买卖最终合同为准;本图文内容如无意中侵犯到某方权益,请联系我们将会及时处理。
声明:本文由入驻焦点开放平台的作者撰写,除焦点官方账号外,观点仅代表作者本人,不代表焦点立场。
