万丰海岸城,深外宝本部+精装+山姆楼上,宝安沙井住宅新盘!
扫描到手机,新闻随时看
扫一扫,用手机看文章
更加方便分享给朋友
最新消息:深圳宝安——万丰海岸城·檀府,2025年10月25日上午已开盘!西部唯一新规豪宅,高实用率!
万丰海岸城户型和房价说明(预约看房以下价格还可以更便宜)
88.85平,折后总价389-411万,单价4.38-4.62万
90.75平,折后总价401-425万,单价4.42-4.68万
93.18平,折后总价442-472万,单价4.74-5..06万
102.8平,折后总价479-525万,单价4.66-5.11万
120.58平,折后总价549-620万,单价4.55-5.14万
124.58平,折后总价566-644万,单价4.54-5.17万
138.99平,折后总价676-741万,单价4.86-5.33万
168.85平,折后总价846-954万,单价5.01-5.65万
开盘折扣体系:诚意登记99折,认筹97折,开盘认购98折,开盘限时大礼包,准签98折;大礼包仅限开盘两天(10月25、26号)。
折后计算方式:备案价*(0.99*0.97*0.98-大礼包)*0.98。预约看房价格折扣还可以更便宜!
温馨提示:因近期参观的购房者较多,所以本楼盘采取预约制,过来营销中心现场参观样板间请记得提前拨打开发商售楼处400热线电话在线预约,预约看房价格更优惠,感谢您的配合!
备案价格表
航拍照片
小区实景图
项目基本信息
万丰海岸城品质在沙井也是断层领先,外立面采用铝板、石材和玻璃幕墙,这基本是10万+新盘才有的配置。
相比前面几期,这次檀府距离11号线马安山站仅300米,同样带深外宝安学位!目前已建至十几层!
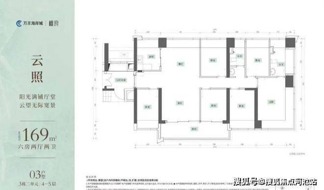
万丰海岸城户型图:
楼栋设计呈南北向点式排布,保证每栋每户通风采光,东向一线无遮挡看大钟山公园景观。
2、产品细节
去海岸城现场踩盘过两次,品质上在沙井新房市场确实独一档。从大门到社区园林再到入户大堂,规模、设计和用料都非常舍得投入,做的很有质感!
这次的檀府不仅是户型,在小区设计和品质用料上又进一步做了全套迭代进阶。
外立面
小区外立面采用铝板、石材和玻璃幕墙,这基本是10万+新盘才有的水准,在目前的宝安北也属于品质天花板了。
小区大门
近些年各大房企越来越重视小区大门,用料和规模都花了不少心思打造。
像保利瑧誉府,大门约30米宽,11米高;海岸城檀府大门也有约8m高、超20m宽,在同价位小区里很少有这种配置。
园林设计
小区风格为禅意园林,由户田芳树大师设计,之前南山海岸城的园林也是其亲自执笔。
檀府园林中大量运用大理石,还布置有罗汉松、小叶紫檀等名贵树种,并配置各式艺术水景。
风雨连廊
小区也设计了片区少有的风雨连廊,一方面遮风挡雨,另方面也让私密性有所提升。
作为小区设计的主线,在风雨连廊沿途的休闲庭院还布置了不少绿植,丰富整个社区的空间体验。
连廊实景图
二层连廊将原本割裂的商业、公园打通,同时人车分行,整体空间更加舒适、安全。
这种将社区和周边商业、公园链接的设计还是挺前沿,像之前后海沄玺流传的设计方案也是这样。

入户大堂
大开发商都挺重视小区入户大堂的用料,像润宏城入户大堂就有约60㎡的玉石背景墙。
这次檀府也沿用之间的标准,选择米黄石材+玉石背景墙,颇具星级大堂的水准。
3、咫尺的学铁商全配套
深外宝安学校
海岸城檀府区域内的城市配套都由海岸城统筹,楼下就是深外宝安学校本部和在建的北校区,可实现目送式上学。
深外宝本部+北校区(在建)总规划超7000个学位,据网上数据,今年本部中考深圳八大录取率超16%,普高录取率超80%!
海岸城购物中心+山姆会员店
万丰海岸城体量约20万㎡,相当于近2个南山海岸城,未来有望成为西部最具代表性的商业中心。
近300+品牌入驻,超100家宝安北首店,是宝安北目前最大的商业综合体!整个商业除了与连廊相连接外,也与住宅互动,平时逛街购物十分方便。
11号线马安山站地铁口物业
这次海岸城檀府距离11号快线马安山站直线仅300m,5站到机场,7站到宝中。换乘1号线还可通勤南山科技园、后海、福田中心和车公庙等。
陆路交通方面有凤塘大道、宝安大道、广深公路三条城市主大道,自驾到南山(36分钟)、福田(45分钟)、罗湖(50分钟)等市区较为便捷。
楼下三公园环绕
小区还紧邻大钟山公园&万丰公园&海岸公园,周边生态和景观都得到满足。
【万丰海岸城开发商售楼处咨询/预约电话☎️ 400-880-7297(中介勿扰)】
✅ 本项目暂不接受临时到访,过来参观样板房请记得提前来电预约!
✅ 为您安排楼盘现场销售全程一对一在线解答,给您更贴心的体验!
温馨提醒:我们楼盘开发商售楼处400电话没有设置任何所谓的“分机号”,拨打前请仔细甄别,注意保护个人隐私!谨防上当!
免责声明:
以上所发布的关于深圳宝安沙井万丰海岸城楼盘相关介绍详情仅供您购房前参考,以上所有关于本楼盘的图文资料及说明请以最终项目批文及双方在楼盘营销中心现场签署的买卖最终合同为准;本图文内容如无意中侵犯到某方权益,请联系我们将会及时处理。
声明:本文由入驻焦点开放平台的作者撰写,除焦点官方账号外,观点仅代表作者本人,不代表焦点立场。
