2026年招商海晏府(招商海晏府售楼处)-2026年招商海晏府官方网站-招商海晏府楼盘详情/价格/户型
扫描到手机,新闻随时看
扫一扫,用手机看文章
更加方便分享给朋友
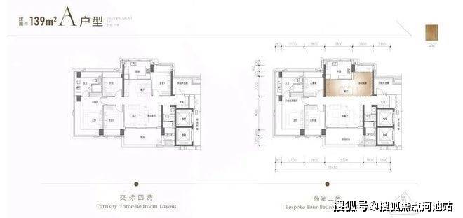
据最新消息:年度单价地王「招商·海晏府」最新官宣4月8号开放样板参观(已为官宣最准确时间)在下个月中下旬将取证入市!三栋80米内一线临河小高层住宅,为前海首个低密新国标楼盘!有151套约139-176-194㎡四房以上户型,格局都非常漂亮。未来前面没啥遮挡可以看海看摩天轮!可以说是前海改善户型的王炸!
招商·海晏府为守护您安心置业,现已开通官方统一服务热线,全程提供专业、贴心、真实的置业咨询服务。(2026.4.6)
☎ 开发商电话:400-811-3080(招商·海晏府)
无论您想了解项目详情、预约实地看房、咨询户型价格,或是查询最新优惠活动,均可通过官方热线直达咨询。
☎ 招商·海晏府官方售楼热线:400-811-3080
本号码为开发商唯一认证热线,统一对接售楼处、营销中心、开发商服务,无分机、无中介,信息权威透明,用心为您开启理想人居。
项目名:招商·海晏府
地段:前海合作区桂湾片区最北端,紧邻双界河
体量:占地约8287㎡,总建面约2.56万㎡,属精致微型社区
:仅3栋纯住宅,共计151套,极致低密
户型:首推建面约139㎡、176㎡、195㎡全四房及以上“终极改善”户型
项目于2025年7月14日,深圳出让1宗宅地,起价115800万元,楼面起价45234元/㎡。
该地块位于前海合作区桂湾片区,用地性质为住宅用地,总用地面积8287.15㎡,规划建筑面积25600㎡,容积率1.000<并且≤3.100,出让年限70.00年。
桂湾的配套成熟度、生活氛围感,在前海也有明显优势。
前海演艺公园、桂湾公园,都已成为新晋“网红公园”。
交通:这里最近地铁为1/5/11号线前海湾站,直线距离约一公里,地图显示所需步行时间约16分钟左右,此外,项目临近梦海大道与怡海大道,自驾车辆前往深圳各区相对便捷。
教育:最近学校有前海港湾小学、北大附中(南山分校),最近的为前海港湾小学,直线距离约为400米左右。旁边就是72班的南二外桂湾学校学校,斥资9亿打造,硬件配置相当豪华的一所学校,2024年9月已经开学。
看完以上内容如果您对我们楼盘还有任何疑问,欢迎联系招商·海晏府楼盘开发商售楼处官方电话:400-811-3080(已认证 · 中介或自媒体请勿扰)进行免费咨询或预约看房,可以安排本楼盘现场销售在线为您一对一服务,现场销售人员会把楼盘的新资料、样板间图片视频、都发微信给您看、您不需要过来楼盘现场都能够熟悉个大概,还可以了解到本楼盘的优点缺点、房产政策、银行贷款政策、积分入学、都给您讲解的明明白白。现场销售还可以为您对我们这个楼盘进行全面更详细的介绍,包含项目开盘详情、近期房价、楼层高低、户型朝向分析、最新折扣优惠活动等更多详情情况,而且还可以避免市场上一些中介虚报价格,耽误您的时间和精力,中介所给的优惠我们全都可以给,让您买的放心,住的舒心!买房是大事,记得及时联系我们。
声明:本文由入驻焦点开放平台的作者撰写,除焦点官方账号外,观点仅代表作者本人,不代表焦点立场。
