深圳湾【恒裕深圳湾】在售建面约340-580㎡4-5房海景公寓,欢迎预约品鉴!
扫描到手机,新闻随时看
扫一扫,用手机看文章
更加方便分享给朋友
本项目位于深圳湾核心区域,与顶级公寓深圳湾一号、住宅华润悦府相毗邻,本次推出面积62-73㎡真公寓,通燃气、带阳台!楼层15-26楼,层高3.6米,总价1500-1700万!带精装出售!可直接购买!更多详情欢迎咨询恒裕开发商售楼处电话:400-811-3080,中介勿扰,温馨提示:过来营销中心参观样板间请记得提前拨打售楼处400热线进行预约,过来现场需要验资,感谢您对我们工作的支持与配合!

【项目基础信息】
【总占地】约2.5万㎡
【总建面】约41万㎡
【交楼时间】2023年12月
【交付标准】一线品牌精装交付
【开发商电话】4008113080
【产品面积】约62-72㎡一室一厅
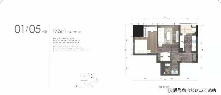
分布楼层:15-26层
公寓层高:3.6m
【恒裕深圳湾户型图欣赏】
01| 72㎡ (西南端头、主卧西南双面采光)
05|72㎡ (西北端头位置、主卧双面采光、无遮挡俯瞰东大街、保利剧院无敌视野)
02|68㎡(约4米奢阔开间,采光绝佳,可看山景)
03|63㎡ (约14.3㎡豪华卧室带步入式衣帽间、户型方正)
开发商为深圳市创佶置业有限公司,恒裕是主要的开发主体。
目前已开发的项目主要分布在南山区,譬如香蜜湖平层大宅九号大院、南山半山别墅南山紫园、城市综合体南油来福士广场(与新加坡凯德集团合作开发)等。
储备项目则拓展在深圳不同区,以龙岗居多,上一个入市的住宅项目是位于龙岗南联的低密度高实用新盘恒裕珑城。
恒裕在深圳近几年最为人称道的是后海的恒裕滨城,其二期作为其中的摩天住宅地标,尤为突出,且也算是后海住宅区内的C位。
好巧不巧,恒裕在前海桂湾片区的恒裕前海金融中心,也是C位,且位居首排。
同时占据后海住宅区,深圳湾后海总部基地和前海的C位,实力强不强且不说,眼光倒是很犀利。
稍微可惜的是,未来其周边几块地建成后可能会对其景观造成遮挡。
目前,恒裕在南山除了恒裕深圳湾外,同时在建的还有9号线南油西站地铁口的区域地标综合体项目。
项目位于深圳湾后海总部基地,后海滨路和海德一道交汇处的南面,与枢纽级地铁站后海站相邻。
通过地铁,可触达深圳机场、前海、福田中心区等深圳其它重要片区。
项目往东正面对向后海内湖,可一览深圳湾,眺望罗湖至南山的城市大天际线,及未来深圳湾超级总部基地建筑群。
近一些的深圳湾体育场、华润“春笋”、人才公园、海岸城商圈以及未来的华润深圳湾广场等城市综合配套唾手可得,不在话下。
区域内的办公楼宇目前已吸引华润、天虹、工行、恒大、五矿金融、阿里巴巴等大型企业的总部落户,且大部分总部大楼已处于建设之中或已启用。
示意图:
其所处位置几乎是后海总部基地的C位,前排左邻右舍分别是华润悦府及深圳湾壹号,是深圳湾后海总部基地内不可多得的商住资产。
恒裕深圳湾占地面积约2.5万㎡,总建面约41万㎡。
由三栋超高层建筑以及下沉式商业组成,其中写字楼高度约310m,公寓高度约255m,是集超甲级写字楼、公寓、都会商业等业态于一体的湾区综合体。
其中:
恒裕深圳湾写字楼高度约310米,将与华润“春笋”(约392米)、深圳湾壹号主塔楼(350米)共同支撑深圳湾后海总部基地的天际高度。
公寓高度约255米,主推建面约160-580㎡2-5房。约11米挑高大堂、23米观海面宽、3.6米层高等指标,定位豪奢,是深圳湾后海总部基地内的商住产品。
商业约8万㎡,规划打造为沉浸式购物中心,开拓延展海岸城、深圳湾万象城商圈。
为适应豪奢定位,打造硬实力产品,恒裕深圳湾邀请众多世界设计团队,从建筑、园林、室内、交通等方面多量考究,高标准打造。
体现出豪宅品质该有的诚意,也是要求开发商应具备打造精致城市的责任。
恒裕深圳湾,备案名为恒裕金融中心,已开盘,主推建面约160-580㎡2-5房的商务公寓,户型分三个面积段,162-164㎡户型、223㎡户型、340-343㎡户型,除此之外还有少量580㎡的超大面积产品。产品分段分布,162-164㎡户型分布在15-26层,223㎡以上户型分布在28-52层。
【恒裕深圳湾开发商售楼处咨询/预约电话:☎️400-811-3080(中介勿扰)】
温馨提示:本项目采用预约制,过来营销中心参观样板间请记得提前拨打恒裕开发商售楼处400热线预约,感谢您对我们工作的支持和配合!
免责声明🔉:
以上所发布的关于恒裕深圳湾楼盘信息仅供参考,所有图文资料及说明请以最终批文及双方在楼盘营销中心现场签署的买卖合同为准;本图文内容如无意中侵犯某方权益,请联系我们将会及时处理。
声明:本文由入驻焦点开放平台的作者撰写,除焦点官方账号外,观点仅代表作者本人,不代表焦点立场。
