深圳光明现楼地板价【深业云筑二期】单价2.65、总价257万起,买87-143平3-4房,精装现房

搜狐焦点河池站 2025-10-01 15:41:34
用手机看
扫描到手机,新闻随时看

扫一扫,用手机看文章
更加方便分享给朋友

光明公明马田街道【深业云筑二期】首期开盘推出4栋/5栋1/2单元/6栋/7栋,共793套房源,面积有89㎡的3房1卫,112-128㎡的4房2卫,143㎡的5房2卫户型。【项目名称】深业云筑二期【占地面积】约…

深业云筑·二期

总价255万起买3房!现房!

建面约89-143平3-5房

光明公明马田街道【深业云筑二期】首期开盘推出4栋/5栋1/2单元/6栋/7栋,共793套房源,面积有89㎡的3房1卫,112-128㎡的4房2卫,143㎡的5房2卫户型。

楼盘至今为止已经销控超430套房源,整体去化率约50%,还有不到400多套房源在售,目前在做特惠活动,在备案价85折的基础上,还给出了几台小米su7的额外巨额优惠,折后均价3.52万/㎡,折后单价3.03-4.02万/㎡,总价在278-589万/套。

户型以及房价说明(以下价格仅供参考,看房预约还可以更便宜!)

89㎡的3房2厅1卫,折后总价270-314万/套,单价3.03-3.52万/㎡。

112㎡的4房2厅2卫,折后总价371-411万/套,单价3.31-3.67万/㎡。

128㎡的4房2厅2卫,折后总价467-497万/套,单价3.64-3.88万/㎡。

143㎡的5房2厅2卫,折后总价523-576万/套,单价3.65-4.02万/㎡。

如需了解本楼盘更多详情,欢迎来电咨询深业云筑楼盘开发商售楼处免费400咨询/预约电话:400-880-7297(已认证)中介请勿扰,因近期参观的人员太多,本项目营销中心暂不接受临时到访,为不耽误您的行程,过来楼盘现场参观样板房请务必记得提前来电预约,预约看房的话最终房价还能更加优惠,最终价格包您满意!

下面是我们楼盘营销中心现场实拍照片:

项目介绍

深业云筑,位于深圳市光明区公明街道马田街道石家社区,地处光明科学城大科学装置区,紧邻地铁6号线公明广场站(1.1公里)及在建13号线公明南站(约700米),未来可直达南山科技园、后海总部基地;周边龙大、南光高速无缝衔接福田、南山,交通便捷。

项目总占地面积约5万㎡,建筑面积约32万㎡,容积率4.33,项目共分2期开发,原为石家村里的工业园区旧改,其中南区为一期,北区为二期,共12栋住宅组成,目前一二期都已经交房入住。

深业云筑2期,由深圳国企深业集团打造,共由5栋总高32-33F高的住宅组成,其中除了6栋总高33F,其它栋数都是32F,总规划795户,全部都是商品房住宅,其中5栋B座,6栋为2梯4户设计,其它栋数为3梯6户设计。

深业云筑户型图品鉴

89㎡的3房2厅1卫,E2户型,设计的是竖厅格局,客厅3.6米开,3个卧室分别做到了主卧13.5㎡/次卧9.54㎡/次卧8.1㎡(含墙体飘窗),厨房带1个小生活阳台,得房率:79.89%(不含赠送),东南/西南或正南朝向。

89㎡的3房2厅1卫,E3户型,仅4栋/5栋A单元/7栋的03号房才有,设计的是竖厅格局,客厅3.6米开间,3个卧室分别做到了主卧13.3㎡/次卧9.34㎡/次卧8.4㎡(含墙体飘窗),厨房带1个小生活阳台,得房率:79.89%(不含赠送),西南朝向。

112㎡的4房2厅2卫,C1户型,仅4栋/5栋A单元/7栋的05号房才有,设计的是竖厅南北通透格局,客厅3.9米开间,4个卧室分别做到了主卧22.44㎡/次卧9.9㎡/次卧8.95㎡/次卧7.85㎡(含墙体飘窗),厨房带1个小生活阳台,得房率:79.88%(不含赠送),阳台主朝西南向。

112㎡的4房2厅2卫,C2户型,仅5栋A单元/7栋的06号房才有,设计的是竖厅南北通透格局,客厅3.9米开间,4个卧室分别做到了主卧16.9㎡/次卧10.73㎡/次卧10.5㎡/次卧7.85㎡(含墙体飘窗),得房率:79.89%(不含赠送),阳台主朝东南向。

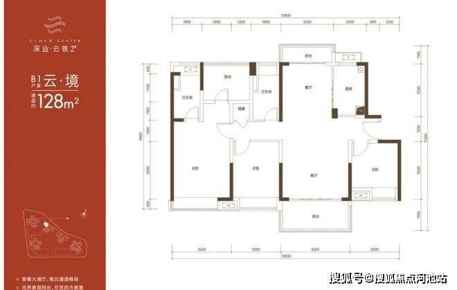
128㎡的4房2厅2卫,B1户型,仅5栋B单元的03号房才有,设计的是竖厅格局,南北通透双阳台,客厅4.2米开间,4个卧室分别做到了主卧19.44㎡/次卧12.3㎡/次卧12㎡/次卧10.5㎡(含墙体飘窗),得房率:79.71%(不含赠送),大阳台主朝正南向。

128㎡的4房2厅2卫,B4户型,仅4栋的06号房才有,设计的是竖厅南北通透格局,客厅4.2米开间,4个卧室分别做到了主卧20㎡/次卧12.3㎡/次卧11.1㎡/次卧10.2㎡(含墙体飘窗),得房率:80.14%(不含赠送),阳台主朝东南向。

143㎡的5房2厅2卫,A1户型,设计的是竖厅格局,南北通透双阳台,客厅4.5米开间,5个卧室分别做到了主卧20.72㎡/次卧11.52㎡/次卧10.44㎡/次卧10.07㎡/次卧7.5㎡(含墙体飘窗),得房率:80.4%(不含赠送),阳台主朝正南向。

备案价格表

01

项目基础信息

【项目名称】深业云筑二期

【占地面积】约1.85万/㎡

【建筑面积】约13.19万/㎡

【推售产品】约89-143平3-5房

【开发商电话】400 880 7297

【交付标准】简装

【交房时间】现房

【产权年限】70年

【房产性质】住宅

【总户数】795户

【楼层高】32-33层

【车位比】949个(1:1.2)

【容积率】4.84

【绿化率】40%

【梯户比】2梯4户/3梯6户

【管理费】3.5元/㎡

【开发商】深圳市深业明宏地产开发有限公司(深业集团)

【物业公司】深业物业运营集团股份有限公司

【项目地址】位于光明区公明街道马田街道石家社区

02

交通方面

项目距离在建的13号地铁线二期“公明广场站”距离1.1公里,“新庄站”(以前的公明南站)距离800米左右,另外深业云筑2期规划有公交首末站,可以快速接驳地铁站;现有的6号地铁线“公明广场站”距离有1.6公里,步行需要24分钟,毗邻公明南环大道、松白路等主干道,高效通达全城。

03

商业配套

项目自带社区底商,距离约1.1公里就是公明最大的大仟里购物中心,也是光明首个一站式大型购物中心,步行约15分钟即达步行约15分钟即达万汇城,天虹百货:2公里内享城芯商业配套。

04

教育配套

深业云筑1期有1所12班幼儿园,根据2024年光明区教育局最新的学区划分,小学学区划分在深圳教科院实验小学(光明)、秋硕小学、龙豪小学、光明区实验学校小学部,初中学区划分在光明第二中学、光明区实验学校初中部。

深圳教科院实验小学(光明),在2024年的录取积分是第4类62.25分,属于非光明区户籍+学区租房生源,如果买了商品房,只有是深圳户籍是能保证就读的。

05

优点:

1、旁边就是深圳市教科院光明实验小学,可以做到目送式教育,13号地铁线新庄站距离不到800米。

2、户型得房率还不错,不含赠送都达到了约80%的得房率,赠送面积也不算少,如果加上赠送基本都在90%左右的得房率。

3、目前优惠力度很大,折后290万买89平的3房基本都能有选择,就能买套89平的3房,410万左右就可以挑到不错的4房。

看完以上介绍,如需了解更多关于我们深圳光明区公明深业云筑二期楼盘最新消息、剩余房源以及楼层、这几天房价优惠活动、在卖的户型、限购政策、房贷相关问题等情况,欢迎来电咨询深业云筑开发商售楼处全国免费400咨询/预约电话:400 880 7297(已认证)中介请勿扰。

温馨提示:因近期本项目售楼中心来访的看房客户特别多,过来营销中心参观样板间采取预约制,为不耽误您的行程,过来营销中心现场看房请务必记得提前拨打售楼处400电话来电进行预约一下,预约看房价格还可以享受更多开发商内部优惠,名额有限千万不要错过,感谢您对我们工作的支持和配合,在此恭候您大驾光临实地品鉴。

免责声明:以上展示的关于深圳光明区深业云筑2期楼盘最新图文资料可能有部分来自网络,一切信息以最终在现场签署的购房合同为准,如图文内容无意中侵犯某方权益的话,请及时联系我们将配合处理。

声明:本文由入驻焦点开放平台的作者撰写,除焦点官方账号外,观点仅代表作者本人,不代表焦点立场。