南山桑泰·缙樾府3.62低容积率难再有,空间利用率达90%,每层楼3梯4户设计!
扫描到手机,新闻随时看
扫一扫,用手机看文章
更加方便分享给朋友
桑泰缙樾府位于深圳市南山区,项目距离12号线同乐南站900米距离,还有建设中的15号线同乐关站双地铁口物业,贯穿前海、后海、南山、宝安等重要片区,环经济发展核心区域。家门口一站式优质教育,目送式书香学府小学&初中:教科院同乐实验学校(直线距离约100m),南山首个教科院系实验学校&九年一贯制学校;约1万㎡隆尚Minitown(招商中,直线约100m)、海雅缤纷城1.7㎞、沃尔玛、西丽约8万㎡云城万科里、超50万㎡南山、宝中成熟中心高端商圈,尽揽一城繁华。

最新消息:
2024年12月6日,位于南山南头的桑泰缙樾府 低调取证开盘,当天去化率55.78%。
项目首推住宅套数147套,建面约114-115-118-133㎡4-5房,开盘约93折,折后均价6.79万/㎡,单价6.51-7.1万/㎡,总价737-943万/套,精装交付。
其定位和赤湾的改善型热盘——金众云山海很像,都是4房起的大户型,且使用率高、价格美丽。
项目总层高30-31层,容积率仅3.62,拥有3梯4户的豪宅配比,户户南北通透,加赠送后整体户型使用率达88%-90%。
【桑泰缙樾府开发商售楼处咨询/预约电话📞: 400-880-7297,中介勿扰】
温馨提示:因近期参观样板房的购房者较多,本楼盘采取预约制,过来营销中心现场参观样板间请记得提前拨打开发商售楼处400热线电话在线预约,感谢您的配合!
桑泰·缙樾府 项目位于南山同乐片区,中山路以东,铁二路以北,东侧紧挨着同乐实验学校。由3个地块组成,共计5栋住宅塔楼,其中地块二和地块三分明命名为荔源雅苑和乐源雅居,地块一包含两栋30-31层高的住宅塔楼。


备案价格如下:

基本情况
• 开发商:由深圳市塘泰投资发展有限公司和深圳市南山荔源实业股份有限公司共同合作开发。
• 位置:位于南山南头街道同乐北片区,中山园路与铁二路交汇处东北侧,距离12号线同乐南站A出口步行约850米,与南山教育科学院研究院同乐学校相邻。
• 规模:占地面积约0.9万㎡,规划总建筑面积约4.78万㎡,规定容积率3.62,绿化覆盖率约30%。由2座30-31高的住宅楼组成,共220户,配300辆车位。
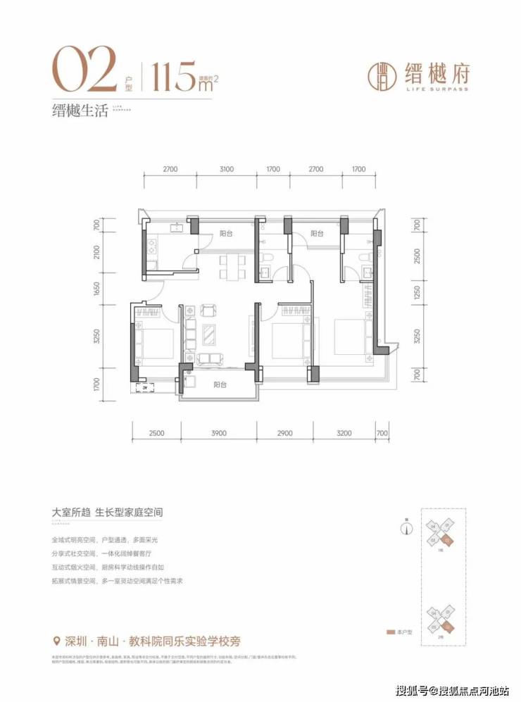
• 户型:建面约114㎡四房两厅两卫,约115㎡四房两厅两卫,约118㎡四房两厅两卫,约133㎡五房两厅两卫。
• 价格:备案均价约7.27万/平米,总价区间791-1015万,折后均价6.54万/平米,折后参考单价6.3-6.87万/平米。
桑泰·缙樾府户型分析
• 114㎡四房两厅两卫:客厅阳台朝东北,不过双大面宽采光且餐客厅完全通透,通风采光没问题。客厅开间3.9米,全屋飘窗部分赠送,客厅阳台、餐厅和一间次卧也有赠送面积,得房率能达到81%左右,加上赠送面积使用率基本能达到90%左右。
• 115㎡四房两厅两卫:客厅开间3.9米,户型朝西南,南北通透,动静分区合理,整体采光面充足,同样有较多赠送面积,居住舒适度较高。
• 118㎡四房两厅两卫:客厅开间3.9米,朝东南,户型方正,布局合理,通风采光良好,功能间尺度适宜,能够满足家庭生活需求。
• 133㎡五房两厅两卫:客厅开间4.3米,朝东南,进门有玄关厅,可做额外储藏室。五房设计,四间次卧分列两侧,主卧格外尊贵,还带有270度转角飘窗,空间利用率高,居住体验好。
项目优缺点分析
优点
1、桑泰缙樾府最大的优点就是户型好,得房率高;户型很方正,各功能间的空间都很OK,而且都是大飘窗,采光很好,再加上周边没有高楼遮挡,视野也不错;115㎡左右的4房得房率在91%左右;133㎡的大5房得房率在95%左右。
2、稀缺低密高层,项目容积率仅3.62,总层高只有30F,而且还是3梯4户,层高3.1米,自住来说,舒适度很高。。
3、纯改善4房,小区内没有回迁和人才房,都是商品房,居住人群很纯粹。
4、家门口的学校,项目楼下就是同乐学校九年一贯制,接送孩子上学很方便。
5、地段还行,北边是留仙洞总部基地,南边是科技园,如果是在附近上班的,物理距离很近,通勤还是很方便的。
如果看完关于我们深圳南山桑泰缙樾府楼盘详情介绍后,如果您还对缙樾府房价,售楼处地址,备案价,户型图,剩余房源,规划图,营销中心位置,周边配套,楼盘优缺点,开发商售楼处电话,开盘多少钱一平,附近地铁交通怎么样,楼盘最新消息以及近期开发商折扣优惠、特价房,售楼部最新销售详情,工程进度情况,学校学区划分等具体详情需要了解的话,欢迎咨询我们开发商营销中心电话进行沟通。
【桑泰缙樾府开发商售楼处咨询/预约电话☎️ 400-880-7297(中介勿扰)】
✅ 本项目暂不接受临时到访,过来参观样板房请记得提前来电预约!
✅ 为您安排楼盘现场销售全程一对一在线解答,给您更贴心的体验!
温馨提醒:我们楼盘开发商售楼处400电话没有设置任何所谓的“分机号”,拨打前请仔细甄别,注意保护个人隐私!谨防上当!
免责声明🔉:
以上所发布的关于深圳南山桑泰缙樾府楼盘相关介绍详情仅供您购房前参考,以上所有关于本楼盘的图文资料及说明请以最终项目批文及双方在楼盘营销中心现场签署的买卖最终合同为准;本图文内容如无意中侵犯到某方权益,请联系我们将会及时处理。
声明:本文由入驻焦点开放平台的作者撰写,除焦点官方账号外,观点仅代表作者本人,不代表焦点立场。
