松茂御城(光明)松茂御城房价/户型图/样板间/规划图/交房/松茂御城项目配套

搜狐焦点河池站 2025-10-06 14:27:00
用手机看
扫描到手机,新闻随时看

扫一扫,用手机看文章
更加方便分享给朋友

【开发商】深圳市松茂房地产集团有限公司【总占地面积】总约4.53万㎡【总建筑面积】总约29.78万㎡【总户数】共2130户,2期1225户(2期含380套回迁房)【户型面积】约81-89㎡-109-135㎡3…

最新消息:深圳光明【松茂御城】2期计划将在2025年8月底取证入市,拿证了开放样板房,下月初直接认购,目前户型图已曝光!81㎡三房二卫,89㎡四房二卫,109㎡四房二卫,135㎡五房二卫,光明户型天花板,得房率最高100%。将推出1栋A座-1栋H座住宅,共1225套房源,二期预计价格3.6万/㎡左右,准现房、精装交付。

松茂御城是光明区两大学区新房之一,涵盖深中、深实验和光明实验三大名校。与华润润臻园相比,其住宅楼层为31-32层。

松茂御城一期】现楼+地铁口物业+近100%实用率!最近内部消息,给出了清盘价超惊喜优惠,且已经是现楼,84㎡做到了3.8米的客厅!超100%使用率!

这次,开发商内部也给出了7X折优惠,折后价格如下,除了折扣外,还有额外媒体返利,具体可以扫码预约获取!

一期即买即住·赠送品牌精装

建面约82-89㎡ 精装现房 13号线双地铁口,价格如下(以下价格仅供参考,看房预约价格还可以更便宜!)

82㎡的3房2厅1卫,折后总价284万~312万/套,单价3.46~3.80万/㎡。

84㎡的3房2厅1卫,折后总价328-334万/套,单价3.9-3.97万/㎡。

86㎡的3房2厅1卫,折后总价289-321万/套,单价3.73-4.04万/㎡。

88㎡的3房2厅2卫,折后总价311-393万/套,单价3.5-4.46万/㎡。

89㎡的3房2厅2卫,折后总价317-345万/套,单价3.56-3.87万/㎡。

如需了解本楼盘更多详情,欢迎来电咨询深圳光明松茂御城开发商售楼处免费400咨询/预约电话:400-880-7297(已认证)中介请勿扰,因近期参观的人员太多,本项目营销中心暂不接受临时到访,为不耽误您的行程,过来楼盘现场参观样板房请务必记得提前来电预约,预约看房的话最终房价还能更加优惠,最终价格包您满意!

下面是我们楼盘售楼处实景图:

一、项目介绍

松茂御城,松茂集团开发,占地4.53万㎡,建面29.78万㎡,容积率4.67,绿化率40%。分2期建设,风雨连廊连接。规划2130户住宅,停车位2321个,车位比1:1.09。

一期总占地面积约1.4万㎡,总建筑面积约10.21万㎡,共由4栋住宅组成,其中1栋A/B座住宅33F,1栋C座住宅32F,2栋公寓32F,共规划905户,其中商品房279套,回迁房112套,公租房124套,另外还有390套商务公寓,停车位773个。

本次将推出的松茂御城2期,占地面积3.13万㎡,建筑面积20.74万㎡,计容面积16.21万㎡,容积率4.55,绿化率40%。由8栋住宅组成,其中6栋32层,2栋31层。规划1所幼儿园。

总规划1225户,含380套回迁房,其余为商品房。1栋E座楼王2梯4户,A座和H座2梯6户,其他栋2梯5户。地下室2层,车位1548个,充电桩车位465个,车位比约1:1.26。

二、项目基础数据

【开发商】深圳市松茂房地产集团有限公司

【总占地面积】总约4.53万㎡

【总建筑面积】总约29.78万㎡

【总户数】共2130户,2期1225户(2期含380套回迁房)

【户型面积】约81-89㎡-109-135㎡3-5房

【停车位】2321个(2期车位比1:1.26)

【物业及物业费】深圳市海天泰物业管理有限公司,3.8元/㎡

【开发商电话】4008807297

【容积率】4.55

【绿化率】约40%

【梯户比】2梯4户/2梯5户/2梯6户

【总楼栋及楼层】12栋,31-32F

【交楼时间】1期现房、2期准现房,精装交付

【产权年限】70年(2022年7月25日-2092年7月24日)

【项目位置】深圳光明区凤凰街道塘尾社区松白路与塘尾路交汇处

三、松茂御城项目户型图

01

松茂御城项目平面图

02

松茂御城户型图

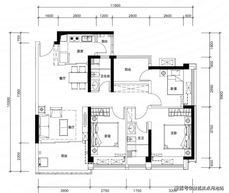
81m² 3房2厅2卫,1H栋01户型,南北通透,客厅3.3m宽,客餐厅独立。四开间朝南,卧室面积:主卧12.76m²、次卧7.57m²、次卧7.16m²(含飘窗)。得房率79.6%(不含赠送),U型厨房,卫生间干湿分区。阳台4.29m²东北向花园。套内面积64.48m²+赠送11.25m²=实用面积75.73m²,赠送后得房率93.49%。

81m²的3室2厅2卫,1H栋03户型,经典竖厅设计。客厅3.4米宽,LDKB一体化,三面朝南。主卧11.53m²/次卧9.9m²/次卧5.88m²(含飘窗)。得房率79.6%(不含赠送),U型厨房,卫生间干湿分离。阳台4.42m²西南向。套内64.48m²+赠送9.64m²=实用面积74.12m²,赠送后得房率91.5%。

81m² 3室2厅2卫,1G栋03户型,经典竖厅,客厅3.4米宽,LDKB设计,三朝南,动静分区。卧室:主卧12.02m²/次卧10.72m²/次卧7.01m²(含飘窗)。得房率79.6%(不含赠),U型厨房,卫生间干湿分离。阳台5.61m²东南向。套内面积64.48m²+赠送10.33m²=实用面积74.81m²,赠送后得房率92.35%。

82m²的3房2厅2卫,1G栋05户型,经典竖厅,客厅3.4米宽,LDKB一体,三面朝南。卧室面积:主卧12.02m²/次卧10.72m²/次卧8.01m²(含飘窗)。得房率79.6%(不含赠送),U型厨房,卫生间干湿分区。阳台5.44m²西南向。套内面积65.27m²+赠送10.31m²=实用面积75.58m²,总得房率92.17%。

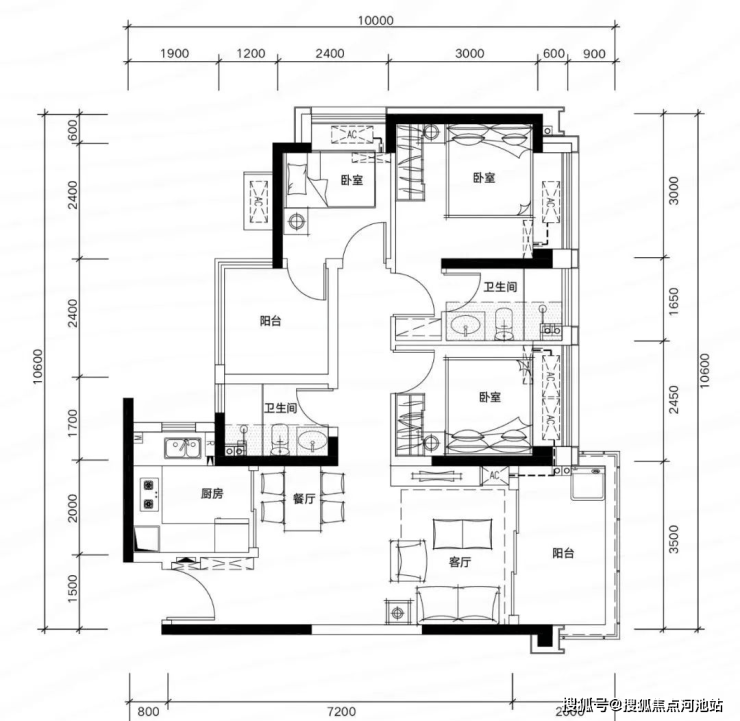
89m² 4室2厅2卫,1B栋01户型,南北通透,客厅3.5米宽,客餐厅分离,四房朝南。卧室面积:主卧12.63m²/次卧7.93m²/次卧7.32m²/次卧7.01m²(含飘窗)。得房率79.6%(不含赠送),U型厨房,卫生间干湿分离。阳台5.25m²东南向。套内面积70.85m²+赠送15.02m²=实用面积85.87m²,赠送后得房率96.48%。

89m² 4室2厅2卫,1B栋02户型,经典竖厅,客厅3.5米宽,LDKB一体设计。四室朝南,主卧12.33m²,次卧8.82m²、7.08m²、5.76m²(含飘窗)。得房率79.6%(不含赠送),U型厨房,干湿分离卫生间。阳台5.25m²东南向。套内面积70.85m²+赠送11.85m²=实用面积82.7m²,赠送后得房率92.92%。

89m²的4房2厅2卫,1B栋03/05户型,经典竖厅,客厅3.5米宽,LDKB一体设计,四开间朝南。卧室面积:主卧12.18m²、次卧9.05m²、7.65m²、6.37m²(含飘窗),得房率79.6%(不含赠送)。U型厨房,卫生间干湿分离,阳台4.9m²西南向花园。套内面积70.85m²+赠送12.45m²=实用面积83.3m²,赠送后得房率93.6%。

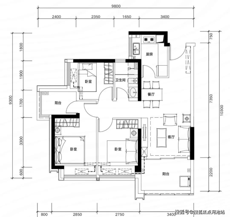
109m² 4室2厅2卫,1B栋06户型,竖厅南北通透。客厅3.85米宽,客餐厅分离,四房朝南,双阳台。卧室面积:主卧16.2m²、次卧11.2m²、次卧9.21m²、次卧7.52m²(含飘窗)。得房率79.6%(不含赠送),U型厨房,卫生间干湿分区。阳台6.16m²西南向,视野花园。套内面积86.77m²+赠送16.43m²=实用面积103.2m²,赠送后得房率94.67%。

109m²的4室2厅2卫,1G栋02户型,竖厅设计,客厅3.9米宽,LDKB一体化。四室朝南,主卧15.55m²/次卧11.96m²/次卧9.44m²/次卧7.7m²(含飘窗)。得房率79.6%(不含赠送),U型厨房,卫生间干湿分离。阳台6.43m²东南向花园。套内86.77m²+赠送14.41m²=实用101.18m²,赠送后得房率92.82%。

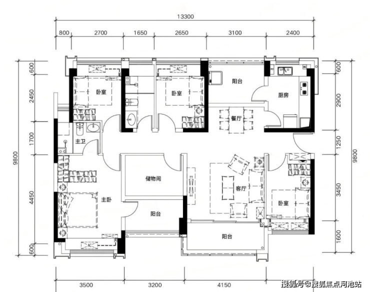
135m² 5室2厅2卫,1G栋01户型,南北通透,客厅4.2米宽,客餐厅独立,四房朝南,双阳台。卧室面积:主卧18.03m²/次卧11.55m²/次卧11.52m²/次卧9.26m²/次卧8.54m²(含飘窗)。得房率79.6%(不含赠送),U型厨房,卫生间干湿分区。阳台7.14m²东南向花园。套内107.5m²+赠送21.81m²=实用129.31m²,赠送后得房率95.78%。

135m²5房2厅2卫,1E栋03户型,南北通透,客厅4.15米开间,客餐厅分离,四朝南,双阳台。卧室面积:主卧17.67m²/次卧14.24m²/次卧9.92m²/次卧9.27m²/次卧8.26m²(含飘窗)。得房率79.6%(不含赠送),U型厨房,卫生间干湿分离。阳台6.64m²朝南看花园。套内107.5m²+赠送21.51m²=实用129.01m²,得房率95.56%(含赠送)。

周边学校

★根据2024年光明区教育局最新的学区划分,小学学区划分在教科院实验小学,秋硕小学,龙豪小学,光明实验学校,初中学区划分在深圳中学光明科学城学校二初中部,凤凰城实验学校初中部。

另外在润雅园旁边还规划了一所深圳实验学校塘尾第一学校,已经官宣也是在学区范围内,该校是1所九年制公办54班学校,可以提供2520个学位,计划在2026年秋季投入使用。

看完以上关于深圳光明松茂御城楼盘相关的图文介绍,如果您对我们楼盘感兴趣的话,建议您可以联系我们开发商售楼处全国免费400热线电话:400-880-7297(已认证)在线进行免费咨询或对接楼盘现场销售人员(中介请勿扰),我们可以为您安排本楼盘现场销售一对一在线服务,比如说把楼盘的最新图文资料、样板房视频、通过手机的方式发给您看一看、您不需要立即过来楼盘现场就能够对我们楼盘熟悉个大概,还可以告诉您关于我们光明区松茂御城楼盘对比周边楼盘的优点缺点、楼盘这几天最新的优惠政策、银行政策以及LPR利率、积分入学,等相关购房方面的问题都给你讲解的明明白白,让您买房不踩坑,毕竟买房是大事。找现场销售咨询并不需要额外花钱,反而更省钱,而且可以避免一些中介虚报价格浪费你宝贵的时间和精力,我们会把额外认购优惠、按时签约优惠、房贷优惠、一次性付款的优惠都告诉您,希望您能通过这个平台,全面了解我们的楼盘信息并顺利、开心的完成购房流程。

免责声明:以上展示的关于深圳光明松茂御城楼盘最新相关图文资料可能有部分来自于网络,一切信息以最终在在我们楼盘现场签署的购房合同为准,如图文内容可能无意中侵犯某方权益的话,请及时联系我们将配合处理。

声明:本文由入驻焦点开放平台的作者撰写,除焦点官方账号外,观点仅代表作者本人,不代表焦点立场。