一文读懂深圳南山后海招商玺优缺点!分析一下后海招商玺值得买吗?
扫描到手机,新闻随时看
扫一扫,用手机看文章
更加方便分享给朋友
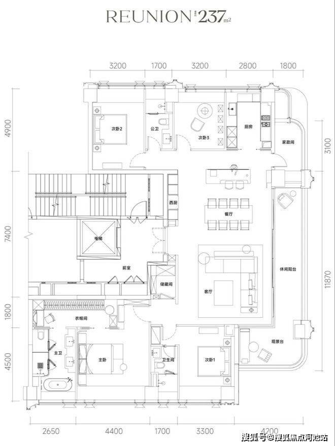
最新消息:招商玺系全新力作「后海招商玺」目前在深圳湾1号莱佛士酒店开放临时展厅,预计12月入市开盘!项目共规划 4 栋住宅 + 1 栋幼儿园,合计261套,首推 1 栋约 197-235㎡四房大平层住宅,起步就是改善终局户型,据说这次通过极致挖掘,确保赠送率、阳台率最大化,整体使用率达93%,装标升级到10000元/㎡。
如需了解更多详情,欢迎咨询后海招商玺售楼处电话400 880 7297,过来我们营销中心看房提前来电预约价格还能更优惠。
【后海招商玺开发商售楼处400免费咨询/预约电话:400-880-7297,官方】
温馨提示:过来营销中心参观样板间请记得提前拨打售楼处400热线预约,感谢您的配合!
后海招商玺位于南山区招商街道后海大道以西、工业七路以北。
用地面积为约3.3万㎡,开发建设用地面积约1.5万㎡平方米,建筑面积约9.88万㎡,容积率为6.5,其中住宅约8.8万㎡,商业2100㎡,公共配套设施约8205㎡。
小区共261套可售住宅,具体面积段为188-197-237-246㎡大平层。
项目介绍 | 基础信息
用地面积14969.93㎡,
计容建面98754㎡
住宅:88449㎡
商业、办公及旅馆:2100㎡
公共配套面积:8205㎡
住宅共有551户,
车位数量:700个
开发商电话:400 880 7297
主力户型为186-247㎡,主打T2/T3楼型
从规划3栋48层的超高层和1栋25层的高层住宅,
另配建一所幼儿园和一所九年一贯制学校。
今年首开1栋高层住宅,197-235㎡四房大平层,属于通透板楼设计,视野无遮挡。这次设计采用“浮岛甲板”设计策略,四栋住宅落于甲板之上,独享甲板庭院花园。进而形成超级社区底盘 + 浮岛绿化甲板的垂直共生人居标杆。
建筑风格:以“海风百褶”为设计理念,双反弧形的立面元素在各处形成丰富变化的海浪状立面肌理,呼应滨海风情。
温馨提示:感兴趣的朋友欢迎来电预约前往参观,享受一对一专属VIP看房服务,一定比中介和自媒体更便宜享受开发商内部额外最低优惠折扣和大额现金购房补贴。
本项目推广名为“后海招商玺",官方电话:400 880 7297 本资料为要约邀请,不作为要约或承诺。以上所发布的关于楼盘相关图文信息仅供您买房前参考,以上所有关于本楼盘的图文资料及说明请以最终以项目批文及双方在楼盘营销中心现场签署的买卖最终合同为准;
免责声明🔉:以上所发布的关于楼盘相关图文信息仅供您买房前参考,以上所有关于本楼盘的图文资料及说明请以最终以项目批文及双方在楼盘营销中心现场签署的买卖最终合同为准;本图文内容如无意中侵犯到某方权益,请联系我们将会及时处理。
声明:本文由入驻焦点开放平台的作者撰写,除焦点官方账号外,观点仅代表作者本人,不代表焦点立场。
