前海王炸盘《前海时代三期尊府》桂湾小户型最后的选择,最后一栋59栋10月入市!215-295平大平层

搜狐焦点河池站 2025-10-10 18:44:26
用手机看
扫描到手机,新闻随时看

扫一扫,用手机看文章
更加方便分享给朋友

最新消息:最后一批小户型「前海时代三期」将推出最后一栋小户型53-3栋约171套住宅,有低区89㎡3房2卫和高区190㎡4房3卫,关于交房时间,我们计划2026年底简装交楼。前海时代一期由5栋27层高住宅构成…

深圳【前海时代三期·尊府】

前海核心 海景小户型

最新消息:最后一批小户型「前海时代三期」将推出最后一栋小户型53-3栋约171套住宅,有低区89㎡3房2卫和高区190㎡4房3卫,关于交房时间,我们计划2026年底简装交楼。

2025年7月31日开始i深圳登记,89㎡户型冻资20万,190㎡户型冻资50万。8月1日公布入围名单,计划8月2日选房。

开盘折扣:按揭约89.4折,折后约10.16万/㎡,89㎡三房总价780-976万,190㎡四房总价2198-2243万。另外,一次性付款可以再多打个99折

如需了解本楼盘更多详情,欢迎来电咨询前海时代三期开发商售楼处免费400咨询/预约电话:400-880-7297(已认证)中介请勿扰,因近期参观的人员太多,本项目营销中心暂不接受临时到访,为不耽误您的行程,过来楼盘现场参观样板房请务必记得提前来电预约,预约看房的话最终房价还能更加优惠,最终价格包您满意!

这批房源预计将在2026年底简装交付。另外,三期尊府公区会全面升级,包括设计和用材用料。

— 项目简介 —

前海时代三期(尊府),位于前海桂湾片区南侧,与月亮湾大道及桂湾河相邻,可享桂湾河一线河景,向东南可眺望南山,往西南则可观赏城市海景。

项目坐拥着大前海豪宅区最核心的地段和享受优越的景观资源,一直是片区内王者般的存在,前几次项目开盘曾有着“两开两日光”的绝佳战绩!

前海时代一期由5栋27层高住宅构成,共806户,户型包括49-132㎡的1-3房,最早于2014年入市,当天开盘创下超两千人抢房的盛况;

二期由14栋11层小洋房组成,共550户,包括144-255㎡ 的平层复式4房-5房大户型产品,2017年开盘,开盘当天即售罄;

三期首批推出的是55-60栋,约270套,其中192㎡4房3卫有106套,209㎡4房4卫有82套,247㎡4房4卫有82套,备案均价9.9万/㎡,2023年12月开盘,开盘当天实现“日光”!

随后在24年3月加推53栋127套的89㎡-90㎡的3房,和194套的190㎡4房产品,目前基本已售罄。

今年4月18日取证、加推245㎡和285㎡共77套。3梯2户,专梯入户、楼王单位。价格对比上批大户型(10.3万/平)涨了1.2万/平左右!备案均价11.55万/平,总价约2440万起!

项目的市场热销情况足以证明深圳人对“大前海”地段、以及优质产品的追捧。下面首先看看项目本身的硬核“内在”品质。

前海时代占地面积约33.6万m²,规划总建筑面积约110万m²,容积率仅4.52,是前海规划在建的综合体中规模最大、最低容积率的项目。

整个大项目包括了商业、写字楼、公寓、酒店、住宅、运动娱乐、幼儿园和国际学校等多种业态。其中商业将会交由华润运营,连接万象前海商业。

前海时代总共分三期开发,本期为第三期产品。第三期地块共11栋住宅产品,3栋89-120㎡的中小户型,8栋2梯2户或3梯2户192-296㎡的大平层,没有配人才房和保障房,主要以纯大户型产品为主。

其中还未出售的还有52-2栋,约256套,180套小户型,60套120㎡三房,16套大户型。以及53-3栋,5-29层为三梯五户的89㎡三房户型,31-43层为三梯四户,其中3户为89㎡三房,1户为190㎡四房。这一栋景观绝佳,89的01以及29楼以下的0405户型以及190㎡高楼层是可以看到海景的。

另外还有7-2地块的59栋1-3单元约338套210-250-280㎡大平层,以及3月即将推售的58栋的250㎡和300㎡。

前海时代三期

1

项目基本情况

2

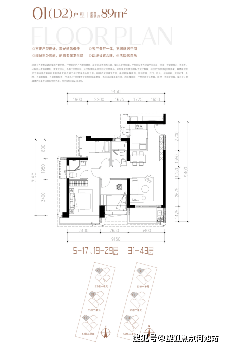
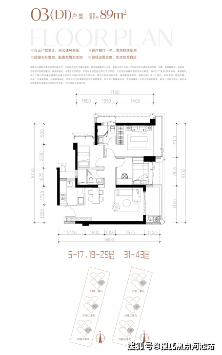
前海时代三期项目户型图

01

项目进度

53栋和59栋目前仍然还未封顶。(2025年4月拍摄

下面这张图大概就是样板间看公园的阳台景观:

02

项目户型介绍

本次推售户型资料

五月份推售户型资料

约89㎡3房2厅2卫,户型方正呈竖厅布置,结构上客餐厅一体、动静分区。设计上充分贯彻实用性,约89㎡做到少见的3房2卫,在前海这类改善片区的稀缺性很高。

约190㎡户型南北通透,户户带270°采光阳台。双套房+独立入户玄关设计搭配宽景大阳台及高使用率,居住舒适度拉满。

而7-2地块为纯大户型住宅,共八栋楼约608套,其中55-57栋和60栋已售罄。剩余房源在58栋以及59栋的1-3单元,包括约210㎡四房三卫C户型,约240-250㎡四房三卫B户型,还有更大的约280-292㎡4+1房四卫A户型。

3

交通/商业/公共配套

1、交通出行

桂湾坐拥西部最大的地下交通枢纽前海湾站,目前项目已经大致上出地面,两年内完工。

轨道方面,项目距离地铁站为1号线鲤鱼门站约720米,距离5号线、9号线前湾站约900米,1/5/11号三条地铁线交汇。

另外还有穗深(广东-东莞-深圳)城际以及未来的深港西部快线在此设站,未来还会接通深珠城际,可以直接刷深圳通不用抢票。

路网交通方面,也是四通八达的网状设计,接通深圳目前各大重要主干道,项目紧邻月亮湾大道、滨海隧道(滨海大道地下道路一期工程)梦海大道连接前湾、妈湾、宝安中心,出行便利。

2、商业配套

前海时代三期自带8万平㎡商业,已确定引入华润运营,预计作为“万象前海二期”的目标去打造,能全面满足日常生活所需。

周边商业氛围浓厚,已开设的有万象前海、卓悦INTOWN、山姆旗舰店等品牌商业,而即将开业的有前海壹方汇和前海K11,后续紧跟的还有交通枢纽的约19万㎡大型商业区。当桂湾商业连成片的时候,其城市配套规模和人气流量会更火爆。教育方面,桂湾暂时未有特别出色的学校,前海时代对口学校为九年制南山实验集团前海港湾学校,暂时表现平平。

3、教育配套

教育方面,桂湾暂时未有特别出色的学校,前海时代对口学校为九年制南山实验集团前海港湾学校,暂时表现平平。

项目2公里内一所九年制学校正在建设中(未确定引进的学校)。

此外,前海还有3所知名国际学校:荟同学校、英国国王学校深圳分校、深圳哈罗公学及深圳礼德国际学院。

桂湾规划片区内,规划主要的教育设施包括国际学校一所、九年一贯制学校三所、小学一所、幼儿园七所。

4、医疗/休闲配套

桂湾片区内有海边演艺公园(由华侨城操刀)、桂湾公园、双界河公园、月亮湾水廊道。目前桂湾公园已建成,海边公园即将二次升级,双界河和月亮湾水廊道暂时还是毛坯状态。

项目西侧预留有一块公园绿地,另外1.5公里范围内分布有双界河水廊公园、荷兰花卉小镇、前海演绎公园、中山公园等,日常休闲娱乐就近即可满足。

医疗配套方面是桂湾片区唯一的短板,不仅是现在缺,法定图则中也没有综合医院规划,这意味着,将来在桂湾如需就医只能依赖周边片区医疗配套辐射。不过,人家地理位置比较好,毗邻宝中片区。

5、周边价格对比

周边二手房只有前海时代一二期在售,前海时代一期87平2房最新成交价10.5-12.5万/㎡之间,二期4房大户型成交均价在12-16万左右。

89平的3房2卫的产品,一般核心地段90平只做3房1卫,这次做了3房两卫,空间利用率很好,户型显得弥足珍贵,按照上一期9.9万的开盘价,总价门槛可以低至7字头,可以说是前海最低的上车门槛,应该能吸引不少看好前海且预算稍微紧张点的南山买家。

4

片区发展

桂湾由前海演艺公园(规划中)、桂湾公园、双界河公园、月亮湾水廊道四大公共绿地环绕,形成整个区块的绿色边界,并通过连廊步道系统,将生态活力延伸至家门口。

效果图参考

目前桂湾公园已建成,南临尊府,可以推窗赏景;演艺公园(规划中)由华侨城操刀改造,将实现二次升级。

效果图参考

地理位置上,桂湾本身就在前海比较北部的位置,紧密挨着宝中、科技园等区域,开车可以快速通达,还有地铁可以直接触达。

区位定位上,前海三湾中,唯有桂湾定位为前海金融核心商业区。整个区域规划用地总面积为365.28万㎡,国际金融城用地为230㎡,占比约63%。

现阶段,我们看到已有很多总部企业入驻办公,商务氛围日渐成熟,金融业属于多金的行业,不可低估其能带来的经济价值。

发展阶段上,桂湾是目前前海最早开始规划和开发建设的区域,目前完成度明显高了许多,有着至少五年的领先优势,居住和配套成熟度上远超前海其他片区,还可以共享紧邻着的宝中齐全的配套。

5

小区高阶品质

前海时代·尊府Ⅱ的建筑设计由库博及A+E奥意建筑操刀,以香槟金搭配灰调塑造楼体质感立面,与周边建筑交相辉映,形成现代硬朗的城市天际界面。极致的窗墙比,让采光面与景观面尽可能最大化。

看完以上关于深圳前海时代三期楼盘相关的图文介绍,如果您对我们楼盘感兴趣的话,建议您可以联系我们开发商售楼处全国免费400热线电话:400-880-7297(已认证)在线进行免费咨询或对接楼盘现场销售人员(中介请勿扰),我们可以为您安排本楼盘现场销售一对一在线服务,比如说把楼盘的最新图文资料、样板房视频、通过手机的方式发给您看一看、您不需要立即过来楼盘现场就能够对我们楼盘熟悉个大概,还可以告诉您关于我们前海时代三期楼盘对比周边楼盘的优点缺点、楼盘这几天最新的优惠政策、银行政策以及LPR利率、积分入学,等相关购房方面的问题都给你讲解的明明白白,让您买房不踩坑,毕竟买房是大事。找现场销售咨询并不需要额外花钱,反而更省钱,而且可以避免一些中介虚报价格浪费你宝贵的时间和精力,我们会把额外认购优惠、按时签约优惠、房贷优惠、一次性付款的优惠都告诉您,希望您能通过这个平台,全面了解我们的楼盘信息并顺利、开心的完成购房流程。

免责声明:以上展示的关于前海时代三期楼盘最新相关图文资料可能有部分来自于网络,一切信息以最终在在我们楼盘现场签署的购房合同为准,如图文内容可能无意中侵犯某方权益的话,请及时联系我们将配合处理。

声明:本文由入驻焦点开放平台的作者撰写,除焦点官方账号外,观点仅代表作者本人,不代表焦点立场。