深铁珑境2期(深圳龙华)深铁珑境2期-项目简介|深铁珑境2期欢迎您-楼盘详情
扫描到手机,新闻随时看
扫一扫,用手机看文章
更加方便分享给朋友
最新消息:『深铁珑境花园二期』位于龙华龙胜板块,4号线龙胜站地铁口的突然低调取证加推了。
如需了解更多详情,欢迎咨询深铁珑境二期售楼处电话400 811 3080,过来我们营销中心看房提前来电预约价格还能更优惠。
【深铁珑境二期开发商售楼处400免费咨询/预约电话:400-811-3080,官方认证】
温馨提示:过来营销中心参观样板间请记得提前拨打售楼处400热线预约,感谢您的配合!

『深铁珑境』项目总分分三期报建开发,一期(小高层、叠墅)2022年9月19日就已经取证入市了,目前只有几套尾盘待售;本次取证是的二期产品,批售的6栋是二期首批取证房源,总共有313套,涵盖约85-102-111㎡三至四房。
关于开发商
『深铁珑境花园』由深圳国资委旗下全资控股公司-深圳地铁集团独资开发。
深铁集团成立于1988年,起初只负责深圳城市轨道建设及运营,后来依托轨道交通搞TOD发展模式,开始涉足房地产领域,现在已经成长为一家多元化发展大型企业集团,其中房地产开发业务在深圳有很多的代表性项目,其经济实力和建造、物业运营经验,及对深圳的贡献毋庸置疑。
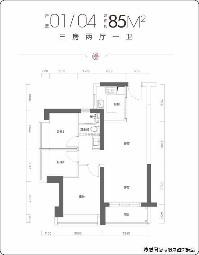
本次取证销售的是『深铁珑境花园二期』6栋313套约85-102-111㎡三至四房超高层产品。6栋总高55层,3梯6户,标准层高3米。
约85㎡ 竖厅动静分区 三房两厅一卫
●约102㎡竖厅动静分区三房两厅两卫
●约111㎡ 横厅隐式过道 四房两厅两卫
交通配套:项目距离4号线龙胜站步行约250米,距离6号线上芬站步行约900米,距离在建深大城际龙胜站步行约400米,在龙胜站乘坐3站可达深北站,通勤福田、罗湖、南山、机场都方便。
首先,项目外立面采用了美学铝板,再配上系统门窗和双层LOW-E玻璃,不光颜值在线,品质感高出不少,在同片区就甩开那些真石漆外立面的项目,背后的成本肉眼可见。楼下的车水马龙、邻里喧闹都能隔绝在外,夏天隔热冬天保温,家里时时刻刻都是舒服的温度。
温馨提示:感兴趣的朋友欢迎来电预约前往参观,享受一对一专属VIP看房服务,一定比中介和自媒体更便宜享受开发商内部额外最低优惠折扣和大额现金购房补贴。
本项目推广名为“深铁珑境二期",官方电话:400 811 3080 本资料为要约邀请,不作为要约或承诺。以上所发布的关于楼盘相关图文信息仅供您买房前参考,以上所有关于本楼盘的图文资料及说明请以最终以项目批文及双方在楼盘营销中心现场签署的买卖最终合同为准;
免责声明🔉:
以上所发布的关于楼盘相关图文信息仅供您买房前参考,以上所有关于本楼盘的图文资料及说明请以最终以项目批文及双方在楼盘营销中心现场签署的买卖最终合同为准;本图文内容如无意中侵犯到某方权益,请联系我们将会及时处理。
声明:本文由入驻焦点开放平台的作者撰写,除焦点官方账号外,观点仅代表作者本人,不代表焦点立场。
