深圳南山旧改项目绿景白石洲,高阶峰层资产代言深圳价值高度,未来深圳智慧社区典范
扫描到手机,新闻随时看
扫一扫,用手机看文章
更加方便分享给朋友
深圳南山【绿景白石洲·璟庭】
最新消息:位于南山白石洲一期旧改项目——绿景·白石洲璟庭项目已于2023年7月22日对外开放展厅跟样板房,2023年9月16日已经正式开盘入市,看房需要验资且来电进行在线预约才可参观! 更多详情欢迎咨询深圳南山绿景白石洲璟庭开发商售楼处电话:400-811-3080,中介请勿扰,过来看房记得提前来电预约,感谢配合。
本次我们绿景白石洲楼盘开盘将会推出住宅约1250套,住宅主力户型面积110、127、180㎡,预计2025年底交楼!目前主体施工已达1/3,更多详情请咨询上面我们楼盘开发商售楼处电话4008113080进行详细了解,中介请勿扰。
01
项目基础情况

白石洲旧改,也就是“南山区沙河街道沙河五村城市更新单元”。项目位于南山区沙河街道,沙河东路以东,深南大道以北,香山西街以南,含新塘村、上白石村、下白石村、塘头村及周边区域。

据规划显示绿景白石洲璟庭更新单元用地面积约48.01万㎡,拆除用地面积约45.95万㎡,开发建面约30.38万㎡,改造后计容积率总建面高达347.96万㎡;
其中住宅125万㎡,商业、办公及旅馆业104.5万㎡,商务公寓112万㎡,公共配套设施6.5万㎡,容积率约10.3。
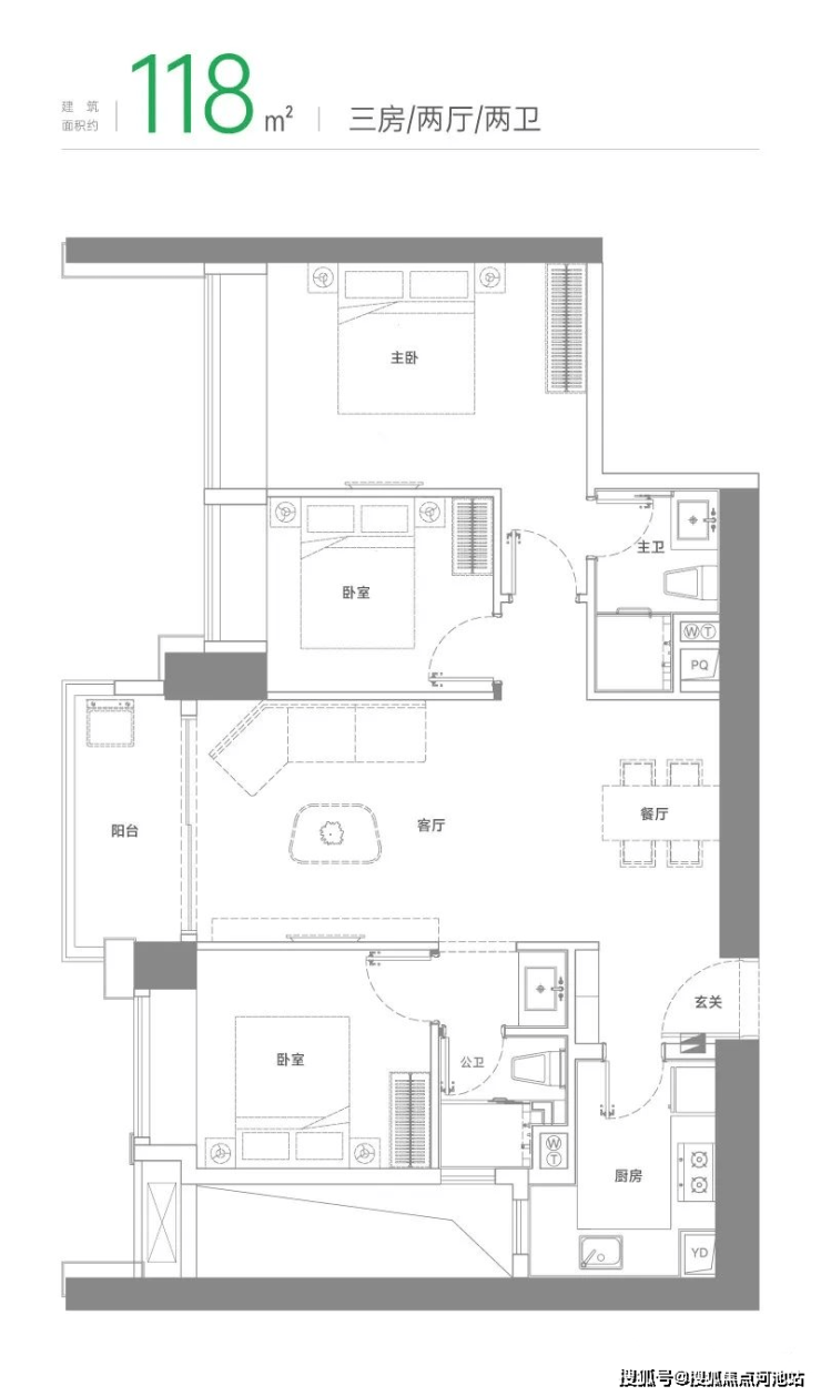
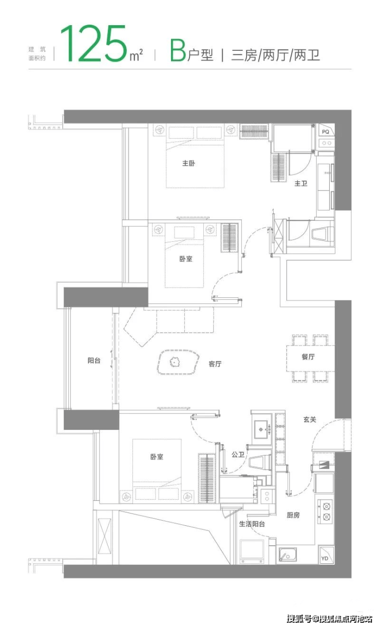
项目共由31栋49-65层住宅,21栋公寓,3栋66-79层超高层写字楼,1栋59层办公楼组成,容积率为10.3。其中一期的名称为“绿景白石洲璟庭”,推1250套住宅,自带10万㎡商业,主力户型为110㎡-125㎡。
目前华侨城内部未来几乎没有新盘供应,二手房基本都是大户型为主,所以一期产品110-187这个面积段是较为稀缺的,也是目前入住华侨城较低门槛。

绿景白石洲璟庭项目位置优越,位于深圳南山区核心地段,周边环绕着深圳湾超级总部基地、后海总部基地等核心区域。项目作为百万方大盘,集商业、办公、酒店、文旅、居住于一体,自身配套都非常齐全。
周边环绕着深圳湾超级总部基地、后海总部基地、蛇口前海自贸区 等核心区域,吸纳各方投资总额 超8400亿元,吸纳高精尖人才 超75万人,世界500强,中国200强总部企业云集。

目前属于片区内的标杆性大型综合体项目,有望成为第二个华润城,也是目前南山福田等核心区域唯一的在建的一个超级大型综合体旧改项目。周边汇集欢乐谷、沙河高尔夫、世界之窗、华侨城国家湿地公园等知名地标。

项目目前占地最大的一期绿景白石洲璟庭,观景上被深业世纪山谷挡,会有部分户型的观景受限。目前项目的建设周期长达8-10年,基本上交房后的至少5年内会有受噪音和扬尘问题。
02
绿景白石洲璟庭项目配套


交通配套:
项目靠近地铁1号线白石洲站,步行约1公里距离,未来周边还将会有20号线、29号线,无缝覆盖项目片区;自驾出行也很方便,连接深南大道、北环大道、沙河东路等城市干道,通达深圳各处。
学校配套:
项目规划了四所幼儿园共57班、三所九年一贯制学校共90班,预计将归属于南山外国语集团,具体以为当地教育局为准;根据南山区教育局官网公布学区地图显示,区域对口学校是沙河小学、初中对口学校是南山第二实验学校初中部,两所对口学校均在1.5公里范围内。
商业配套:

自身配建接近40万平的商业规模,可以说是非常庞大,周边还有万象天地、益田假日广场、欢乐海岸、深圳湾万象城等超大型商圈。
生态:
项目靠近OCT生态广场、天鹅湖、燕栖湖、华侨城雕塑走廊、华侨城喷泉走廊、华侨城湿地、燕晗山、湿地公园、大沙河公园、滨海长廊等市政配套。

周边价格:
周边商品房不多,最近的应该是深业鹤塘岭,备案均价11万元/㎡,产品面积88-165㎡的2-4房,明显是有点贵了,周边二手房挂牌价大多在10万以内。
03
绿景白石洲璟庭户型图欣赏


1

3

5

2

4

6

绿景白石洲璟庭项目优点:
1、南山核心地段,靠近科技园、华侨城、深圳湾和后海,周边产业环绕,有大量外溢居住需求;
2、超百万方的航母级大盘,以后自身配套很完善,周边的文娱配套也很丰富;
3、部分楼栋会有高尔夫景观或者湖景,城市稀缺的自然生态资源;
4、绿景是深圳本土的知名开发商,有旧改造成能力,实力可以相信;
5、很可能会复刻华润城的奇迹,有产业和规划概念,当前具有居住价值。
如果看完关于我们深圳绿景白石洲璟庭楼盘详情介绍后,如果您还对深圳南山绿景白石洲璟庭房价,房价,售楼处地址,备案价,户型图,剩余房源,规划图,营销中心位置,周边配套,楼盘优缺点,开发商售楼处电话,开盘多少钱一平,交通怎么样,楼盘最新消息以及近期折扣优惠、特价房,售楼部最新销售详情,工程进度情况,学校学区划分等具体详情需要了解的话,欢迎咨询我们开发商营销中心电话进行沟通。
【深圳绿景白石洲·璟庭开发商售楼处咨询/预约电话☎️ 400-811-3080(中介勿扰)】
✅ 本项目暂不接受临时到访,过来参观样板房请记得提前来电预约!另外过来营销中心现场需要验资!感谢配合!
✅ 为您安排楼盘现场销售全程接待并讲解,给您更贴心的看房体验!
温馨提醒:我们楼盘售楼部400电话没有设置任何所谓的“分机号”,拨打前请仔细甄别,注意保护个人隐私!谨防上当!
免责声明🔉:
以上所发布的关于深圳南山绿景白石洲璟庭楼盘相关介绍详情仅供您购房前参考,以上所有关于本楼盘的图文资料及说明请以最终项目批文及双方在楼盘营销中心现场签署的买卖最终合同为准;本图文内容如无意中侵犯到某方权益,请联系我们将会及时处理。
声明:本文由入驻焦点开放平台的作者撰写,除焦点官方账号外,观点仅代表作者本人,不代表焦点立场。
