丹华公馆售楼处(丹华公馆)首页网站-营销中心欢迎您-楼盘详情·最新价格-户型图-容积率
扫描到手机,新闻随时看
扫一扫,用手机看文章
更加方便分享给朋友
最新消息:深圳南山西丽新楼盘——丹华公馆,已经正式交房,即买即入住,即办证!首付约59万起,买深圳中学南山创新学校精装现房3-4房,建面约58-101㎡都市臻品!
如需了解本楼盘更多详情,欢迎来电咨询深圳丹华公馆开发商售楼处免费400咨询/预约电话:400-880-7297(已认证)中介请勿扰,因近期参观的人员太多,本项目营销中心暂不接受临时到访,为不耽误您的行程,过来楼盘现场参观样板房请务必记得提前来电预约,预约看房的话最终房价还能更加优惠,包您满意!
房价说明:
58㎡一房三房四房390~430万
101㎡ 三房两卫 690~760万
南山西丽·深中学府·大社区70年住宅,约58-101㎡西丽高铁+四轨交汇+留仙洞总部基地家门口就是“西丽公园”,从此生活慢一点。紧邻“深中南山创新学校”,目送式教育!
丹华公馆实景图
项目基础信息
【总占地】约4万㎡
【总建面】约31.9万㎡
【绿化率】30%
【产权年限】70年(2017-2087)
【物业类型】住宅
【本次推售】约690户
【产品面积】约58-101㎡3房
【层高】58㎡层高3.9米,101㎡层高2.95米
【开发商电话】400 880 7297(已认证)
【高楼层】58平36层、101平45层
【使用率】约80%
【梯户比】四梯七户、四梯十二户
【单价】约6.6万起
【总价区间】380-750万
【交楼标准】精装
【交楼时间】2025年5月
【车位数】2000个
【物业费】5.9元
【发展商】深圳市桑泰房地产开发有限公司
【物业公司】深圳市厚德物业服务有限公司
项目地址:南山西丽·留仙洞总部基地旁边(中兴宿舍南侧)
✨丹华公馆 | 项目十大价值点分析✨
【中芯聚能】深圳高质量发展的黄金水道
✨大沙河生态长廊以深圳湾为端口的中轴线,南端为深圳湾,北端为西丽湖,构建起城市发展的“黄金水道”。这条“深圳版的塞纳河”,串联起了西丽湖国际科教城、留仙洞总部基地、科技园、深圳湾超级总部基地、后海总部基地,产学研于一体,汇聚了深圳最顶级的“产业和智慧人才”。
【留仙洞总部基地】万亿级区位价值,赋予项目等高价值
✨留仙洞总部基地约683万㎡,汇聚1500家高新企业,60万高端人才!以新一代信息技术、人工智能、精准医疗、物联网、高端设备等战略性新兴产业为主;聚集大疆创新、乐普医疗、酷派、光峰光电、传音控股等世界 500 强总部,未来将形成超3000亿元产业集群。
【科创智核】影响世界的最高人才密度科创智核
✨西丽湖国际科教城定位世界一流大学城,总占地约69.8k㎡,引入清华、北大、哈工大、南科大、深大等7所高等院校,19处高效合作院区,省级鹏城实验室,7所诺贝尔奖科学家实验室,350家科创机构创新载体,集合全市约70%科教机构创新载体,约68%院士级人,两院院士78人,全职院士28人,被誉为粤港澳大湾区创新“智核”。
【世界级枢纽】现代级轨道交通,快速畅达世界各地
✨西丽高铁站集国家铁路、城际轨道、城市轨道为一体,划线路13台25线,建成后将成为国内最大的轨道交通换乘站。
【南山科技创新中心】城市产业孵化器
城市产业高地,打造“全生命周期“众创平台,聚集创新性企业、未来产业和高层次人才。
【交通便捷】紧邻西丽高铁站 通勤无忧
4高铁+2城际+6地铁 出行效率大大提升。
目前距离5号线留仙洞站1.7公里(步行25分钟),另、13号石鼓站约800米(2024年年底开通)、有着“前海一环”之称的15号线打石山站约200米(预计2028年开通)。
【无忧配套】4公里内 满足日常生活所需
可步行至,云城万科里商业、创智云城商业。近悦方广场商业、西丽天虹商场、西丽366大街、益田假日里等大型商业。
【全龄覆盖】优质教育环伺 坐享全龄教育
十二年“目送式”教育,项目自带18班幼儿园,一路之隔就是九年一贯制深中南山创新学校(本小区第一批业主已成功申请到学位,且享受片区最高的积分),周边还有南山文理实验学校等优质的教育资源。
(南山教育官网可查询)
精工匠心打造品质人居范本
豪宅标准打造
香槟金铝板+玻璃幕墙外立面,恒久如新
归家礼序,独创三进制合院,享受回家路途
2.5万平超大园林
前瞻设计,生态光苑与泳池联通互动
600米风雨连廊,衔接大堂主入口
社区型全龄段乐园 ,重新定义社区生活方式
【品牌加持】桑泰集团 进化美好人居
桑泰集团深耕南山,秉承“诚信谦恭、开拓务实”的经营理念,推动城市发展,创造美好人居,截至目前已开发超200万㎡面积。
西丽生态公园(实拍)
家门口就是22万㎡的生态公园
绿色、纯氧、美丽
可悠闲的散步、溜娃、登山、运动...
【实景图】
【101平3房样板房实拍】
【丹华公馆户型鉴赏】
58平3房 整层平面图
(层高3.9米,做成上下两层)
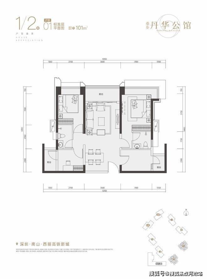
101平3房 户型图
看完以上关于深圳南山丹华公馆楼盘相关的图文介绍,如果您对我们楼盘感兴趣的话,建议您可以联系我们丹华公馆开发商售楼处全国免费400热线电话:400-880-7297(已认证)在线进行免费咨询或对接楼盘现场销售人员(中介请勿扰),我们可以为您安排本楼盘现场销售一对一在线服务,比如说把楼盘的最新图文资料、样板房视频、通过手机的方式发给您看一看、您不需要立即过来楼盘现场就能够对我们楼盘熟悉个大概,还可以告诉您关于我们丹华公馆楼盘对比周边楼盘的优点缺点、楼盘这几天最新的优惠政策、银行政策以及LPR利率、积分入学,等相关购房方面的问题都给你讲解的明明白白,让您买房不踩坑,毕竟买房是大事。找现场销售咨询并不需要额外花钱,反而更省钱,而且可以避免一些中介虚报价格浪费你宝贵的时间和精力,我们会把额外认购优惠、按时签约优惠、房贷优惠、一次性付款的优惠都告诉您,希望您能通过这个平台,全面了解我们的楼盘信息并顺利、开心的完成购房流程。
免责声明:以上展示的关于南山丹华公馆楼盘最新相关图文资料可能有部分来自于网络,一切信息以最终在在我们楼盘现场签署的购房合同为准,如图文内容可能无意中侵犯某方权益的话,请及时联系我们将配合处理。
声明:本文由入驻焦点开放平台的作者撰写,除焦点官方账号外,观点仅代表作者本人,不代表焦点立场。
