深圳坪山【信达泰禾•金尊府】单价2.9万起,买坪山中心94-143平3-4房
扫描到手机,新闻随时看
扫一扫,用手机看文章
更加方便分享给朋友
最新消息:
信达金尊府,特惠来袭,单价2.9万+起,坪山中心精装现房
主力户型
115平 4房2卫 340万起
94平 3房2卫 330万起
143平 4房2卫 450万起
如需了解本楼盘更多详情,欢迎来电咨询深圳坪山信达金尊府楼盘开发商售楼处免费400咨询/预约电话:400-800-9113(已认证)中介请勿扰,因近期参观的人员太多,本项目营销中心暂不接受临时到访,为不耽误您的行程,过来楼盘现场参观样板房请务必记得提前来电预约,预约看房的话最终房价还能更加优惠,最终价格包您满意!
下面是我们营销中心实拍照片:
信达金尊府究竟值不值得买




整个园林将继承泰禾新中式造园精髓,金尊府是深圳首个真正以中国皇家园林为样本打造的中式园林.以小见大,通过高山流水、山石错落、花木掩映、曲径通幽等造园手法,打造了一个集观赏、游玩、居住功能为一体的人间仙境,填补深圳中式大美园林空白。
同时金尊府对标国际亚洲豪宅“院子系”,引进泰禾5A“金钥匙”贴身管家服务,为业主缔造服务一生、极富意蕴的精神居所。

项目基础信息:
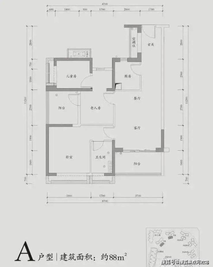
🔺在售面积:约88-143㎡三至四房
🔺开 发 商:深圳信润房地产开发有限公司
🔺物业公司:深圳市万科物业服务有限公司
🔺物 业 费:3.9元/平米/月
🔺产权年限:70年
🔺总 楼 层:30-32层
🔺总 栋 数:5栋
🔺总 户 数:950户
🔺梯 户 比:2梯4户
🔺开发商电话:4008009113
🔺绿 化 率:40%
🔺占地面积:约3.7万㎡
🔺建筑面积:约23.6万㎡
🔺车 位 数:1800个
🔺车 位 比:1:1.18
🔺交房时间:现房

【东部枢纽,畅享湾区高效速率】
·快速地铁:14号线牛角龙(距离项目约600m,预计年底通车),12站可快速直达福田中心,接驳全城。
·轨道枢纽:城际高铁、深大城际(建设中),约40分钟可速达宝安机场,脉连都会繁华。
·迅捷通道:坪盐通道(已通车)约10分钟可达盐田,约20分钟可达罗湖,约30分钟可达福田。
【奢繁配套,世界前沿人文著地】
国际都会主场:拥享约42万㎡奢繁商圈,益田假日世界、华侨城广场、坪山天虹购物中心,精彩生活一站畅享。
书香浸润成长:自带9班制双语幼儿园,中山中小学皆一路之隔;临近坪山高级中学、坪山国际大学城、约28万㎡坪山高中园(在建中),序笔孩子不凡未来。
【国风现楼,匠筑城市人居臻品】 国风高宅府居:弘扬中华文化,营造千崇威仪,为城市塔尖定制“居于府,憩于园”的现代府居生活,从择从择址、建制、营园、造境、居品,皆传承国风家脉。
荟萃名园菁华:约1.8万㎡私家园林采取“一苑八府”府第式布局,匠承600年园林营造技艺,提炼南北名园精粹,营造十三重胜景。
金尊府户型图鉴赏:
项目亮点
1️⃣ 地段潜力股:坪山中心区双核辐射,坐享东进战略红利,地铁14号线锦龙站约600米(步行10分钟),30分钟直达福田;
2️⃣教育全家桶:自带双语幼儿园,中山中小学一街之隔,坪山高级中学+国际大学城加持,12年教育不愁;
3️⃣ 中式园林天花板:深圳首个皇家园林风社区,1.8万㎡山水园林+新中式建筑,仪式感拉满(故宫同款大门+真石漆外立面);
4️⃣现房即买即住!对比期房烂尾风险,央企信达开发+万科物业,安全感+1。

看完以上图文介绍,您如果想要了解更多关于我们深圳坪山信达金尊府楼盘最新消息、当前剩余房源、这几天楼盘现场折扣优惠活动、近期周边房价走势、银行相关利率政策等情况的话,欢迎来电咨询信达金尊府开发商售楼处免费400咨询/预约热线电话:400-800-9113(已认证)中介勿扰。
温馨提示:因本项目营销中心参观样板间采取预约制,为不耽误您的行程,过来营销中心现场看房前请务必记得提前来电预约,预约看房的话享受的优惠折扣比直接上门更多,最终成交价格也会更加划算,在此真诚感谢您对我们工作的支持和信赖,恭候您大驾光临。
免责声明:以上展示的关于深圳坪山金尊府楼盘最新相关的最新图文资料可能部分来自网络,具体细节以最终签署的购房合同为准,如无意存在侵犯某方权益请及时联系我们处理。
声明:本文由入驻焦点开放平台的作者撰写,除焦点官方账号外,观点仅代表作者本人,不代表焦点立场。
