绿景白石洲璟庭(绿景白石洲璟庭)首页网站|绿景白石洲璟庭楼盘详情_房价_户型_详情
扫描到手机,新闻随时看
扫一扫,用手机看文章
更加方便分享给朋友
南山-绿景白石洲璟庭
最新动态:约110-187㎡云端新品,高区样板房已开放。
项目信息:占地约3万,总建面约45万,容积率10.9,住宅1-3栋430套、1-4栋441套、1-5栋386套,共1257套。3栋住宅均为74层。在售110-118-125㎡3房、187㎡4房以及280-400㎡的顶复产品,离1号线白石洲站约800米左右。
绿景白石洲璟庭售楼处电话:400 811 3080【已认证】
温馨提示:因本楼盘现场参观样板间采用预约制,过来之前请记得拨打售楼处电话:400 811 3080进行预约,谢谢配合!
为给您更好的看房体验请提前来电预约(给您预留现场销售和停车位)
户型鉴赏
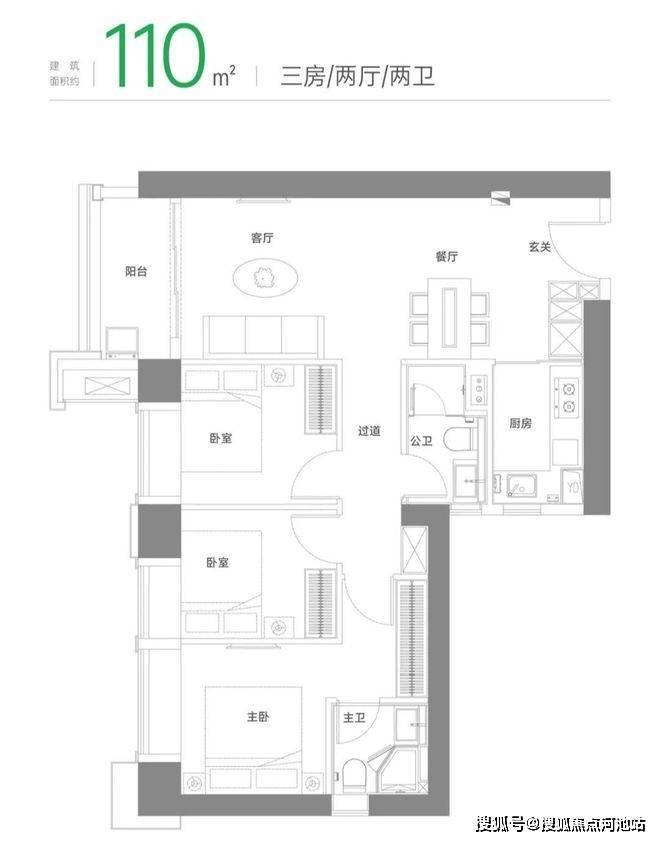
建面约110m²三房两厅两卫
瞰景三房,卧室标配飘窗,观景阳台展开风景画卷
|餐客一体化,连通阳台,畅享全家欢聚时刻
|动静分区舒适化营造,休慎与家庭活动互不干扰
|主卧私享化,独立卫浴、衣帽间,自在天地一隅
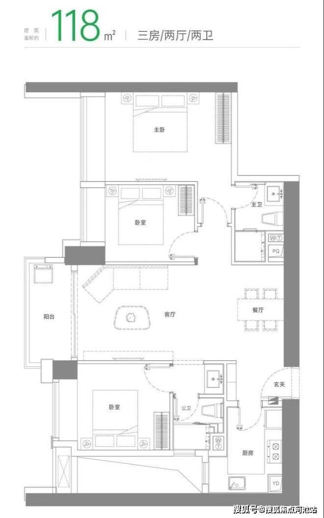
建面约118㎡三房两厅两卫
横向四开间设计,南向约13.4m奢华采光面,和光同悦南向观景C位,客厅、卧室随心眺望窗外城市风景
奢享主卧,生活阳台、衣帽间、私人卫浴,独享非凡领地
餐客一体贯通阳台,打造舒适、宽敞的家庭欢聚天地本户型所在位置示意
A户型建面约125㎡三房两厅两卫
瞰景三房,飘窗、阳台拉开居住视野,主卧私享功能产备LDK一体化设计,打造无边界、社交化的餐客厨系统
I动静分区舒适化营造,休慎与家庭活动互不干扰
双阳台设计,厨房连通生活阳台,延展更多空间,随心收纳
B户型建面约125㎡三房两厅两卫
|横向四开间设计,南向约14.1m奢华采光面,和光同悦
|南向观景C位,客厅、卧室随处纵览非凡城市景观
|奢享主卧,步入式衣帽间,私人卫浴,独享自我领地
|双阳台设计,厨房连通生活阳台,延展更多空间,随心收纳
C户型建面约125m²三房两厅两卫
卧室标配飘窗,引入丰沛阳光,全家尽情舒展餐客一体贯通阳台,打造舒适、宽敞的欢聚天地奢享主卧,独享衣帽间、私人卫浴,自我非凡领地
双阳台设计,厨房连通生活阳台,延展更多空间,随心收纳本
建面约187m²四房两厅两卫
交通配套
轨道交通——四线二站两枢纽,地铁1号线、2号线、20号线(建设中) 、29号线石洲北站(建设中),无缝覆盖更新片区。道路交通——项目自身三纵三横路网,对外连接深南大道、北环大道、沙河东路等城市干道。全球交通——快速畅达西丽高铁站(规划中)、福田高铁站、深圳北站、太子湾邮轮母港、宝安国际机场等,多枢纽立体交通,海陆空无界链接。
大城首发启幕时代开端绿景白石洲.璟庭总建面约46万m²户型约110-187m²住宅作为总建面约500万m2城市航母的首发作品,居住氛围浓厚纯粹,地铁无缝接驳,精奢商业、优质学府、社区公共配套、中央绿轴花园等完善生活配套同步开启白石洲未来生活
绿景白石洲璟庭开发商售楼处电话 400-811-3080(中介勿扰)
过来售楼中心看房请提前预约,可尊享内部特惠,价格包您满意!
为您安排楼盘内场专业销售人员一对一接待服务!让你买的放心,住的舒心!
免责声明🔉:
以上所发布的关于楼盘相关图文信息仅供您买房前参考,以上所有关于本楼盘的图文资料及说明请以最终以项目批文及双方在楼盘营销中心现场签署的买卖最终合同为准;本图文内容如无意中侵犯到某方权益,请联系我们将会及时处理。
声明:本文由入驻焦点开放平台的作者撰写,除焦点官方账号外,观点仅代表作者本人,不代表焦点立场。
