【金地峰境誉府】高品质精装现房!单价3.5万、总价290万起,买83-130平3-4房
扫描到手机,新闻随时看
扫一扫,用手机看文章
更加方便分享给朋友
基础资料
【发展商】深圳市五二九七投资发展有限公司
【项目地址】光明中心区翠湖公园东南侧,与光明小镇一路之隔
【用地面积】约15077.79㎡
【总建筑面积】约54374.31㎡
【容积率】≤3.5
【用地性质】住宅+商业用地
【推售产品】83-120㎡住宅
【绿化率】:35%
【梯户比】:2梯4户 30-32层层
【总户数】:500
【物业公司】:金地物业
【主推产品】:83-120㎡
【价格距间】:4.2-5.4万
【产权年限】:70年 19-89年
【物业类型】:住宅
【交付标准】:精装交付
【交房时间】:2025年12月31日交房
【层高】3米
【车位】1:1.2
【产权】70年
【学区学位】华南师范附属光明星河,光明小学,东周小学,光明中学。
【光明金地峰誉府开发商售楼处咨询/预约电话📞: 400-811-3080,中介勿扰】
温馨提示:本楼盘采取预约制,过来营销中心现场参观样板间请记得提前拨打开发商售楼处400热线电话在线预约,感谢您的配合!
在售房源:
83㎡3房355-400万
97-98㎡430-500万
120㎡4房590-650万
联系售楼处在线来电预约看房价格还可以更优惠!
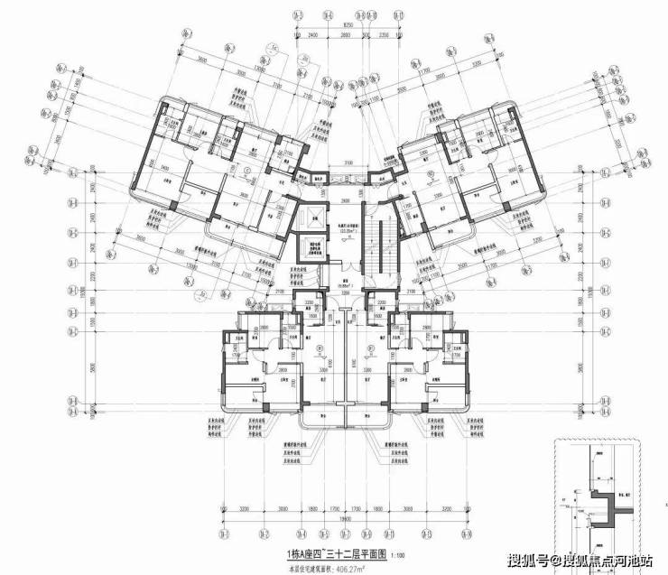
02
规划总平面图•
户型图如下:

交楼标准说明:
03
区域•地段
【潜力区域】光明CBD是光明乃至深圳最具成长价值的区域之一
光明定位高,现处价值跃升期,值得买入
项目位于光明未来核心居住区、规划CBD、生态区“三芯”交汇处
光明CBD是光明未来城市封面,是光明最具潜力的价值区域
03
交通配套
【多维交通】紧临光明小镇站,规划地铁8站可进南山
距6号线支线光明小镇站(在建)约500 米
2站换乘地铁13号线(在建)、18号线(规划)、29号线(规划)
高铁10分钟直达深圳北、2站直达福田CBD、3站达香港西九龙
05
休闲•生态
【公园环绕】五大公园环绕,人均公园绿地面积光明第一
一路之隔“后花园”光明小镇
约2KM五大公园环绕:翠湖公园+光明小镇+科学公园+新城公园+虹桥公园
人均公园绿地面积光明第一:约2KM范围人均公园绿地约54.18㎡,远超光明区人均约21.76㎡

06
商业•配套
10分钟生活圈:约2KM坐享商业、医院、文化等全系配套
商业:光明蓝鲸世界、万达广场、星河COCOCITY(在建)

07
学校 医疗
全区名校林立:深圳实验光明校区等片区名校积分入学
小学:华南师范大学附属光明星河小学、光明小学、东周小学、修远小学、深圳小学曙光学校(在建中)、中山大学深圳附属学校、南科大附属光明凤凰学校

初中:光明中学、华夏中学、南方科技大学附属凤凰学校、深圳实验学校光明分校、光明区高级中学、中山大学深圳附属学校
近享丰沛教育:1公里内规划4所九年制学校/9所幼儿园
医院:中山大学附属第七医院、中国科学院深圳医院东院区、光明区妇幼保健医院、深圳市中医院光明院区、中国科学院深圳医院西院区
08
小区•品质
【低密舒居】3.5低容积率+舒适纯居社区

3.5低容积率
主力2梯4户低梯户比

规划1:1.2 超高车位比
无配建安居/回迁房人群纯粹
【高配社区】高端配置精致生活
光明“外立面颜值天花板”:外立面使用涂料、石材、玻璃、铝板、金属线条等高端建筑材料,是光明外立面率先使用”弧形元素设计“景观阳台的住宅项目之一
光明稀缺“空中泳池” :少有配备【无边际泳池】的住宅
“峰境五重”归家礼序:让归家更有仪式感的同时增添一丝回家的温暖




【高配精装】光明精装配置天花板
中央空调+新风系统、儿童房书柜及榻榻米、主卧衣柜、厨房整体定制橱柜、电视背景墙、阳台电动晾衣架、燃气灶/油烟机/洗碗机、净水器、垃圾处理器、厨房凉霸、浴霸、热水器、主卧智能马桶,品牌卫浴等

【品牌服务】金地物业品质保障
金地·峰境誉府选用“金地智慧服务”物业管理,围绕社区八大安全痛点,做到社区健康防卫/社区智能安防/社区智慧服务系统多位一体,让业主从容体验家的温暖

【交付保障】行业优等生,交付有保障
金地品牌:布局全国近80座城市,累计近百万业主
精工品质:科学筑家的匠心理念,施工品质行业名列前茅
三线四档:连续6年保持绿档,安心保交付

以上就是关于深圳光明金地峰境誉府这篇文章的详细介绍说明,看完以上介绍内容,如果您对我们楼盘还有任何疑问,欢迎联系金地峰境誉府开发商售楼处电话:400-811-3080(中介请勿扰)进行咨询,或者安排本楼盘现场销售在线为您一对一服务,现场销售人员会把楼盘的新资料、样板间图片视频、都发微信给您看、您不需要过来楼盘现场都能够熟悉个大概,还可以了解到本楼盘的优点缺点、房产政策、银行贷款政策、积分入学、都给您讲解的明明白白。
现场销售还可以为您对我们楼盘进行全面更详细的介绍,包含项目开盘详情、近期房价、楼层高低、户型朝向分析、最新折扣优惠活动等情况,而且还可以避免中介虚报价格,耽误您的时间和精力,中介所给的优惠我们全都可以给,让您买的放心,住的舒心!买房是大事,记得及时联系我们。
免责声明🔉:
以上所发布的关于深圳光明区金地峰境誉府楼盘相关介绍详情仅供您购房前参考,以上所有关于本楼盘的图文资料及说明请以最终项目批文及双方在楼盘营销中心现场签署的买卖最终合同为准;本图文内容如无意中侵犯到某方权益,请联系我们将会及时处理。
声明:本文由入驻焦点开放平台的作者撰写,除焦点官方账号外,观点仅代表作者本人,不代表焦点立场。
