深圳罗湖最后一片湖山 | 京基璟誉府,为都市精英定制的生活主场
扫描到手机,新闻随时看
扫一扫,用手机看文章
更加方便分享给朋友
京基璟誉府位于深圳罗湖中芯,揽城央一线湖山臻境。京基集团30载钜作,总建面约84万㎡全景山水人文大城。直面约60.5Km²水库生态臻境,尽瞰梧桐山峦叠翠;举步罗湖精粹生活,执掌城央醇熟配套。京基·璟誉府营销中心已盛启,建面约50-180㎡湖山首排奢宅,销售火热进行中。
京基璟誉府项目规划总占地面积约2.76万㎡,总建筑面积约40.3万㎡,计容建筑面积约31.3万㎡,容积率11.35,绿化率40.01%,共由3栋5座60F超高层住宅+1栋办公楼组成,其中1栋A1/A2座/1栋B1/B2座/1栋C座住宅60F,3栋办公楼62F,2栋是一所18班制幼儿园。
总规划1624户,其中商品房有489套,3梯4户/3梯5户设计,回迁房1135套,地下5层,规划停车位2015个。
将推出1栋A1座、1栋B1座/B2座、1栋C座,共489套房源
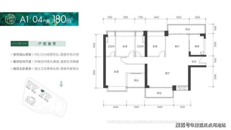
面积段:50㎡的1房1厅,70-85㎡的2房1厅,95-105㎡的3房2卫,120-150-180㎡的4房2卫户型计划在2025年底前带精装交房。
如需了解本楼盘更多详情,欢迎来电咨询深圳京基璟誉府开发商售楼处免费400咨询/预约电话:400-811-3080(已认证)中介请勿扰,因近期参观的人员太多,本项目营销中心暂不接受临时到访,为不耽误您的行程,过来楼盘现场参观样板房请务必记得提前来电预约,预约看房的话最终房价还能更加优惠,最终价格包您满意!
下面是我们楼盘营销中心实拍照片:
项目介绍:

小区园林
近1万㎡景观园林,以6重园林景观(主人口、归家礼庭、揽翠花径、阳光沐台、欢畅泳池、童趣乐园)营造体验感丰富的全龄段公共活动空间。
【30载京基巨著 缔造罗湖封面】
中心地标缔造者——京基集团,国家房地产开发一级资质企业,中国驰名商标,铸就京基100、京基水贝城市广场等城市地标,造就诸多高端、大型综合体、资源豪宅等经典项目。京基30载,于罗湖城芯再造誉领湖山巨著。
【雄踞城央 山水大城终藏】
项目坐落于罗湖中芯淘金山--梧桐山生态地脉之上,私享60平方公里浩瀚东湖头排景观,承袭豪宅基因,一面退守山水宁静,一面执掌城央繁华,缔造新时代奢居典范。
【一湖三山五公园 24H鲜养生活】
紧邻一湖三山五公园,傲据60.5平方公里深圳水库保护区一线,深港唯此6000万㎡生态恒产。直面深圳最高峰梧桐山,淘金山、围岭山簇拥,下楼即达东湖公园、咫尺翠湖文体公园(罗湖最大的社区公园)、淘金山绿道、围岭公园、布心山公园、东晓儿童友好公园等,畅享24H生态鲜氧。
【84万㎡山水人文大城 礼献中芯】
京基集团匠心打造约84万㎡全景山水人文大城,集全景雅宅、金粹美寓、商务峯面、商业集群等多元业态于一体。
【省一级名校为邻 菁英学府护航】
项目自带1所4800㎡的18班幼儿园,紧邻翠园东晓教育集团旗下东晓小学、布心小学、布心中学等老牌省一级名校,十大优校环伺,家门口一站式名校教育,启序菁英未来。
(最终入学相关政策以教育局公布为准)
【罗湖恒定中芯 时代万象臻萃】
40余载深圳恒定中芯,崛起之源。罗湖再领先行先试变革旗帜,约2300万㎡城市更新,规划一主两区三带、四大千亿片区,重塑国际都会全新格局,先享时代红利。
【全维交通布局 快速畅达湾区】
★ 4快速:毗邻东湖路、太白路、东晓路等城市主干道,0距离丹平快速,快速接驳坂银通道,清平高速,东部过境高速,瞬达全城;
★ 3口岸:15分钟车程覆盖罗湖、文锦渡口岸,30分钟车程达莲塘口岸,高效通行深港,畅享双城生活;
★ 2高铁:深圳站、罗湖北站(在建中,计划2028年通车运营);
★ 2地铁:距离5号线布心站约600m,距离5/7号线太安站约700m,快速换乘1/2/9号线。
【50万㎡商圈环伺 咫尺繁华生活】
项目自带约2万㎡商业,周边5大商圈环伺
★ 约1km范围:约6万㎡喜荟城、12万㎡天河城双购物中心;
★ 约2km范围:约10万㎡京基KKTIME、6万㎡IBC MALL、12万㎡华润万象汇等商圈。
【国家一级资质物业 高端生活礼赞】
京基物业,成立于2007年4月,国家一级资质物业管理企业,以“细意关注、尽心服务”为服务理念,以“持续超越业主需求、持续提升服务品质”为要求,致力成为中国高端物业管理的标杆企业。
【国际大师联袂 璟造城芯臻境】
联袂蕾奥、同济人、普利斯等国际团队,打造功能丰富多元、活力现代的共享型理想社区。
★ 艺术立面
以“东湖之畔,滟潋波光”为设计理念,选用节能高档的LOW-E中空玻璃,配以历久弥新的铝板线条勾勒外立面,提升建筑的气质与格调,更显轻盈感和现代艺术感,彰显时代人物的身份标签。
★ 尊贵门庭
10m挑高大门—艺术园林庭院—6m挑高入户大堂,三重礼序,步步尊崇,让归家成为一次艺术尊贵之旅。
★ 6重园林
近1万㎡景观园林,以6重园林景观(主人口、归家礼庭、揽翠花径、阳光沐台、欢畅泳池、童趣乐园)营造体验感丰富的全龄段公共活动空间。
★ 丰盛社区配套
约1.3万m²公共配套,含社康中心、公共配套、社区警务室等,真正做到老有所养、幼有所育,打造多元、安全、舒适的居住环境。
【湖山首排奢宅 最后臻藏】
京基璟誉府是沿百仕达-淘金山-深圳水库沿线最后一个湖山全景项目,建面约70-180㎡湖山首排奢宅,格局方正,尺度阔绰,全生命周期户型容纳更多生活场景。
京基璟誉府项目规划平面图:
【京基璟誉府户型图鉴赏】

看完以上图文介绍,您如果想要了解更多关于我们深圳京基璟誉府楼盘最新消息、当前剩余房源、这几天楼盘现场折扣优惠活动、近期周边房价走势、银行相关利率政策等情况的话,欢迎来电咨询京基璟誉府楼盘开发商售楼处免费400咨询/预约热线电话:400-811 3080(已认证)中介勿扰。
温馨提示:因本项目营销中心参观样板间采取预约制,为不耽误您的行程,过来营销中心现场看房前请务必记得提前来电预约,预约看房的话享受的优惠折扣比直接上门更多,最终成交价格也会更加划算,在此真诚感谢您对我们工作的支持和信赖,恭候您大驾光临。
免责声明:以上展示的关于深圳京基璟誉府楼盘最新相关的最新图文资料可能部分来自网络,具体细节以最终签署的购房合同为准,如无意存在侵犯某方权益请及时联系我们处理。
声明:本文由入驻焦点开放平台的作者撰写,除焦点官方账号外,观点仅代表作者本人,不代表焦点立场。
