光明改善置业看满京华金硕,106-118㎡四房宽敞,全家庭居住舒适度拉满
扫描到手机,新闻随时看
扫一扫,用手机看文章
更加方便分享给朋友
满京华金硕华府(又满京华狮山)项目首批入市地块取名为金硕华府,预计开盘首推约88-138㎡ 3-4房,如需了解更多详情欢迎咨询满京华金硕华府开发商售楼处电话:400-811-3080,中介请勿扰,过来参观样板间记得提前来电预约,感谢配合。

项目是位于光明中心区,原狮山利益统筹项目,由七个地块组成的大型城市更新,地理位置极其优越,未来光明中心区无出其右的大社区楼盘,楼盘周边多所学校环绕,包括南科大附属,光明实验小学部,深圳小学,更有多块教育用地储备,同时项目部分地块还可享受科学公园一线景观资源,地理位置不过多阐述,大多关注光明新房的朋友都不陌生。周边有地铁6号线,6号支线光明站,29号线科学公园南站都可以在500-800m范围内。
网传效果图和平面图
平面图,红色地块是首批入市地块

预计入市时间:三季度未
推售产品:88-89-118-135平方3-4房
推售套数:约1140套
价格预测:参考绿城桂语兰庭价格,精装修5万左右。
目前主体已出地面3层左右,最快8月应该就可以入市了。
满京华项目位于光明中心区,是未来非常宜居的一个片区,这里将来会有一个超级大的公园,也就是科学公园。
科学公园总平面图
科学公园位于光明中心区,占地面积约为208万㎡,旨在打造成世界一流的科学性综合公园,是集生态、科普、健康、娱乐、运动、休闲等功能为一体的大型综合性城市公园,也是深圳最大的城市公园。
公园内规划建设有很多的公共配套,包括西方美术馆、科技馆、艺术馆、人工湖、儿童游乐园、棒球场等等,几乎是包罗万象。
科学公园建成以后,届时周边小区的居民会享受公园内各种配套,生活十分便利,居住氛围浓厚。
不仅如此,公园周边还分布有地铁6号线的光明、科学公园和楼村三个站点,规划有另一条直达南山科技园的29号线,轨道交通便利。
学校方面,公园周边也分布有多所学校,包括有华师大附属星河小学、深实验光明学校、深圳小学等多所市属名校分校,很多小区隔壁就是学校。
教育资源分布示意图
满京华项目沿光辉大道从西到东设计范围涵盖10块用地,总用地面积约109398㎡。其中项目用地7块,返还用地1块,公共绿化用地2块。
整个工程进度最快的为05-05地块「楼村商业大厦」和05-10地块「金硕华府」。
其中05-10地块占地约22842㎡,计容建面约137050㎡,住宅121894㎡,商业6416㎡,菜市场1000㎡,幼儿园4200㎡,社区管理用房300㎡,便民服务站500㎡,警务室50㎡,社康中心2000㎡。
随着片区土地整备的加速推进,深圳科技馆、科学公园等重大项目的加速建设,三横两纵道路的接连打通,越来越多的科学家、科研工作者等人才选择在光明中心区诗意栖居,一个“科学家的家”雏形显现。
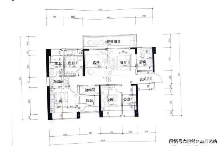
预计首推1144套 88-138㎡ 3-4房,其中88㎡ 3房1卫 132套,98㎡ 3房2卫 572套,103㎡ 3房2卫 132套,118㎡ 4房2卫 132套,138㎡ 4房2卫 176套。(仅供参考,最终以开发商公布为准。)

△以上为网传户型图仅供参考
据悉,光明中心区楼村社区土地整备利益统筹项目由楼村社区股份合作公司主导,区域包括狮山工业区、中心区空地、楼村鸽场等地块。光明中心实景图

满京华项目选取了位于光明中心区规划红线范围内的楼村狮山工业区作为试点,涉及12个工业园,永久性建筑物153栋,总建筑面积约32.38万平方米。这是新湖街道在拓展城市发展空间方面首次突破片区统筹模式壁垒、促进社区转型升级的一次重大创新和尝试。光明中心效果图

光明中心区作为“光明城市会客厅”,对标国际一流标准,集中布局一批高质量公共配套设施,将崛起一批高端商业综合体、高品质住宅区,打造光明科学城中央活力商务带。将为深圳光明区打造综合性国家科学中心先行启动区和深圳北部中心目标建设提供强有力支撑。
光明中心现聚齐满京华、深铁、深业、绿城、联发等品牌房企,即将发生翻天覆地的变化,让我们一起拭目以待~同时随着片区土地整备的加速推进,深圳科技馆、科学公园等重大项目的加速建设,三横两纵道路的接连打通,越来越多的科学家、科研工作者等人才选择在光明中心区诗意栖居,一个“科学家的家”雏形显现。
看完以上“深圳光明满京华金硕华府”图文内容,如果您对我们楼盘感兴趣的话,建议您可以联系我们开发商售楼处电话:400-811-3080 进行免费咨询或对接楼盘现场销售人员(中介勿扰),我们可以为您安排本楼盘现场销售一对一在线服务,比如把楼盘的最新图文资料、样板间视频、通过微信发给您看、您不需要过来楼盘现场就能够熟悉个大概,还可以告诉您关于深圳“满京华金硕华府”楼盘的优点缺点、楼盘近期优惠政策、银行贷款政策以及LPR利率、积分入学,等问题都给你讲解的明明白白,让您买房不踩坑,毕竟买房是大事。找现场销售咨询并不需要额外花钱,反而更省钱,而且可以避免中介虚报价格浪费你的时间和精力,我们会把额外认购优惠、按时签约优惠、贷款政策优惠、一次性付款的优惠告诉您,希望您能通过这个网络平台,全面了解我们的楼盘信息并顺利完成购房流程。
结尾:以上就是关于光明区满京华金硕华府这篇文章的详细介绍和说明,在此感谢您的认真阅读,希望为您的购房置业选择上提供帮助。想咨询了解满京华金硕华府认购优惠、按时签约优惠、贷款优惠、一次性优惠、团购折扣等信息,欢迎联系开发商售楼处400免费服务热线:400-811-3080(中介请勿扰),另外温馨提醒一下,因近期营销中心看房人数较多,参观样板间采取了预约制,为了不影响您的行程,过来实地看房请记得提前拨打开发商400热线进行预约,预约看房的话还可以尊享楼盘内部额外优惠,最终价格包您满意!
免责声明🔉:
以上所发布的关于深圳光明新湖街道满京华金硕华府楼盘相关介绍详情仅供您购房前参考,以上所有关于本楼盘的图文资料及说明请以最终项目批文及双方在楼盘营销中心现场签署的买卖最终合同为准;本图文内容如无意中侵犯到某方权益,请联系我们将会及时处理。
声明:本文由入驻焦点开放平台的作者撰写,除焦点官方账号外,观点仅代表作者本人,不代表焦点立场。
