松茂御城二期 (售楼处) 首页 - 松茂御城二期销售中心 - 环境 - 户型 - 价格 - 地址 - 楼盘详情 - 配套 - 电话 - 交房时间 - 配套 - 电话 - 交房时间
扫描到手机,新闻随时看
扫一扫,用手机看文章
更加方便分享给朋友
据最新消息:光明13号线月亮路站松茂御城雅苑二期计划将在2025年8月底取证入市,拿证了直接认购,双名校深中+深实验!户型图已曝光!81㎡做到了3+1房,89㎡四房二卫,109㎡四房二卫,135㎡五房二卫,光明户型天花板,得房率将近108%。这几个户型一旦入市,一定是光明王炸户型,基本上吊打现在光明市面上的新规户型。
如需了解更多详情,欢迎咨询松茂御城售楼处电话400 811 3080,过来我们营销中心看房提前来电预约价格还能更优惠。
【深圳松茂御城开发商售楼处400免费咨询/预约电话:400-811-3080,中介勿扰】
温馨提示:过来营销中心参观样板间请记得提前拨打售楼处400热线预约,感谢您的配合!
基础信息介绍
1、开发商:深圳市松茂房地产集团有限公司
2、物业公司:深圳市海天泰物业管理有限公司
3、物业管理费:3.8元/㎡
4、总占地面积:84.53万/㎡
5、总建筑面积:29.78万/㎡
6、容积率:4.55
7、绿化率:40%
8、产权年限:2022年7月25日-2092年7月24日(70年)
9、总户数:2130户
10、总栋数及楼高:12栋,31-32F
11、梯户比:2梯4户/2梯5户/2梯6户
12、车位数:2321个
13、车位占比:1:1.09
14、交楼时间:一期现房,二期准现房
15、交楼标准:精装
16、开发商电话:400 811 3080
本次将推出的松茂御城2期,总占地面积约3.13万㎡,总建筑面积约20.74万㎡,计容建筑面积约16.21万㎡,容积率4.55,绿化率40%,共由8栋总高31-32层高的住宅组成,其中1栋A/B/C/D/E/H座住宅32F,1栋F/G座住宅31F,2栋规划1所幼儿园。
总规划1225户,全部都是商品房,是否有回迁房暂不确定,大概率是没有的,其中1栋E座是楼王2梯4户,1栋A座跟1栋H座2梯6户,其它栋数2梯5户设计,地下室有2层,规划1548个车位,其中充电桩车位465个,车位比约1:1.26。
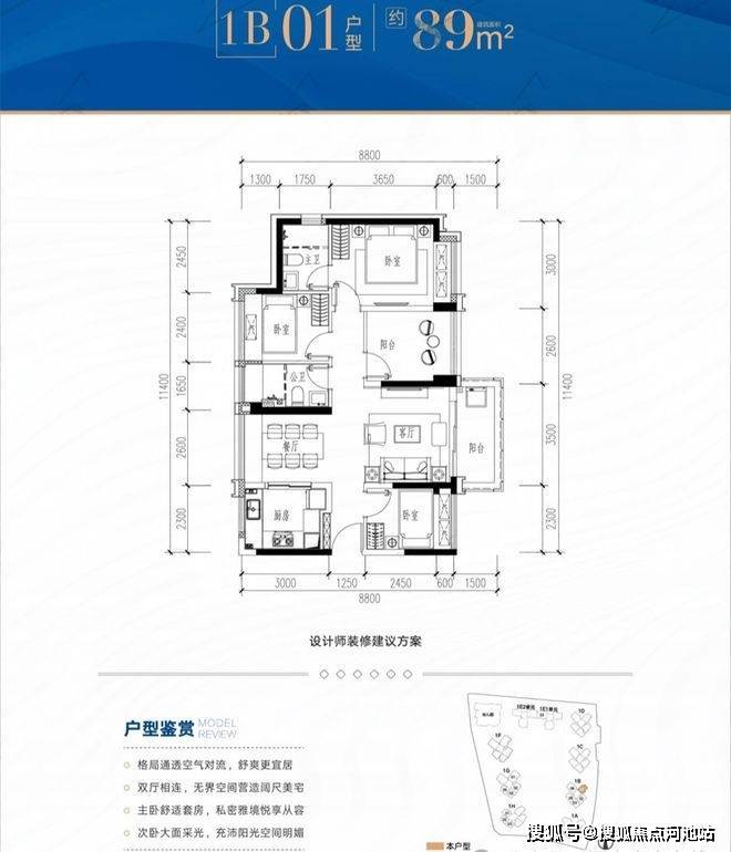
平面图及户型图
松茂御城户型包括81平3+1房、89-109平4房2卫和135平5房2卫。户型设计不错,得房率高。
81平3+1房,赠送4个多平方的面积,可以改造为书房或卫生间,做成3+1房,或者做三房两卫,使用率约91.5-93.5%。
89平4房2卫,竖厅格局,赠送面积约11.85-15.02㎡,加赠送后得房率约93-96.48%。
109平4房2卫,竖厅格局,南北通透/东南朝向,赠送面积14.41-16.43㎡,加赠送后得房率约92.82-94.67%。
深圳松茂御城二期开发商售楼处电话 400-811-3080(中介勿扰)
过来售楼中心看房请提前预约,可尊享内部特惠,价格包您满意!
为您安排楼盘内场专业销售人员一对一接待服务!让你买的放心,住的舒心!
免责声明🔉:
以上所发布的关于楼盘相关图文信息仅供您买房前参考,以上所有关于本楼盘的图文资料及说明请以最终以项目批文及双方在楼盘营销中心现场签署的买卖最终合同为准;本图文内容如无意中侵犯到某方权益,请联系我们将会及时处理。
声明:本文由入驻焦点开放平台的作者撰写,除焦点官方账号外,观点仅代表作者本人,不代表焦点立场。
