i深圳登记中!宝中《保利瑧誉府》加推1栋1单元,197套房源,22号开盘!面积115-143㎡
扫描到手机,新闻随时看
扫一扫,用手机看文章
更加方便分享给朋友
项目地址位于宝安核心区,临近欢乐港湾,各项配套丰富,交通便利,生活超级方便;项目附近的学校也是宝安区排名靠前的热门学校,对有学位需求的家庭比较友好,而且这类学位好的楼盘往往更保值;保利瑧誉府距离腾讯全球总部直线距离约1公里,周边有产业支撑,适合搞钱的地方长期价值可期。
项目未配备幼儿园,最近的是步行大约450米的宝安区机关幼儿园(集团)假日名居幼儿园。项目西边规划了一个九年制学校,据传有可能是「宝中外国语」。
项目北侧是海韵学校,步行大约404米,这个学校小学初中在宝安都是排名靠前的学校,是深圳唯一的一所,以艺术教育为特色的公办品牌学校。2024年中考560分的比例高达9.6%,570分的比例5.8%,已经和南山的老八大名校育才中学差不多了。不过这个学校往年录取积分比较高,新购房家庭不一定上得了。
保利瑧誉府项目附近还有新安中学(集团)第一实验学校(初中部),这个学校在宝安区可以排得进前十。
如需了解本楼盘更多详情,欢迎来电咨询深圳宝安保利瑧誉府开发商售楼处免费400咨询/预约电话:400-880-7297(已认证)中介请勿扰,因近期参观的人员太多,本项目营销中心暂不接受临时到访,为不耽误您的行程,过来楼盘现场参观样板房请务必记得提前来电预约,预约看房的话最终房价还能更加优惠,最终价格包您满意!
项目基本信息
◎开发商:深圳市保金房地产开发有限公司;
◎总建面:约8万㎡;
◎可售建面:约5.4万㎡;
◎开发商电话:400 880 7297
◎梯户比:四梯五户;
◎楼栋数:2栋、层高44-45层;
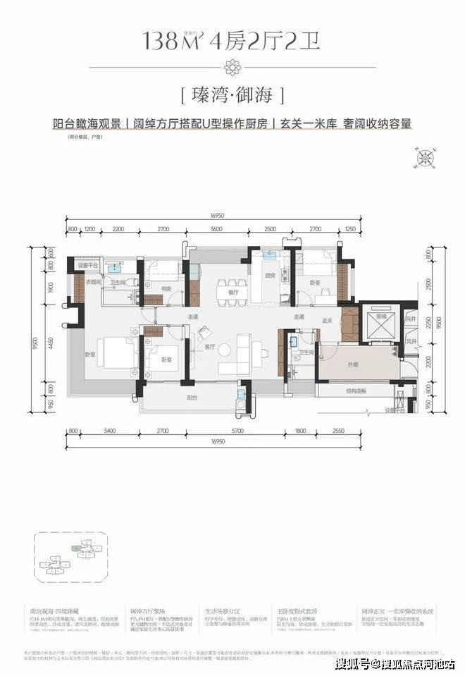
◎在售户型:建面约114-143㎡臻装纯四房;
◎物业服务:保利物业;
◎项目地址:深圳·前海宝中·鹅岛对面·金科路
那么,保利臻誉府这个楼盘究竟值不值得买?
湾区主场 天赋土地
前海——深圳继福田中心之后唯一官方认定的双中心之一;是国家用万亿基建和政策创新构建的实体化开放平台,它不仅是湾区核心,更是国家参与全球竞争的战略支点。
(信息来源于:《滨海宝安》官微)
一个中心 超级岸线
作为深圳唯一的滨海城市中心地区,宝安中心区环抱前海湾畔,黄金岸线不可复制。
(信息来源于:《滨海宝安》官微)
在我国人均海岸线进入“厘米时代”的当下,滨海生活愈发稀贵,建筑可以被模仿,海岸无法再生,于是瑧誉将清晨的海、傍晚的海、初秋的海、细雨的海......都放到了“一目了然”之中,给海以视野的最大尺度。
城市资源密度天花板
宝中片区作为前海城市新中心的重要组成部分,享受前海、宝安的双重优惠政策;开发条件成熟、资源要素丰富、交通出行便捷、公共配套完善;是未来湾区宜居宜业宜游的现代化国际化城市新中心。
(信息来源:《深圳前海》官微)
四重景观区 六要素枢纽
深圳唯一集齐山、河、港、海、岛的行政区;全国唯一的“空港、海港、高铁、高速、快速、地铁”六要素枢纽型大交通体系,是深圳连接湾区最重要的枢纽。
(信息来源:《深圳前海》官微)
4.0宝中时代 世界级商圈之一
前海宝中商圈——深圳规划打造的世界级商圈之一。
(信息来源:《深圳市商业网点规划(2025-2035)》、信息来源于:《滨海宝安》官微)
黄金海岸 滨海生活
家门口即可享受滨海度假体验,沿着蜿蜒的滨海栈道慢跑,和家人好友去公园露营,未来还有国际游艇码头、海上艺术长廊。
书香馥郁 名教优学
新安中学、海韵学校、企鹅岛明湾国际学校、项目南侧规划27班学校,四大学校林立在侧。
(开发商不作学位承诺,具体入读政策、入学时间等以教育局官方公布信息为准。)
人文在侧 艺术熏陶
享受宝安青少年宫、宝安图书馆、深圳滨海艺术中心、欢乐港湾、深圳湾区书城(在建)等城市公建配套。
生态交织 举步可达
近享滨海廊桥、湾尖生态公园、水岸创意公园、半岛艺术公园、港湾文艺公园等多重生态公园,将滨海公园、滨海公园二期(规划)的震撼景观收纳于怀。
深圳保利瑧誉府按新规执行,得房率预估至少能干到近100%,综合测算下来,从实际套内空间体验看,是可以作为部分参考的。
领衔深圳 艺术进化
立体泛会所
对标新加坡、香港立体城市理念,设计师将多元的生活场景精缩于空间中,实现场景营造与创新迭代的同时,打造了深圳少有的双层艺术CLUB。
世界风华 艺术瑰品
瑧誉遵循东韵西境设计理念,将国际经典艺术与东方隐奢基因熔铸为“可居住的艺术品”,将艺术性与实用性赋予每个场景。
人物往来 会客主场
为全龄业主搭建一处理想的生活、交流平台,划定圈层人物会客厅私享场域。
看完以上图文介绍,您如果想要了解更多关于我们深圳宝安保利瑧誉楼盘最新消息、当前剩余房源、这几天楼盘现场折扣优惠活动、近期周边房价走势、银行相关利率政策等情况的话,欢迎来电咨询保利瑧誉开发商售楼处免费400咨询/预约热线电话:400-880-7297(已认证)中介勿扰。
温馨提示:因本项目营销中心参观样板间采取预约制,为不耽误您的行程,过来营销中心现场看房前请务必记得提前来电预约,预约看房的话享受的优惠折扣比直接上门更多,最终成交价格也会更加划算,在此真诚感谢您对我们工作的支持和信赖,恭候您大驾光临。
免责声明:以上展示的关于深圳保利瑧誉楼盘最新相关的最新图文资料可能部分来自网络,具体细节以最终签署的购房合同为准,如无意存在侵犯某方权益请及时联系我们处理。
声明:本文由入驻焦点开放平台的作者撰写,除焦点官方账号外,观点仅代表作者本人,不代表焦点立场。
