深圳龙华《鸿荣源尚云花园》房子,82㎡3+1房王炸户型成就的昔日龙华销冠红盘值得买吗?
扫描到手机,新闻随时看
扫一扫,用手机看文章
更加方便分享给朋友
深圳龙华超级商圈·双地铁口·准现楼红盘「鸿荣源尚云」在售建面约82-120精装修3-4房,今年买,今年住。
鸿荣源尚云项目位于龙华超级商圈壹方天地旁,区域配套设施完善,临近上塘-红山片区。鸿荣源尚云计划在2025年12月31日之前带精装修交房。
如需了解本楼盘更多详情,欢迎来电咨询深圳龙华鸿荣源尚云楼盘开发商售楼处免费400咨询/预约电话:400-811-3080(已认证)中介请勿扰,因近期参观的人员太多,本项目营销中心暂不接受临时到访,为不耽误您的行程,过来楼盘现场参观样板房请务必记得提前来电预约,预约看房的话最终房价还能更加优惠,最终价格包您满意!
项目基本信息
【占地】:约3万㎡
【建面】:约27万㎡
【产权年限】:70年(2022-2092)
【总栋楼】:共8栋
【总户数】:1278户
【本次推售】:612户
【面积】:约82-89㎡3房2卫
【开发商电话】:400 811 3080
【总楼层】:54-57层
【均价】:约5.7万/㎡
【使用率】:85%
【梯户比】:3梯6户
【停车位】:1732个
【交房标准】:简装
【交房时间】:2025年12月前
【管理费】:5.9元
【物业管理】:鸿荣源物业
【开发商】:鸿荣源集团开发
备案价格如下:
「龙华超级商圈,世界级消费中心」
龙华超级商圈:龙华六大重点片区之一,以人民路为中轴,规划承载中洲龙商旧改、龙华海岸城旧改为核心,打造人民路龙华超级商圈。
世界级消费中心:未来龙华超级商圈将成为规模超200万㎡、产值超500亿的市级核心商圈和世界级未来消费体验中心。
鸿荣源尚云项目周边配套:
交通配套
4号线(已开通):龙华站直线距离约1000m,深圳纵向城市交通中轴。
6号线(已开通):上芬站距离约1200m,连接光明、龙华、福田。
25号线(2024年2月已开工):景龙/油福站直线距离约400m,打通城市东西走向核心动脉
27号线(启动施工招标):油福站直线距离约400m,拥抱前海,覆盖各大高新人才聚集地
22号线(已开工):油松站直线距离约1km,连接福田-龙华各大核心产业区。
商业配套
世界级消费中心:未来龙华超级商圈将成为规模超200万㎡、产值超500亿的市级核心商圈和世界级未来消费体验中心。
教育配套
小学学区划分在龙华区第二实验学校小学部,人民路学校小学部,华育小学,作为小学共享学区;中学学区划分在人民路学校初中部,龙华区第二实验学校初中部,作为初中共享学区;
另外值得一提的是家门口的深圳艺术高中民治学校(在建),该校是一所54班学校,小学36班,初中18班,将提供2520个学位,小学1620个,初中900个,未来也将划入尚云花园学区范围内。
医疗配套
深圳龙华区人民医院、龙华区中心医院、广州医科大学附属第一医院、深圳市第二儿童医院(在建)、新华医院(在建)
休闲配套
深圳书城龙华城、龙华文体中心、简上体育综合体、展览馆、演艺馆、深圳市图书馆北馆、美术馆新馆、深圳市文化馆新馆。
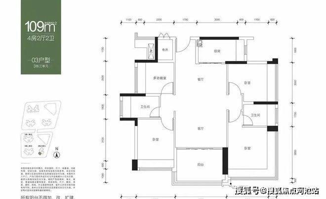
——鸿荣源尚云户型图鉴赏——
看完以上介绍,如需了解更多关于我们深圳龙华区鸿荣源尚云花园楼盘最新消息、剩余房源、折扣优惠活动、近期房价走势等情况,欢迎咨询鸿荣源尚云开发商售楼处咨询/预约电话:400-811-3080(已认证)中介勿扰。
温馨提示:因本项目营销中心参观样板间采取预约制,为不耽误您的行程,过来营销中心现场看房前请务必记得提前来电预约,预约看房的话享受的优惠折扣比直接上门更多,最终成交价格也会更加划算,在此真诚感谢您对我们工作的支持和信赖,恭候您大驾光临。
免责声明:以上展示的关于龙华区鸿荣源尚云花园楼盘最新相关的图文资料可能部分来自网络,具体细节以最终签署的购房合同为准,如无意存在侵犯某方权益请及时联系我们处理。
声明:本文由入驻焦点开放平台的作者撰写,除焦点官方账号外,观点仅代表作者本人,不代表焦点立场。
