深圳南山同乐公馆,南山核心地段配套成熟,户型方正通透,宜居自住品质楼盘详细推荐
扫描到手机,新闻随时看
扫一扫,用手机看文章
更加方便分享给朋友
最新消息:深圳市南山区南头又一新楼盘——同乐公馆,已经正式取证,首期开盘推出103套91-113-123㎡3-4房,及少量顶复,5万定金直接签认购,2025年6月15日线下提交资料及选房。
如需了解本楼盘更多详情,欢迎来电咨询深圳南山同乐公馆楼盘开发商售楼处免费400咨询/预约电话:400-880-7297(已认证)中介请勿扰,因近期参观的人员太多,本项目营销中心暂不接受临时到访,为不耽误您的行程,过来楼盘现场参观样板房请务必记得提前来电预约,预约看房的话最终房价还能更加优惠,包您满意!

房价说明(预约看房价格还能更优惠)!
91㎡3房:折后6.9万-7.4万/㎡,折后总价628-693万;
113㎡4房:折后单价7.1万-7.6万/㎡,折后总价798-863万;
123㎡4房:折后单价6.9万-7.6万/㎡,折后总价849-936万。
折扣体系:开盘折扣98折*团购折扣99折*7天准签98折*装修补贴97折,综合折扣92折。

同乐公馆基本可以说是今年南山新房市场上,最有性价比的一批货了。正常开盘的话,除了顶复基本就能去化八八九九。
600多万买南山新规大3房,800买南山横厅大4房!这价格砸锅卖跌都得上啊!
这已经是打着灯笼都难找到的好项目了!
同乐公馆优劣势分析
优势
1、居住属性纯粹,小区无保障房、无人才房等配建,总规划131户,统统都是商品房。
2、虽然是新规前报建的房子,但也算是多报建了设备平台和阳台,凸窗进深也有80cm接近赠送的极限,综合使用率等达到94%;另外3.1米层高,大于“好房子”标准层高3米打造,空间感也会好很多。
3、采用3梯4户,所有套房主卧均是270°的环幕景观,算是对齐主流的豪宅配置。近年入市的豪宅比如中海深湾玖序,还有预估10月份要卖的中信元湾府,都有270°环幕景观的配置。重点是周边800米无遮挡,景观还是可以的。
4、停车位比较充足,131户配置了132个车位,基本是1:1配比的,这一点优于周边楼盘,旁边的荔源雅源车位配比1:0.75。
基础信息

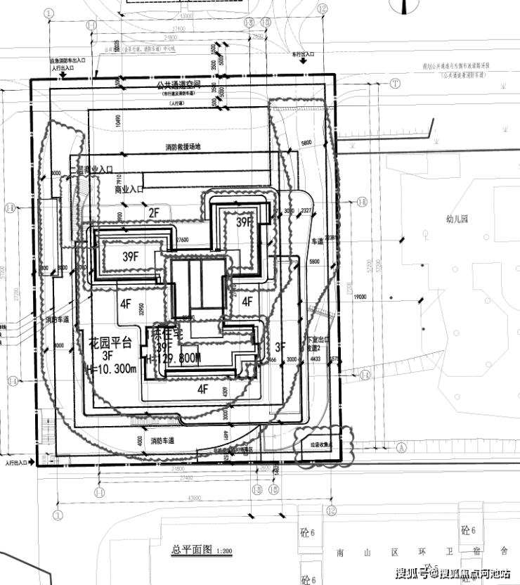
项目总占地面积2901㎡,总建筑面积2.4万㎡,容积率4.97,绿化率30%,为一栋39层的单体高层建筑,总户数131户,3梯4户,车位数132个,预计最晚2026年12月底前简装交付。
以下数据来源:深圳市规土委。

项目为独栋单体建筑,规划为一栋39层高层,建筑高度129.8米,住宅建筑面积1.39万㎡,3层为花园平台,1-2层为商业裙楼。

本次推售,总可售货量103套。
其中,91㎡3房2卫共50套;113㎡4房2卫共25套;123㎡4房2卫共25套;另有179㎡/190㎡/230㎡顶复3套。
同乐公馆户型分析:
具体看,同乐公馆主力户型主要是位于南侧03、04梯腿的91㎡3房,位于东北侧02梯腿的113㎡4房,位于西北侧01梯腿的123㎡4房。
91㎡3房户型:位于03、04梯腿,3房2卫(东北侧阳台可改+1房)、均为竖厅格局,不过整体南向采光面共9.3米,采光还是可以的。作为基础户型,主卧也有270°L型环幕景观面,体验感拉满。
113㎡4房户型:位于02梯腿,4房2卫(西北侧阳台可改+1房)、动静分区,客厅、主卧均有270°L型环幕景观面,主卧开间6.6米,阳台开间5.6米,整套房东向、南向均采光充足。
123㎡4房户型:位于01梯腿,4房2卫(北侧阳台可改+1房)、横厅格局,南北通透,是所有户型中最方正的,南向采光面近20米。重点提一句,这也是南山120㎡面积段中,客厅最大的。

【同乐公馆开发商售楼处咨询/预约电话☎️ 400-880-7297(中介勿扰)】
✅ 本项目暂不接受临时到访,过来参观样板房请记得提前来电预约!
✅ 为您安排楼盘现场销售全程一对一在线解答,给您更贴心的体验!
温馨提醒:我们楼盘开发商售楼处400电话没有设置任何所谓的“分机号”,拨打前请仔细甄别,注意保护个人隐私!谨防上当!
免责声明🔉:
以上所发布的关于深圳南山同乐公馆楼盘相关介绍详情仅供您购房前参考,以上所有关于本楼盘的图文资料及说明请以最终项目批文及双方在楼盘营销中心现场签署的买卖最终合同为准;本图文内容如无意中侵犯到某方权益,请联系我们将会及时处理。
声明:本文由入驻焦点开放平台的作者撰写,除焦点官方账号外,观点仅代表作者本人,不代表焦点立场。
