《新世界·香蜜四季家园》福田区唯一在售新规新房<建面约108-280平>3-6房
扫描到手机,新闻随时看
扫一扫,用手机看文章
更加方便分享给朋友
温馨提示:因近期参观的购房者较多,所以本楼盘采取预约制,过来营销中心现场参观样板间请记得提前拨打开发商售楼处400热线电话在线预约,预约看房价格更优惠,感谢您的配合!
项目实景图
项目基本信息
建面:约55万㎡
总套数:764套
在售楼栋:2栋二单元152套
总层高:42层
梯户比:3梯5户、3梯3户
开发商电话:400 880 7297
装修情况:装配式绿建二星
业态:含新规大宅、超豪华五星级酒店、国际公寓、精奢商业等
新世界香蜜四季这个楼盘究竟值不值得买?
-核心价值
⭐【国际奢品】:APEC峰会瞩目全球,唯核芯地段造就永恒价值
✨ 世界资产:APEC 2026峰会,香蜜湖将成为全世界焦点,资产价值潜力不可限量,“新金融中心+城市新客厅”,正加速兑现;
✨ 高阶配套:一馆三中心”,坐拥愈十座精神地标;
✨ 六重生态:山、湖、林、海、公园、高尔夫,宜居版图;
✨ 全维交通:位处深圳版图圆心,10线8站,500米双地铁站口,邻近深南大道,规划广深港磁高速悬浮,速达全城通达世界
⭐【压轴大戏】:唯稀缺定义真正价值
✨ 香蜜湖惟此新品在售
✨ 城央难得精奢生活大城,约55万㎡奢华综合体
⭐【新规典范】:唯好房子才是一生之选
✨ 32载开发经验重塑新规典范
✨ 个别户型使用率超过100%,前所未见超凡实用
✨ 奢阔尺度多套房设计
✨ 约3.15米层高尽显从容气度
⭐【大师匠造】:唯大师作品穿越时间
美国DK为金普顿酒店开创约200米天际悬空泳池,英国Benoy匠造三层立体园林将自然搬进城市,香港CCD执笔顶奢酒店般仪式感公区。
规划平面图:
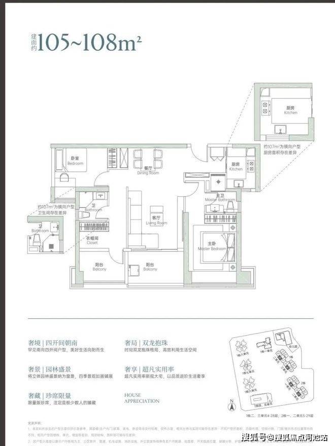
新世界香蜜四季户型图
首推2栋2单元3梯5户(100米以下)
【新世界香蜜四季开发商售楼处咨询/预约电话☎️ 400-880-7297(中介勿扰)】
✅ 本项目暂不接受临时到访,过来参观样板房请记得提前来电预约!
✅ 为您安排楼盘现场销售全程一对一在线解答,给您更贴心的体验!
温馨提醒:我们楼盘开发商售楼处400电话没有设置任何所谓的“分机号”,拨打前请仔细甄别,注意保护个人隐私!谨防上当!
免责声明:
以上所发布的关于深圳福田新世界香蜜四季楼盘相关介绍详情仅供您购房前参考,以上所有关于本楼盘的图文资料及说明请以最终项目批文及双方在楼盘营销中心现场签署的买卖最终合同为准;本图文内容如无意中侵犯到某方权益,请联系我们将会及时处理。
声明:本文由入驻焦点开放平台的作者撰写,除焦点官方账号外,观点仅代表作者本人,不代表焦点立场。
