深圳「鸿荣源观城」龙华鸿荣源观城售楼中心|鸿荣源观城楼盘图文最新解析
扫描到手机,新闻随时看
扫一扫,用手机看文章
更加方便分享给朋友
最新消息:深圳龙华【鸿荣源·观城】 重磅上新3栋一单元,面积89-99㎡三房两卫户型,共312套,梯户比4梯6户!头排楼王,超宽间距,全南朝向。最快本周末取证,直接顺销,取证即开盘,全新样板房2025年7月12日正式全面开放!过来参观需提前来电预约,另外如需了解最新开盘消息可以联系开发商售楼部电话:400-880-7297(已认证)中介请勿扰!
下面航拍图是本次加推的楼栋:
下面是售楼处实拍照片
如需了解本楼盘更多详情,欢迎来电咨询深圳龙华鸿荣源楼盘开发商售楼处免费400咨询/预约电话:400-880-7297(已认证)中介请勿扰,因近期参观的人员太多,本项目营销中心暂不接受临时到访,为不耽误您的行程,过来楼盘现场参观样板房请务必记得提前来电预约,预约看房的话最终房价还能更加优惠,最终价格包您满意!
售楼处每天看房的人特别多!
项目介绍:
观城项目可以说是鸿荣源在龙华继壹成中心后的又一大巨无霸项目。项目开发建设用地面积379994.5平方米,计容积率建筑面积为2750960平方米(一期的总建面超300万平)。
项目共9个地块总建面超190万平,住宅面积将近有97.8万㎡!共有约住宅9674套住宅(保障性住房2506户)。从目前公示的地块来看,观城还有小半的地块的规划还未公示,由此可见,项目全建成后将可能超过万套住宅!
项目基本信息:
开发商:深圳市嘉创投资有限公司(鸿荣源集团)
物业公司:鸿荣源物业
总占地面积:约2.73万㎡
总建筑面积:约37.41万㎡
容积率:约9.23
绿化率:约32.01%
栋数:5栋住宅
推售户数:1556户
总层高:58-59层
梯户比:4T6户
车位:2020个(车位比1:1.29)
开发商电话:400 880 7297
物业费:5.3元/㎡·月
产权:70年(2023年12月-2093年12月)
房产性质:住宅
交楼时间:2026年12月31日
交楼标准:精装修交楼
面积:88-98-108-117-143㎡3-4房
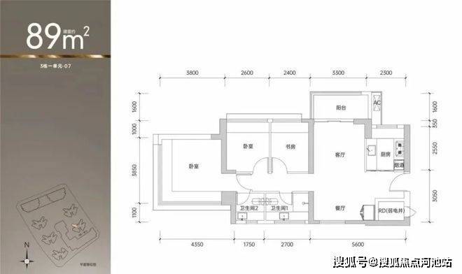
鸿荣源观城户型图欣赏:
样板房照片
1、超大小区,大商业;
2、教育配套完善:项目规划有 3 所幼儿园,还有 1 所 72 班九年一贯制学校,1 所 54 班九年一贯制学校,存在引进名校的可能性。
3、交通:紧邻地铁 4 号线延长线观澜站,距离约 300-500 米,步行 6-8 分钟,周边有多条主干道,如龙澜大道、观光路等,自驾出行便捷。
4、小户型总价较低:有88㎡三房户型,最低336万起。
下面是鸿荣源观城小区内部实景照片:
鸿荣源观城优缺点分析
✔️步行500米到4号线观澜站,未来还有22号线加持,上班通勤不用愁,自驾走龙澜大道也方便~
✔️商业体让人期待!自带20万㎡大商业,据说要打造成观澜版“壹方天地”,以后逛街、聚餐、遛娃在家门口就能搞定,周边还有天虹、百佳华,日常采购超方便
✔️教育不用慌!规划了4所幼儿园+2所九年一贯制学校,要是能引进名校,那真是“目送式上学”福音
✔️户型很能打!得房率高达90%,精装交付省事儿,小户型也做到了通透,空间利用率绝了
✔️开发商靠谱!鸿荣源在深圳的口碑一直在线,物业满意度超90%,住起来放心~
以上所展示的图文就是关于深圳龙华区观澜鸿荣源楼盘最新介绍说明,看完以上内容,如果您对我们楼盘还有任何疑问的话,欢迎联系鸿荣源观城开发商售楼处免费400热线电话:400-880-7297(已认证,中介请勿扰)进行咨询或者安排本楼盘我们楼盘现场销售人员在线为您一对一服务,现场销售人员会把楼盘的新资料、样板间图片视频、通过手机的方式发给您看、您不需要过来楼盘现场都能够了解个大概,还可以了解到本楼盘的优点缺点、房产政策、银行政策、积分入学、都给您讲解的明明白白。现场销售还可以为您对我们楼盘进行全面更详细的介绍,包含项目开盘详情、近期房价、楼层高低、户型朝向分析、最新折扣优惠活动等情况,而且还可以避免中介虚报价格,耽误您的时间和精力,中介所给的优惠我们全都可以给到,让您买的放心,住的舒心!买房是大事,记得及时联系我们。
免责声明:以上展示的关于龙华观澜鸿荣源观城楼盘最新相关图文资料可能有部分来自于互联网,最终信息以在营销中心现场签署的购房合同为准,如以上图片或者文字无意中侵犯某方权益的话,请及时联系我们将配合处理。
声明:本文由入驻焦点开放平台的作者撰写,除焦点官方账号外,观点仅代表作者本人,不代表焦点立场。
