预计6月底开盘!使用率98%!宝安新安【珺悦名都】面积89-115㎡,紧邻深圳大悦城、灵芝地铁口
扫描到手机,新闻随时看
扫一扫,用手机看文章
更加方便分享给朋友
好消息:2025年深圳市宝安新安来新盘了!
继中粮大悦城天悦壹号、万科大都会之后,据了解,珺悦名都即将入市,计划五一开放营销中心。目前建设已出地面10层左右。珺悦名都预计在6-7月开盘,此次开盘推出的包括65㎡小两房和87㎡三房,吹风价7.5左右每平㎡,总价500万左右,甚至可能有4字头的,可以说是宝安灵芝地铁口最低上车盘!
如需了解本楼盘更多详情,欢迎来电咨询珺悦名都开发商售楼处免费400咨询/预约电话:400-880-7297(已认证)中介请勿扰,因近期参观的人员太多,本项目营销中心暂不接受临时到访,为不耽误您的行程,过来楼盘现场参观样板房请务必记得提前来电预约,预约看房的话最终房价还能更加优惠,包您满意!
项目介绍
珺悦名都项目位于深圳市宝安区新安街道25区前进一路创业二路。总占面约1.13万㎡,总建面约14万㎡,规划包括办公、住宅、商务公寓、商业等多元业态。
珺悦名都项目紧邻地铁5号线、12号线灵芝站,周边配套完善,片区属于宝安老城区新安片区,早期旁边的中粮大悦城,万科大都会都是卖10万左右,这里去宝中很近,地铁两个站就到,目前小学所划片的学区为建安小学、文汇学校(小学部);初中划片的学区为新安中学(集团)初中部、孝德学校(初中部),楼下还有一所九年一贯制的裕安学校,户型信息暂未公布,感兴趣的宝子们可以持续关注。
珺悦名都户型图欣赏:
89㎡的3房2厅2卫,A户型(1栋1单元06户型),设计的是经典竖厅格局,进门入户玄关,LDKB一体化,S墙设计预留冰箱卡槽位,三开间朝南,动静分区,主卧双面大飘窗,客厅连接次卧出5.6米长的观景阳台,U型厨房,公卫三段式分离,东南朝向。
89㎡的3房2厅2卫,B户型(1栋1单元07户型),设计的是横厅南北通透格局,进门入户玄关,客餐厅5.2米开间,LDKB一体化,S墙设计预留冰箱卡槽位,三开间朝南,主卧+1个次卧双面大飘窗,客餐厅出5.2米宽景阳台,U型厨房,公卫三段式分离,阳台主朝西北向。
89㎡的3房2厅2卫,C户型(2栋1单元02/05户型),设计的是经典竖厅格局,进门入户玄关,LDKB一体化,S墙设计预留冰箱卡槽位,三开间朝南,动静分区,二字型厨房还带1个生活阳台,卫生间干湿,西南朝向,靓点是最小的次卧没有飘窗。
89㎡的3房2厅2卫,D户型(2栋1单元03户型),设计的是经典竖厅格局,进门入户玄关,LDKB一体化,S墙设计预留冰箱卡槽位,三开间朝南,动静分区,二字型厨房还带1个生活阳台,卫生间干湿,西南朝向,靓点是最小的次卧没有飘窗,跟C户型基本一致。
89㎡的3房2厅2卫,E户型(2栋1单元04户型),设计的是经典竖厅格局,进门入户玄关,LDKB一体化,S墙设计预留冰箱卡槽位,三开间朝南,动静分区,二字型厨房还带1个生活阳台,卫生间干湿,西南朝向,跟89平的BC户型区别是厨房的生活阳台要小一点。
115㎡的4房2厅2卫,A户型(1栋1单元05户型),设计的是经典竖厅格局,进门入户玄关,LDKB一体化,S墙设计预留冰箱卡槽位,四开间朝南,动静分区,主卧双面飘窗,客厅连接次卧出6.2米长的巨幕大阳台,U型厨房,公卫三段式分离,东南朝向,靓点是2个最小的次卧都不用睡飘窗。
115㎡的4房2厅2卫,B户型(2栋1单元01/06户型),设计的是竖厅格局,进门入户玄关,LDKB一体化布局,三开间朝南,动静分区,客厅连接次卧出阔景大阳台,U型厨房,公卫三段式分离,西南朝向,靓点是端头位可以做到南北通透。
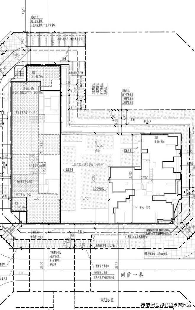
2024年1月,深圳市宝安区城市更新和土地整备局公布新安街道珺悦名都(A007-0585、A007-0586)两地块《建设工程规划许可证》及总平面图的通告。
项目分为01、02地块,共规划377套住宅。
其中,01地块,总建筑面积68599.02平方米,住宅面积15210平方米,总户数203户(商品住宅70户,保障性住房116户,回迁房房17户)。
02地块,总建筑面积71414.13平方米,住宅面积16950平方米,商业2031平方米,总户数174户。
珺悦名都(宗地号:A007-0585)
01地块总建筑面积68599.02平方米,住宅面积15210平方米,商业1744平方米,总户数203户(商品住宅70户,保障性住房116户,回迁房房17户),新建1栋建筑,含一单元31层住宅楼及二单元37层办公楼。
珺悦名都(宗地号:A007-0586)
02地块(宗地:)A007-0586,总建筑面积71414.13平方米,住宅面积16950平方米,商业2031平方米,总户数174户,新建1栋建筑,含二单元31层住宅楼及二单元30层办公楼。
中南珺悦名都落位于宝安新安,因满足“一步到位”的地理位置和配套环境吸引了全城的关注。
配套示意图
1
地铁5号线/12号线,交汇灵芝站,2站即达宝中,5站直达前海湾站,12号线起于蛇口左炮台站,串联蛇口、南山中心区、宝安中心、航空城、大空港,多维立体通达湾区各地,让生活从容优雅。
示意图
2
除了交通畅达,周边的商业设施也十分完备——
中粮集团于深圳宝安开发的深圳首个,也是华南首个大悦城综合体距离万科大都会非常近,这个规划建面约78万㎡的综合体与壹方城和海雅缤纷城,共同形成宝安三大商业地标
除了大悦城,距离项目约3公里范围内(数据参考自百度地图,以实际距离为准)还有建面约6万平的中洲πmall、约4.5万平的勤诚达K+广场、约19.8万平的海雅缤纷城、约36万平的壹方城等近百万体量的商业资源。
3
另外在文娱设施上,深圳西部最大的市政公园——宝安公园、面积约12万方的艺术生态公园——灵芝公园,以及流塘公园、洪浪公园、上川公园、新安公园,都在项目周边3公里范围内。
周边配套示意图
教育上,项目旁边就是裕安中小学,周边还有新安中学(宝安区教育局直属)、孝德学校(九年一贯制创新型)、建安小学(省一级)等优质教育。
珺悦名都楼盘优劣势分析
优势:
1、项目所处的交通优势明显,紧邻地铁5号线、12号线灵芝站,步行距离仅200米,2站直达南山,与宝安中心区、前海自贸区形成高效通勤圈。
2、项目周边3公里内聚集中洲πMall、海雅缤纷城、壹方城等超百万平方米商业体,商业配套较为齐全;灵芝公园就在大悦城对面,在项目步行范围之内。
3、教育方面,除了自带18班幼儿园,学区覆盖文汇学校(小学部)和裕安学校(九年一贯制),后者与项目仅一墙之隔,实现“目送式上学”。
看完以上介绍,如需了解更多关于我们楼盘最新消息、剩余房源以及楼层、这几天房价优惠活动、在卖的户型等情况,欢迎来电咨询珺悦名都开发商售楼处全国免费400咨询/预约电话:400 880 7297(已认证)中介请勿扰。
温馨提示:因近期本项目营销中心来访的看房客户较多,过来营销中心参观样板间采取预约制,为不耽误您的行程,过来营销中心现场看房请务必记得提前拨打售楼处400电话来电进行预约一下,预约看房价格还可以享受更多开发商内部优惠,名额有限千万不要错过,感谢您对我们工作的支持和配合,在此恭候您大驾光临实地品鉴。
免责声明:以上展示的关于宝安珺悦名都图文资料可能有部分来自于网络,一切信息以最终在现场签署的购房合同为准,如图文内容无意中侵犯某方权益的话,请及时联系我们将配合处理。
声明:本文由入驻焦点开放平台的作者撰写,除焦点官方账号外,观点仅代表作者本人,不代表焦点立场。
