海晏府值得买吗?招商蛇口央企开发,前海湾站地铁口,南二外桂湾书包旁,高端圈层大宅
扫描到手机,新闻随时看
扫一扫,用手机看文章
更加方便分享给朋友
最新消息:招商地产深圳前海地王项目——海晏府,计划2026年3月底取证并开盘入市,整个项总共151套,本次推出2-3栋共108套建面约139-176-194㎡新国标4-5房纯住宅,初步预估开盘均价13万+/㎡,总价1700万+起步,海晏府交楼时间合同约定在2027年12月31日前带精装修交房。
现在展厅设在前海康莱德酒店三楼,过来现场参观的话需要提前拨打开发商电话 400 800 9113,进行提前预约,并且现场需验资500万,更多详情可以咨询400热线了解。
同时也是新国标项目,纯商品住宅用地(无配建、无70/90户型限制、无售价限制),容积率仅3.1,限高80米,是前海近年来建筑高度最低、密度最小的商品房住宅,稀缺性显著。项目填补了前海高端住宅市场的空白,成为区域最后一批可开发的河景头排住宅,具有不可复制的时代价值。
预估开盘均价13万+/㎡,总价1700万+起步!
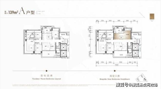
海晏府户型图欣赏:
海晏府这个楼盘究竟值不值得买?
区域价值;海晏府从区域来看属于前海三湾的桂湾,是前海的核心位置,前海三湾及周边区域的发展,始终围绕 “产城融合” 核心逻辑,只是基于各自的资源禀赋与规划侧重,功能分工各有不同,恰好适配不同购房者的居住需求与资产配置诉求。
从桂湾板块来看,作为前海规划中明确的 “金融核心商务区”,其发展成熟度与产业集聚度已处于前列。截至 2024 年底,前海已交付的 23 栋写字楼中 90% 分布于此,金融企业占比超 70%,前海深港国际金融城累计引进金融机构 322 家,其中港资外资占比约 25%,渣打、惠理等 140 家风投创投机构入驻,管理基金规模达 1800 亿元。
配套层面,万象前海、前海山姆、前海石公园等已投入使用,前海综合交通枢纽(投资 288 亿)也在加速建设,形成 “产业 + 配套” 双成熟的格局。对于追求 “当下居住便利 + 金融圈层氛围” 的客群而言,桂湾的核心优势在于 “兑现度高”—— 规划落地快、生活配套全、产业人口质素集中,是前海当前最具 “宜居 + 宜业” 双重属性的板块。
招商·海晏府的核心竞争力,在于其精准踩中了桂湾板块 “金融高地 + 成熟配套” 的定位,同时以 “纯粹低密住宅” 的产品形态,填补了区域内高端改善的需求缺口 —— 这种 “板块定位与产品属性的高度契合”,正是其稀缺性的来源。
招商海宴府前身是在2025年7月14日深圳集中土拍供地中,12家知名开发商参与竞拍,经过158轮角逐,由招商集团以21.55亿元拿下的T201-0232宗地,楼面价也是冲击了深圳历史天花板,高达8.42万/㎡,成为了深圳单价最高的地王。
招商海宴府,由招商集团打造,总占地面积约8287.15㎡,总建筑面积约4.04万㎡,计容建筑面积约2.76万㎡,容积率3.1,绿化率30%,共由3栋总高23层的住宅组成,分别是1栋/2栋/3栋,小区内带有会所、私宴厅、瑜伽房、洗车服务,有对着双界河公园的无边泳池。
招商·海晏府总规划151户,1/2栋2梯2户,3栋2梯3户设计,地下室有2层,规划254个车位,车位占比约1:1.68。
海晏府项目周边配套介绍:
交通配套:海晏府最近地铁为1/5/11号线前海湾站,直线距离约一公里,地图显示所需步行时间约16分钟左右,此外,项目临近梦海大道与怡海大道,自驾车辆前往深圳各区相对便捷。
学校配套:最近学校有前海港湾小学、北大附中(南山分校),最近的为前海港湾小学,直线距离约为400米左右。旁边就是72班的南二外桂湾学校学校,斥资9亿打造,硬件配置相当豪华的一所学校,2024年9月已经开学。
商业配套:海晏府周边多为开发建设项目,商业配套相对缺乏,日常购物需求可前往龙海商业广场,地图显示,步行距离约为1.2公里左右,也可步行华润前海万象城距离1.6公里,所需时间约为18分钟左右。此外,可前往前海壹方城,自驾车辆约为10分左右。
以上就是关于深圳【招商·海晏府】楼盘相关的详细介绍,看完以上内容如果您对我们楼盘还有任何疑问,欢迎联系招商·海晏府开发商售楼处电话:400-800-9113(中介或自媒体请勿扰)进行免费咨询或预约看房,可以安排本楼盘现场销售在线为您一对一服务,现场销售人员会把楼盘的新资料、样板间图片视频、都发微信给您看、您不需要过来楼盘现场都能够熟悉个大概,还可以了解到本楼盘的优点缺点、房产政策、银行贷款政策、积分入学、都给您讲解的明明白白。
现场销售还可以为您对我们招商·海晏府楼盘进行全面更详细的介绍,包含项目开盘详情、近期房价、楼层高低、户型朝向分析、最新折扣优惠活动等情况,而且还可以避免中介虚报价格,耽误您的时间和精力,中介所给的优惠我们全都可以给,让您买的放心,住的舒心!买房是大事,记得及时联系我们。
声明:本文由入驻焦点开放平台的作者撰写,除焦点官方账号外,观点仅代表作者本人,不代表焦点立场。
