深圳财富城二期位置在哪,备案价格,交楼时间,停车位,得房率,楼间距,户型尺寸图

搜狐焦点河池站 2025-10-06 14:43:00
用手机看
扫描到手机,新闻随时看

扫一扫,用手机看文章
更加方便分享给朋友

财富城2期,位于坪山区高铁新城金丰路与和安路交汇处西侧,地处坪山核心区域,是坪山区最顶流的居住区,像大东城、万科金域缇香、招商花园城、深城投中心公馆、财富城1期、和城里等楼盘都是位聚于此,这里也拥有最完善的市…

最新消息:深圳坪山新楼盘【财富城二期·弘德苑】单价2.5万起!

财富城二期价格(预约看房以下价格还可以更便宜!)

75m²三房总价188万~218万

89m²三房总价250~275万

105m²四房总价306~326万

120m²四房总价342~358万

140m²五房总价503~522万

如需了解本楼盘更多详情,欢迎来电咨询深圳坪山财富城二期开发商售楼处免费400咨询/预约电话:400-811-3080(已认证)中介请勿扰,因近期参观的人员太多,本项目营销中心暂不接受临时到访,为不耽误您的行程,过来楼盘现场参观样板房请务必记得提前来电预约,预约看房的话最终房价还能更加优惠,最终价格包您满意!

财富城二期这个楼盘究竟值不值得买?

1、项目区域及楼盘介绍

财富城2期,位于坪山区高铁新城金丰路与和安路交汇处西侧,地处坪山核心区域,是坪山区最顶流的居住区,像大东城、万科金域缇香、招商花园城、深城投中心公馆、财富城1期、和城里等楼盘都是位聚于此,这里也拥有最完善的市政配套,类似于坪山中心公园,坪山大剧院,坪山美术馆,坪山图书馆,坪山文化聚落,坪山区政府,坪山游泳馆等都在项目900米范围内。

财富城2期,总占地面积约4.54万㎡,总建筑面积约35.8万㎡,共分为3个地块开发,分别为财富城弘德苑财富城明德苑财富城育德苑共由9栋13座住宅组成,总规划2538户,其中商品房2222套(包含回迁房,具体套数暂不明确),保障性住房316套,停车位2654个,车位占比1:1.04。

本次首推的是财富城弘德苑,总占地面积约2.16万㎡,总建筑面积约18.1万㎡,计容建筑面积约14.2万㎡,容积率6.58,绿化率35%,共规划5栋6座32-54层高的住宅,其中1栋A座住宅52F,1栋B/C/D座住宅54F,1栋E/F座住宅32F,规划有7050㎡商业。

总规划1207户,其中可售商品房613套,回迁房594套,1栋A/B/C座都是3梯5户,1栋D座3梯4户,1栋E座2梯4户,1栋F座2梯5户设计,地下2层,规划停车位1268个,车位占比1:1.05。

财富城明德苑,总占地面积约1.18万㎡,总建筑面积约9.89万㎡,计容建筑面积约7.64万㎡,容积率6.45,绿化率35%, 共规划2栋4座32-54层高的住宅,其中1栋A/B座住宅32F,1栋C/D座住宅54F,规划有4950㎡商业。

总规划682户,地下2层,规划停车位732个,车位占比1:1.07。

财富城育德苑,总占地面积约1.2万㎡,总建筑面积约7.8万㎡,计容建筑面积约5.48万㎡,容积率4.72,绿化率35%, 共规划2栋3座26-48层高的住宅,其中1栋A座住宅48F,1栋B座住宅42F,2栋住宅26F,规划有3000㎡商业。

总规划649户,其中保障性住房316套,地下2层,规划停车位564个,车位占比1:0.87。

2、项目平面图

3、项目户型及价格介绍

财富城2期计划在今年11月份取证入市,将推出613套房源!面积有75㎡的3房1卫,89㎡的3房2卫,105-120㎡的4房2卫,140㎡的5房2卫户型,旁边2021年10月份入市的华侨城和城里,备案均价4.18万/㎡,不过按照当前的市场行情,财富城2期大概率开盘折后均价约3.5万/㎡,像75㎡的3房,总价预计在250万左右,计划在2026年6月份简装交房。

财富城2期本身计划是要在2025年再拿出来卖的,现在随着市场好转,又改变了营销节点,目前楼盘营销中心已经开放,样板房计划在这个月底会做好,该楼盘也是目前整个坪山区域最核心的地段唯一在售的新盘,关注热度很高,另外一个华侨城和城里已经是尾货在卖。

75㎡的3房2厅1卫,设计的是竖厅格局,客厅3.05米开间,3个卧室分别是3.1/2.85/2.25米的宽度,L型厨房,带1个小生活阳台,卫生间三段式分离设计,得房率约:76%(不含赠送),西南及西北朝向。

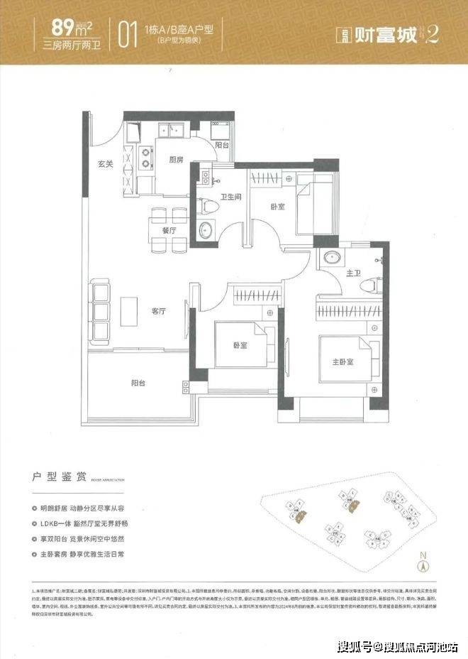
89㎡的3房2厅2卫,设计的是经典竖厅格局,客厅3.29米开间,3个卧室分别是3.3/2.8/2.5米的宽度,L型厨房,带1个小生活阳台,得房率约:76%(不含赠送),西南、东南及东北朝向。

105㎡的4房2厅2卫,设计的是竖厅南北通透格局,客厅3.5米开间,全屋飘窗双阳台设计,4个卧室分别是3.25/2.85/2.6/2.1米的宽度,U型厨房,得房率约:76%(不含赠送),阳台主朝西南向。

120㎡的4房2厅2卫,设计的是竖厅南北通透格局,双阳台设计,客厅3.6米开间,4个卧室分别是3.2/3.2/2.75/2.75米的宽度,U型厨房,得房率约:76%(不含赠送),阳台主朝东南、西北、东北向。

140㎡的5房2厅2卫,设计的是竖厅双龙抱珠格局,客厅4米开间,四开间朝南,4个卧室分别是3.55/2.95/2.95/2.7米的宽度,L型厨房,带1个小生活阳台,得房率约:76%(不含赠送),西南、东南朝向。

4、项目周边配套

学校配套:根据2024年坪山教育局最新的学区划分,财富城2期所属片区,小初学区属于坪山实验学校+东北师范大学深圳坪山实验学校的大学区范围内,采取学位类型、后积分,再按平行志愿录取方法。

坪山实验学校在近年来一直都是属于坪山NO.1的学校,该校成立于2010年,如今已经有北、南、东三个校区,是一所九年一贯制学校,在2023年秋季总开设163个教学班,在校生有7600多人,并在2022年8月份正式成立教育集团。

东北师范大学深圳坪山实验学校,该校于2021年9月正式开学,是东北师范大学与深圳市坪山区政府携手打造的九年一贯制公办学校,规划招收114个教学班,提供5400个学位,目前已有1-5年级34个教学班,7-9年级18个教学班,学生合计人数2267名。

交通配套:财富城周边的交通网络极为方便,14/16/19号共3条地铁线环绕,还有坪山云巴、深惠城际大鹏支线、深大城际包括高铁线路,其中最近的19号地铁线“坪山剧院站”距离约230米。

14号地铁线“坪山广场站”距离约400米,该线路设计时速120公里,6站到龙岗大运,11站到布吉,12站到罗湖,14站到福田岗厦北,从坪山广场站-福田岗夏北车程50分钟;

16号地铁线“新和站”距离约650米,该线路是通往龙岗大运的普线,设计时速80公里;

坪山云巴1号线“站前路东站”距离约700米,该线路是从坪山比亚迪开往坪山高铁站的一条内部线,目前已经开通运营。

坪山高铁站距离约1.8公里,设计时速250公里,20分钟直达深圳北站,1个小时直达香港西九龙。

深大城际(深圳段)起自深圳市宝安机场T4站,途经宝安区、龙华区、龙岗区,终至坪山区聚龙站,线路全长约69.2km。线路设计时速为160km/h。

全线设地下站11座,分别为:机场T4、机场东、黄麻布、石岩中心、龙胜、民治北、五和、白泥坑、大运、坪山、聚龙。

深惠城际大鹏支线起自深圳龙岗区龙城站,途经龙岗、坪山,止于大鹏新区新大站,线路全长约 39.4 km。线路设计速度为 160 km/h,预计 2026 年建成通车。全线设 6 座车站,龙城、坪山、燕子湖、葵涌、大鹏、新大。设新大存车场。作为粤港澳大湾区城际铁路网络的重要组成部分,大鹏支线也是深圳“东进战略”的强力支撑。

商业配套:项目自带有1.5万㎡底商,相隔200米的财富城1期有天虹商场购物中心,约700米有坪山首座万象城(在建),也是深圳第三座万象城,总占地面积30公顷,规划商业规模超12万平方米,其中集中商业9万平方米,街区商业3万平方米,该项目建成后将成为集购物,娱乐,文化,餐饮和社交于一体的城市综合体。

项目总结

1,财富城二期,最大的优势主要是学区优势(坪山实验),三个校区环绕,坪山实验有七千五百个学位,一百六十五个班,是坪山高起点,高质量的,九年一贯制学校。

2,财富城二期分为三个地块,共十三栋,首开的弘德苑有六栋,属于中大型的小区,车位比超过一比一,七十五平方可以做三房,一百零五平方可以做四房两卫不显拥挤,阳台有二点五米进深,户户都是双阳台设计。

3,项目属于坪山核心区域,周边有众多高品质楼盘聚集,16号线,14号线,在建的19号线,三个第地铁站都在八百米范围内,坪山中心公园,坪山大剧院,等等问题设施都在九百米内,天虹商场三百米内,益田假如广场一点五公里左右,品质,商业,交通,学区,都是顶级的。

看完以上图文介绍,您如果想要了解更多关于我们深圳坪山财富城二期楼盘最新消息、当前剩余房源、这几天楼盘现场折扣优惠活动、近期周边房价走势、银行相关利率政策等情况的话,欢迎来电咨询财富城楼盘开发商售楼处免费400咨询/预约热线电话:400-811-3080(已认证)中介勿扰。

温馨提示:因本项目营销中心参观样板间采取预约制,为不耽误您的行程,过来营销中心现场看房前请务必记得提前来电预约,预约看房的话享受的优惠折扣比直接上门更多,最终成交价格也会更加划算,在此真诚感谢您对我们工作的支持和信赖,恭候您大驾光临。

免责声明:以上展示的关于深圳财富城楼盘最新相关的最新图文资料可能部分来自网络,具体细节以最终签署的购房合同为准,如无意存在侵犯某方权益请及时联系我们处理。

声明:本文由入驻焦点开放平台的作者撰写,除焦点官方账号外,观点仅代表作者本人,不代表焦点立场。