万丰海岸城·檀府;深外学校,西部改善王牌┃93㎡做通透四房两卫!
扫描到手机,新闻随时看
扫一扫,用手机看文章
更加方便分享给朋友
最新消息:深圳宝安沙井百万大城【万丰海岸城】全新产品【檀府】已开始诚意登记,2025年10月25日开盘!
首推3栋1单元、3栋2单元,共约440套新规89-91-93-103-121㎡3-4房,125-139-169㎡4-6房。
折后均价公布,3栋1单元均价4.98万,3栋2单元均价5.34万,折后均总价在412-944万!
89-91㎡3房:单价约4.6万;93-103-121㎡4房:单价约5.15万;
125㎡4房:单价约5.2万;139㎡5房:单价约5.4万,169㎡6房:单价约5.6万。
价格仅供参考,看房提前来电预约还可以更便宜!
项目户型和房价对应示意图如下
如需了解本楼盘更多详情,欢迎来电咨询深圳万丰海岸城开发商售楼处免费400咨询/预约电话:400-880-7297(已认证)中介请勿扰,因近期参观的人员太多,本项目营销中心暂不接受临时到访,为不耽误您的行程,过来楼盘现场参观样板房请务必记得提前来电预约,预约看房的话最终房价还能更加优惠,最终价格包您满意!
下面是我们海岸城项目营销中心现场实拍照片:

万丰海岸城交楼时间约定在2028年12月带简装交付。项目外观:铝板、石材、玻璃幕墙,高端配置,新桥片区品质标杆。
檀府相比于万丰海岸城离地铁更近仅300米!同样享受深圳外国语宝安学校学区!本次推售是新规户型。
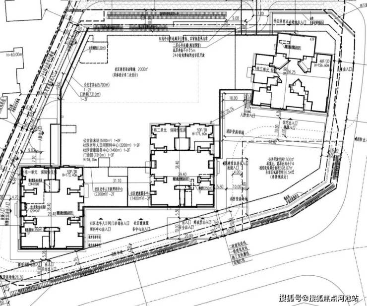
项目区域及楼盘介绍
万丰海岸城,位于宝安区沙井新桥街道内,11号地铁线“马安山”,项目紧邻地铁11号线马安山站东侧约300米,处于深圳"西部城市中心"规划的核心区域。

万丰海岸城檀府,由海岸城集团开发打造,该项目共分2个地块打造,总占地面积约3.64万m²,总建筑面积约36.24万m²,计容建筑面积约26.37万m²,总规划2494户,其中商品房1390套,保障房1104套,共由7栋总高45-53层的住宅组成,总车位1975个,车位占比1:0.79。
这次首推的万丰海岸城檀府A313-1568地块,总占地面积约1.89万㎡,总建筑面积约17.95万㎡,计容建筑面积约12.87万㎡,容积率6.79,绿化率40%,共由4栋45-47层高的住宅组成,其中2栋1单元住宅47F,2栋2单元住宅45F,3栋1单元住宅45F,3栋2单元住宅46F,4栋是1所12班制幼儿园。
总规划1098户,这次首推的3栋2单元是楼王单位,3梯4户设计,3栋1单元3梯7户设计,地下室有3层,规划1309个车位,车位比1:1.19,其中充电车位393个,占比30%

南地块(01-02),建设用地面积1.75万㎡,总建筑面积18.28万㎡,计容建筑面积13.51万㎡,容积率7.72。
规划建设3栋(48-53层)超高层住宅,总户数1396户,其中保障房1104户,普通商品房住宅292户,机动停车位1411个。
本次推售的万丰海岸城檀府(北地块),总占地面积约1.89万㎡,总建筑面积约17.96万㎡,计容建筑面积约12.87万㎡,容积率6.79,绿化率40%,共由4栋46-47层住宅组成,其中3栋1单元/2栋2单元商品房45层,3栋2单元商品房46层,2栋1单元47层,规划1所12班幼儿园。
项目总规划1098户,停车位1309个。
01地块基础信息

基本指标:占地约1.89万㎡,
建面约17.9万m
户型面积:约89-169㎡3-6房
住宅户数:约1100户
容积率约:6.79
梯户比为:3T7/3T4
车位比约:1309个,超1:1楼栋
开发商电话:400 880 7297
层数:45-46F
绿化率约:40%
开发商为:深圳市海岸新城投资有限公司
物业费为:5.5元/平/月
万丰海岸城檀府平面图及户型图

89㎡的3房2厅2卫,设计的是竖厅格局,客厅3.375米开间,LDKB一体化,S墙设计预留冰箱卡槽位,三开间朝南,动静分区,U型厨房,公卫三段式干湿分离,得房率约95%(包含赠送),阳台5.9m²西南朝向。赠送面积约14.69m²。

91㎡的3房2厅2卫,设计的是竖厅格局,客厅3.35米开间,LDKB一体化,S墙设计预留冰箱卡槽位,动静分区,U型厨房,公卫干湿分离,得房率约94%(包含赠送),阳台5.7m²东北朝向。赠送面积约11.27m²。
01

02

93㎡的4房2厅2卫,设计的是竖厅南北通透格局,客厅3.35米开间,餐客厅分离设计,四开间朝南,U型厨房,卫生间干湿分离,得房率约104%(包含赠送),阳台5.86m²主朝西南向。赠送面积约21.43m²。
103㎡的4房2厅2卫,设计的是竖厅格局,客厅3.65米开间,LDKB一体化,S墙设计预留冰箱卡槽位,动静分区,U型厨房,公卫干湿分离,得房率约99%(包含赠送),阳台6.2m²东北朝向。赠送面积约17.28m²。
01

02

121㎡的4房2厅2卫,设计的是经典竖厅格局,客厅3.75米开间,LDKB一体化,S墙设计预留冰箱卡槽位,动静分区,四开间朝南,主卧270°无柱转角飘窗,U型厨房,公卫三段式干湿分离,得房率约100%(包含赠送),客厅连接次卧出6.52米长的观景大阳台约11.42m²东南朝向。赠送面积约20.41m²。
125㎡的4房2厅2卫,设计的是经典竖厅格局,客厅3.75米开间,LDKB一体化,S墙设计预留冰箱卡槽位,动静分区,四开间朝南,主卧270°无柱转角飘窗,U型厨房,公卫三段式干湿分离,得房率约100%(包含赠送),客厅连接次卧出6.52米长的观景大阳台约11.42m²东南朝向。赠送面积约20.41m²。
01

02

139㎡的5房2厅2卫,设计的是横厅南北通透格局,客餐厅6.25米开间,LDKB一体化,全屋12面飘窗,U型厨房,公卫三段式干湿分离,得房率约100%(包含赠送),客厅连接次卧出6.8米长的观景大阳台约11.9m²东南朝向。赠送面积约29.47m²。
169㎡的6房2厅2卫,设计的是竖厅南北通透格局,独门独户,赠送私用公区走道,客厅4.15米开间,餐客厅分离设计,五开间朝南,U型厨房,公卫三段式干湿分离,得房率约100%(包含赠送),7.05米长的超大观景阳台约12.33m²主朝东南向。赠送面积约31.69m²。
01

02


以上所展示的图文就是关于深圳宝安万丰海岸城楼盘最新介绍说明,看完以上内容,如果您对我们万丰海岸城还有任何疑问的话,欢迎联系万丰海岸城开发商售楼处免费400热线电话:400-880-7297(已认证,中介请勿扰)进行咨询或者安排本楼盘我们楼盘现场销售人员在线为您一对一服务,现场销售人员会把楼盘的新资料、样板间图片视频、通过手机的方式发给您看、您不需要过来楼盘现场都能够了解个大概,还可以了解到本楼盘的优点缺点、房产政策、银行政策、积分入学、都给您讲解的明明白白。现场销售还可以为您对我们楼盘进行全面更详细的介绍,包含项目开盘详情、近期房价、楼层高低、户型朝向分析、最新折扣优惠活动等情况,而且还可以避免中介虚报价格,耽误您的时间和精力,中介所给的优惠我们全都可以给到,让您买的放心,住的舒心!买房是大事,记得及时联系我们。
免责声明:以上展示的关于深圳万丰海岸城楼盘最新图文资料可能有部分来自于互联网,最终信息以在营销中心现场签署的购房合同为准,如以上图片或者文字无意中侵犯某方权益的话,请及时联系我们将配合处理。
声明:本文由入驻焦点开放平台的作者撰写,除焦点官方账号外,观点仅代表作者本人,不代表焦点立场。
