光明科学城新房【满京华·金硕和府、华府】总价360万起,约89-157平精装3-4房
扫描到手机,新闻随时看
扫一扫,用手机看文章
更加方便分享给朋友
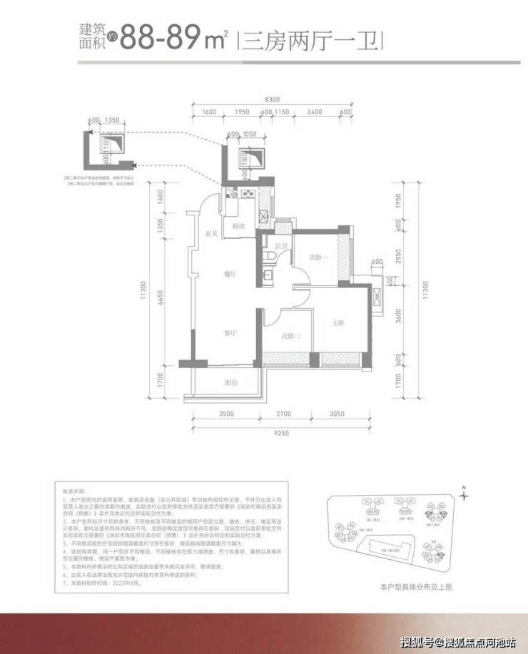
满京华金硕华府项目位于光明区新湖街道佛子坳路与狮明路交汇处东南侧,预推建筑面积为88-141㎡3-4居室。项目位于光明区中心中部,与科学公园隔路相望,视线开阔景色宜人,周边大型展览场馆较多。
Vip Line: 400-811-3080

项目简介
满京华金硕华府利益统筹项目位于光明科学城核心区块,地块原为狮山工业园区,是光明区8个土整利益统筹试点项目之一,是光明中心区建设的重要组成部分。总用地面积约10.9万㎡,7个地块已同时动工,是个超大体量的改造项目,非常让人期待。项目位于光明中心区中部,与科学公园隔路相望,视线开阔景色怡人,周边紧邻科技创新文化集群,如科学岛、科技馆新馆、西方美术馆等。

项目位于6号线光明站、光明大街站1公里辐射范围内,交通便利,北面是规划中的光明新城市“绿肺”——科学公园。
配套情况
交通:周边还分布有地铁6号线的光明、科学公园和楼村三个站点,距离约1公里左右,规划有另一条直达南山科技园的29号线,轨道交通便利。
教育:
整个项目配建有3所幼儿园,其中一期的金硕华府配建为12班幼儿园;
此外项目西侧和南侧规划为两宗教育用地,将建36班九年一贯制学校和36班中学(具体以最终规划公示为准)。
项目东侧在建一所小学(狮山小学),周边还有东周小学、光明小学、华师大附属光明星河小学、修远小学、深圳小学光明曙光学校等;项目南侧规划一所初中,区域内还有光明中学、华夏中学等;
九年一贯制学校,在区域内有中山大学深圳附属学校、光明区荔园学校(在建)、深圳市教育科学研究院实验学校、深圳实验光明学校、中科院深理工附属实验高级中学等(具体入学以当年区教育局公示为准)。
商业:项目自带商业综合体外,1公里左右还有在建的星河cocopark,以及3公里处还有目前光明最繁华的凤凰城蓝鲸世界,万达广场等大型商业。
休闲:家门口规划有科学公园,占地面积约为208万㎡,公园内规划有科学岛、科技馆新馆、西方美术馆等,未来紧邻科技创新文化集群,待建成后休闲遛弯的好去处。





满京华金硕华府开发商售楼处电话 400-811-3080(中介勿扰)
过来售楼中心看房请提前预约,可尊享内部特惠,价格包您满意!
为您安排楼盘内场专业销售人员一对一接待服务!让你买的放心,住的舒心!
免责声明🔉:
以上所发布的关于楼盘相关图文信息仅供您买房前参考,以上所有关于本楼盘的图文资料及说明请以最终以项目批文及双方在楼盘营销中心现场签署的买卖最终合同为准;本图文内容如无意中侵犯到某方权益,请联系我们将会及时处理。
声明:本文由入驻焦点开放平台的作者撰写,除焦点官方账号外,观点仅代表作者本人,不代表焦点立场。
