深圳中海珑悦理最新房价说明丨中海珑悦理售楼处电话丨中海珑悦理楼盘详情
扫描到手机,新闻随时看
扫一扫,用手机看文章
更加方便分享给朋友
深圳龙华【中海珑悦理】
中海珑悦理条件还不错,算是北站在售新盘里面条件比较好的,没有特别明显的瑕疵,过来营销中心实地看房提前来电预约的话折扣力度比较大,名额有限,先到先得,龙华中海珑悦里开发商售楼处咨询/预约热线:400-811-3080,中介请勿扰。
营销中心实景图如下
工程建设进度实拍
而且超核中心润府没有任何折扣,虽然条件最好,但是性价比稍微低一些。
其次就是中海珑悦理,中海珑悦理就在超核中心润府的旁边,仅一路之隔,位于北站片区C位,并且距离北站更近。
除此之外,中海珑悦里的优势还包括:
第一项目不靠空铁、没有空铁噪音,不像紫云府和保利龙誉旁边就是地铁4号线高架段,有噪音污染。
第二70年产权,不像中洲迎玺虽然便宜,但是是39年产权,另外它(中海珑悦理)也是央企,不像中洲迎玺是民企。
第三户型设计好得房率高,算上赠送,实际得房率超90%左右。
第四3房上车门槛最低,折后530万左右起就可以买88㎡3房2卫,虽然是朝北朝西北,但是价格确实便宜,而且朝北朝西北的景观更好,可以看超核公园。
所以如果大家想买北站片区新盘的话,想要性价比高一点、央企物业又不想有噪音的话,中海珑悦理可以作为首选,而且项目现在折扣力度比较大,拨打开发商电话4008113080预约看房的话可以尊享内部9折多一点,具体需要预约看房才能有哦。
中海珑悦里项目介绍
01 项目基础信息
【项目占地】:约1.2万㎡
【计容总建面】:约7.53万㎡(具体以实测为准)
【绿化率】:40%
【户数】:可售480户住宅
【梯户比】:3T6
【车位数】:地下停车位约为635个
【开发商电话】:4008807297(官方)
【产品面积段】:建面约88-128㎡雅致三至四房
【产权年限】:住宅70年
【物业管理】:中海物业
中海珑悦理项目体量不大,总占地面积约1.2万㎡,建面约7.5万㎡,容积率约6.28,绿化率约40%,共有3栋高层/超高层住宅楼。
其中2栋43层高层商品房,1栋32层租赁住房,商品房共计480套,公租房118套,企业自持的保障性租赁房348套。商品房1栋1单元和2单元为43层,3单元为32层,全部都是3梯6户。
02 户型图鉴赏:
中海珑悦里最大的优势就是户型设计,得房率差不多是在77%左右,算上赠送,实际使用率超90%。所有户型都是LDKB客餐厨一体化设计,并且主次卧配备L型双飘窗,可以最大程度的保证采光和通风。
朝向方面,除了小面积的88㎡,97㎡及以上户型不是朝东就是朝南。
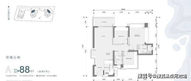
【88㎡3房2厅2卫】:经典的竖厅结构,动静分区。
这个户型最大的亮点就是客厅开间做到了3.6米,主卧开间做到了3.5米,并且还是L型双飘窗,一般只有90平以上的户型才会把开间做到这么大。
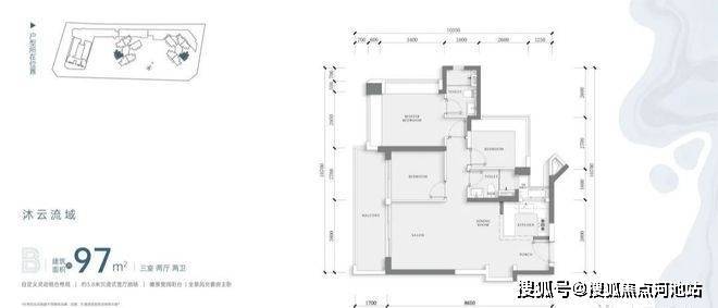
【97㎡3房2厅2卫】:对比88㎡户型,就是空间更大了,居住的舒适度会更大。客厅开间3.8米,另外还有一个6.5米长的双阳台。
【101㎡3房2厅2卫】:客厅开间更大5.1米,LDKB一体化,而且还是三面采光,通风视野都会更好。
【128㎡4房2厅2卫】:算是一个成长型的户型,预算高一点想一次到位的可以去看一下这个户型。
客厅有4米面宽的大方厅、6.8米的大阳台,客餐厨一体设计,实际使用率高达95%,这个使用率在整个龙华的新房市场都是比较罕见的。
03 项目区位
中海珑悦里所在的区位十分优秀,项目位于深圳北站龙华民治街道玉龙路与民塘路交汇处东南侧,属于北站商务区重点辐射范围。
首先,深圳第四区龙华北站超核,位于城市发展轴心,创造超千亿产业价值。龙华区GDP增速快,人口涌入多,发展强劲。北站超级总部基地是深圳发展重心,2023年将价值兑现。数字龙华,集聚3000家国高企业,北站数字经济核心产业总产出超5550亿元。
深圳北站超级枢纽总部基地规划总建面约950万㎡,以高标准缔造,形成多元复合的国际会客厅。规划双芯三谷、城市一体化空间结构,以城市超核为中心,打造全新体验的城市新封面,成就湾区未来枢纽超级地标。
04 项目交通
项目毗邻深圳北站,可直接搭乘4/5/6号线通达全城;通过4号线深圳北站向南抵达福田中心区,或直接换乘地铁5号线到南山、罗湖中心区。
通过北站乘坐高铁,一站直达香港西九龙站,也可以去往全国各地,十分便利。
未来片区还将新添通往南山的27号线(建设中)和深穗城际(规划中)。
05 商业配套
项目对面就是建面约13.4万㎡的创新型“万象商业+游乐式公园”组合的万象系商业,打造创新型公园式商业综合体,汇聚国际一线品牌。
周边还有红山6979、华南首家Costco旗舰店(建设中)等品质商业;北站商圈将打造成为集商业零售、酒店餐饮、休闲娱乐于一体的高品质消费中心。
06教育配套
根据龙华区的学区划分,小学属于龙腾小学,中学属于龙腾学校、玉龙学校和深圳外国语学校(集团)龙华学校3所共享学区内。
此外项目南侧还建设有一所九年一贯制学校,据悉是深圳市格致中学民治校区九年一贯制学校。(积分入学政策,以当年教育局和学校规定为准)
看完以上介绍,如需了解更多关于我们楼盘最新消息、剩余房源、折扣优惠活动、近期房价走势等情况,欢迎咨询深圳龙华中海珑悦里开发商售楼处电话:400-811-3080,中介勿扰。
温馨提示:因本项目营销中心参观样板间采取预约制,为不耽误您的行程,过来营销中心现场看房请记得提前来电进行预约,感谢您对我们工作的支持和配合,恭候您大驾光临。
本项目开发商:深圳市启越房地产开发有限公司(中海旗下)Tel:4008113080(中介勿扰)
本项目备案名:珑悦理家园,推广名:中海珑悦理
免责声明:本宣传资料不构成要约内容,相关信息仅供参考,实际交付标准以《深圳市商品房买卖合同(预售》及补充协议约定、政府最终审批为准。本资料发布日期:2024年3月,后续根据项目实际情况及政府部门要求可能进行调整,本公司保留对宣传资料修改的权利。
本项目预售许可证:深房许字(2023)龙华015号
以上图文资料可能部分内容来自网络,如无意存在侵犯某方权益请及时联系我们,将配合处理。
声明:本文由入驻焦点开放平台的作者撰写,除焦点官方账号外,观点仅代表作者本人,不代表焦点立场。
