臻林悦湾汇-深圳(南山臻林悦湾汇)首页网站-2025最新房价+臻林悦湾汇户型图+小区环境+配套+销售情况
扫描到手机,新闻随时看
扫一扫,用手机看文章
更加方便分享给朋友
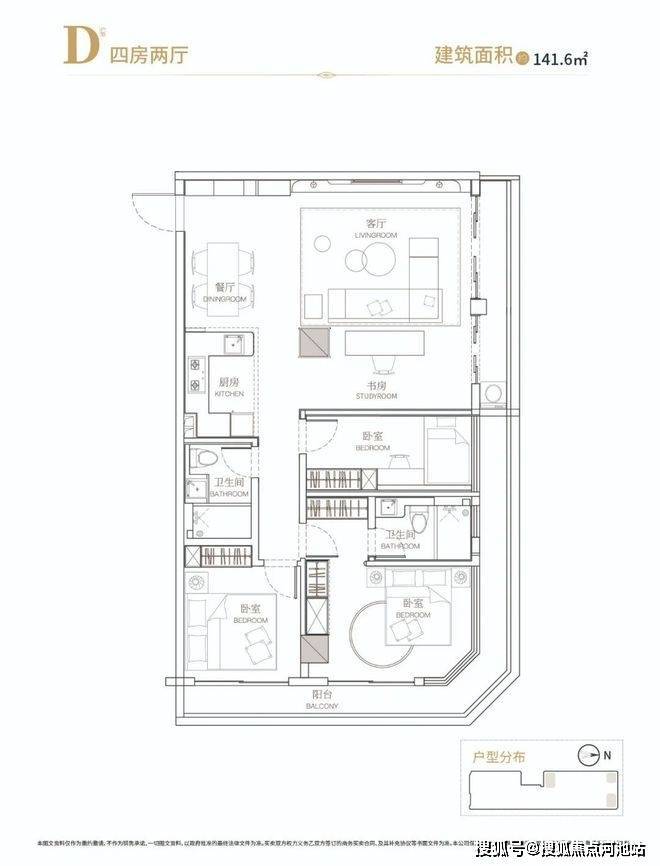
户型品鉴:
项目文体公园
零距离中山公园,是长在公园里的房子,占据约49万㎡恒久城市公园景观。
项目商业配套
华润万象天地、壹方城购物中心、欢乐海岸、华润深圳湾万象城、万象前海、前海山姆会员店旗舰店,尽享国际都市生活圈。
臻林·悦湾汇延请三大国际知名酒店集团,为项目精测收益数据;
1、雅诗阁优选公寓定价预测:预计综合房型平均日租房价为人民币735元/晚
2、洲际行政公寓定价预测:预计综合房型平均日租房价为人民币730元/晚
3、温德姆至尊总裁行政公寓定价预测:预计综合房型平均日租房价为人民币750元/晚
综合各酒店集团预测数据,可取各酒店基于市场的预测价格,得出各房型投资回报率的极致精准数据。
投资回报率ROI=年均收益÷预测均价(6.8w)÷建筑面积
以上就是关于臻林悦湾汇这篇文章的详细介绍说明,看完以上介绍内容,如果您对我们臻林悦湾汇还有任何疑问,欢迎联系臻林悦湾汇开发商售楼处电话:400-811-3080(中介请勿扰)进行咨询或者安排本楼盘现场销售在线为您一对一服务,现场销售人员会把楼盘的新资料、样板间图片视频、都发微信给您看、您不需要过来楼盘现场都能够熟悉个大概,还可以了解到本楼盘的优点缺点、房产政策、银行贷款政策、积分入学、都给您讲解的明明白白。现场销售还可以为您对我们楼盘进行全面更详细的介绍,包含项目开盘详情、近期房价、楼层高低、户型朝向分析、最新折扣优惠活动等情况,而且还可以避免中介虚报价格,耽误您的时间和精力,中介所给的优惠我们全都可以给,让您买的放心,住的舒心!买房是大事,记得及时联系我们。
声明:本文由入驻焦点开放平台的作者撰写,除焦点官方账号外,观点仅代表作者本人,不代表焦点立场。
