满京华.金硕华府!新作震撼登场!85-119㎡三至四房!双名校配套
扫描到手机,新闻随时看
扫一扫,用手机看文章
更加方便分享给朋友
2024年8月10日开盘推出的满京华金硕和府,规划总占地面积约0.88万㎡,总建筑面积7.48万㎡,计容建筑面积约5.28万㎡,容积率5.74,绿化率30.01%,共规划2栋33-49层住宅,其中1栋住宅49F,3梯6户,2栋住宅33F,2梯6户。
最新消息:光明中心区首现100%使用率新盘---满京华金硕和府,建筑新规落地后,现在不止于卷价格,更在卷户型了,85㎡就可以做到三房两卫!刚刚首推2栋186套房源,面积有85-88㎡的3房2厅2卫,110-113-114-119㎡的4房2厅2卫户型,本次备案均价4.71万/㎡,目前折后均价约4.3万/㎡!本期推售产品传使用率约95%,全屋飘窗均可改造!目前已开放展厅及样板间,可预约参观!总价约3字头起可买3房2卫!
如需了解更多详情,欢迎咨询光明满京华楼盘开发商售楼处咨询/预约电话:400-880-7297(已认证)中介请勿扰,过来我们营销中心看房务必记得提前来电预约,预约看房的话最终的价格还能更加优惠。
总规划有458户,全部都是商品房,地下室有3层,停车位505个,车位占比1:1.1。
项目介绍
满京华金硕,前身为光明狮山利益统筹项目,由满京华集团全盘操刀,涵盖有10块用地,总占地面积约10.9万㎡,总建筑面积约32.38万㎡,其中住宅用地有7块,返还用地1块,公共绿化用地2块,住宅用地有:满京华金硕和府,满京华金硕瑞府,满京华金硕臻府,满京华金硕华府,满京华金硕悦府,满京华金硕嘉府。
满京华狮山利益统筹项目一共7个地块,除楼村商业大厦是为商业地块外,其它都是住宅地块,分别为金硕华府、金硕瑧府、金硕瑞府、金硕和府、金硕悦府和金硕嘉府,未来也是科学公园片区主要供应项目。
项目效果图
满京华·金硕和府项目位于光明光辉大道与狮山三街交汇处,6号线光明站D出口约800m,是光明区8个土整利益统筹试点项目之一,是光明中心区建设的重要组成部分。
项目基础信息:
开发商:满京华置业投资有限公司
物业公司:满京华物业管理有限公司
物业管理费:4.3元/㎡
总占地面积:0.88万㎡
总建筑面积:7.48万㎡
容积率:5.74
绿化率:30.1%
产权年限:2023.4-2093.4(70年)
开发商电话 :400 880 7297(官方)
总户数:458户
总栋数及楼高:1栋49F/2栋33F
层高:2.9米
梯户比:1栋3梯6户/2栋2梯6户
停车位:505个(占比约1:1.1)
交房时间:2026年12月底
交付标准:简装
较多数据还未公布,陆续更新中...
88㎡的3房2厅2卫,设计的经典竖厅格局,客厅3.4米开间,LDKB一体化设计,S墙设计预留冰箱卡槽位,3个卧室分别做到了3.55米/2.6米/2.4米的宽度,U型厨房,公卫三段式分离设计,得房率约:95%(包含赠送),阳台进深1.8米,有西南或东南朝向。110㎡的4房2厅2卫,设计的是经典竖厅格局,客厅3.8米开间,进门独立玄关,LDKB一体化设计,S墙设计预留冰箱卡槽位,4个卧室分别做到了3.8米/3.2米/2.55米/2.44米的宽度,U型厨房,公卫三段式分离设计,得房率约:95%(包含赠送),客厅连接次卧出6.2米的大阳台,朝西南向。114㎡的4房2厅2卫,设计的是经典竖厅格局,客厅3.8米开间,进门独立玄关,LDKB一体化设计,S墙设计预留冰箱卡槽位,4个卧室分别做到了3.8米/3.2米/2.55米/2.44米的宽度,U型厨房,公卫三段式分离设计,得房率约:95%(包含赠送),客厅连接次卧出6.2米的大阳台,朝东南向。
目前主体出地面约10层左右,计划在11月份封顶,下面是上个月航拍的照片。
项目户型介绍
85㎡的3房2厅2卫,设计的经典竖厅格局,客厅3.4米开间,LDKB一体化设计,S墙设计预留冰箱卡槽位,3个卧室分别做到了3.55米/2.6米/2.4米的宽度,U型厨房,公卫三段式分离设计,得房率约:95%(包含赠送),阳台进深1.8米,有西南或东南朝向。
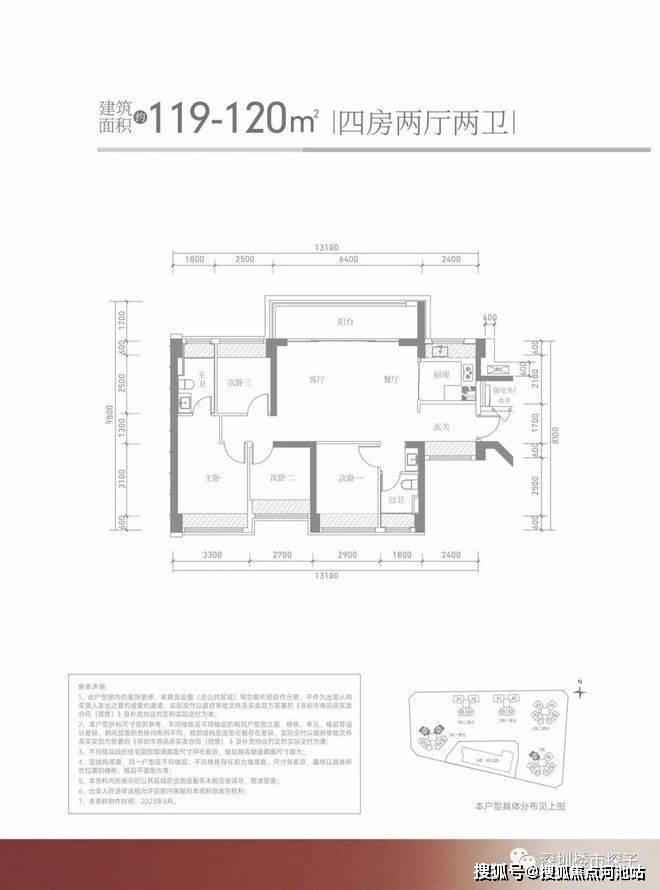
113㎡的4房2厅2卫,设计的竖厅南北通透格局,客厅4米开间,进门独立玄关,4个卧室分别做到了4米/2.8米/2.7米/2.6米的宽度,U型厨房,公卫三段式分离设计,得房率约:95%(包含赠送),阳台主朝西北或东北向,看科学公园景观。
119㎡的4房2厅2卫,设计的竖厅南北通透格局,客厅4米开间,进门独立玄关,4个卧室分别做到了4米/2.8米/2.7米/2.6米的宽度,U型厨房,公卫三段式分离设计,得房率约:95%(包含赠送),阳台主朝西北或东北向,看科学公园景观。
共规划2栋33-49层住宅,其中1栋住宅49F,3梯6户,2栋住宅33F,2梯6户。
满京华项目总平面图
其中:满京华金硕华府仍在销售中
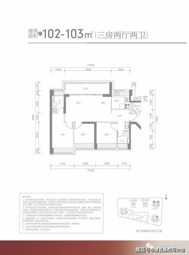
88-100㎡户型
102-141㎡户型
满京华·金硕华府效果图
看完以上介绍,如需了解更多关于我们光明满京华楼盘最新销售情况、住宅剩余楼层、房价优惠活动、户型结构等情况,欢迎咨询满京华金硕和府开发商售楼处咨询/预约电话:400 880 7297(已认证)中介请勿扰。
温馨提示:因近期我们满京华项目营销中心来访的看房客户较多,过来营销中心参观样板间采取预约制,为不耽误您的行程,过来营销中心现场看房请务必记得提前拨打售楼处400免费热线来电进行预约一下,预约看房价格还可以享受更多开发商内部优惠,名额有限千万不要错过,感谢您对我们工作的支持和配合,在此恭候您大驾光临实地品鉴。
免责声明:以上展示的关于光明满京华金硕和府楼盘最新图文资料可能有部分来自于网络,一切信息以最终在现场签署的购房合同为准,如图文内容无意中侵犯某方权益的话,请及时联系我们将配合处理。
声明:本文由入驻焦点开放平台的作者撰写,除焦点官方账号外,观点仅代表作者本人,不代表焦点立场。
