龙华梅林关新楼盘·鹏宸云筑,新规高拓四房 425 万起,87 折后单价 4.75 万起,刚需刚改优选
扫描到手机,新闻随时看
扫一扫,用手机看文章
更加方便分享给朋友
位于深圳龙华梅林关的新楼盘——鹏宸云筑自面市以来,凭借核心区位与产品力,创下“八开八捷”的亮眼成绩。热销势头持续强劲,仅2026年3月单月,便迎来275位新业主选择与鹏宸同行。
这股热销势能,鹏宸云筑楼盘在2026年第一季度迎来高光时刻,连夺三项热销榜单:一举夺得3月深圳网签套数TOP1,荣登第一季度龙华区新房业绩TOP1,跻身第一季度深圳全市销量TOP2。(数据来源:克尔瑞)。
鹏宸云筑与城市同行的价值共识,迎来收官封藏时刻——备受全城瞩目的11栋瞰景楼尊,作为全盘收官压轴之作盛大登场!
这不仅是该纯粹住宅社区最后的瞰景楼王席位,更意味着坐拥城市中轴芯、拥揽稀缺视野、享受“六边形”全能品质生活的最后收藏机会。
深圳龙华·中建鹏宸云筑,位于虽在龙华但靠近梅林关,距离地铁坂田南坑站大概600米左右,地铁4站到福田,教育目前划分华南实验九年制学校、商业自带底商约3500㎡。
如果您还想了解更多关于我们深圳龙华鹏宸云筑楼盘最新消息,欢迎来电咨询鹏宸云筑开发商售楼处全国唯一400官方服务电话:400 811 3080(官方认证·非中介),因本项目营销中心这几天过来现场参观的客户实在太多了,采取预约制,暂不接受临时到访,为不耽误您的行程,过来楼盘营销中心之前请提前来电进行在线预约,感谢您对我们工作的理解与配合,恭候您大驾光临!
鹏宸云筑楼盘最新实拍照片:
项目以岭南名园清晖园为灵感(目前项目仅开放东区园林实景展示,西区园林实景敬请期待),打造“园中有园”的沉浸式园林,规划“山水六境”。从“青染门庭”主入口,到以琉璃桥“小飞虹”和“折桂轩”为核心的中央水院,再到全龄活动空间,步移景异,让归家成为一场放松身心的微旅行。
鹏宸云筑小区内部园林景观:
一石一木,一花一水,皆显东方巧思,赋予归家满满的品质感与仪式感。
入户大堂
交通配套
10号地铁线“南坑站”距离约600米,22号地铁线“横岭站”距离约800米,2站到福田冬瓜岭,4站到岗厦北,6站香蜜湖,7站车公庙。约2.5公里还有深圳最大北站枢纽,快速通达深圳各大区域。
商业配套
中建鹏宸云筑600米范围内有8号仓奥特莱斯,在1.6公里范围内还有龙华印象汇、星河coco city、星河cocopaek,天虹商场等商业综合体,举步即是繁华。
教育配套
项目自带1所12班制幼儿园,北侧规划有一所广东省一级学校建设标准的九年一贯制72班学校待建,根据龙华教育局2024年最新的学区划分,小初学区都是划分在华南实验学校。
家门口的红山中学民治校区(规划名:华南物流园土地整备利益统筹学校),于今年2月主体结构封顶。
这所72班九年一贯制学校,以省一级标准建设,可提供3360个优质学位。其“立体园林+立体街区”的创新设计,通过二层平台串联教学、活动与景观空间,旨在打造与城市融合的友好型校园。
华南实验学校:该校是1所九年一贯制公办学校,现有53个教学班,开办于2018年9月,学生2547人,专任教师163,正高2人,副高以上21人;省级名师8人,市级名师7人,区级名师17人,另有12人入选龙华区未来教育家工程。
生态配套
项目1公里左右的明治体育公园
中建鹏宸云筑项目分为东、西两个地块开发。总占地4.2万,总建面31万,计容积率5.37,总户数1992户,东区1016户,西区976户,总停车位2155个,东区1059个,西区1096个停车位
东区:占地约2.1万㎡,容积率5.28,包含住宅、商业、文化活动室、老年人日间照料中心和其他基础配套设施。1栋、2栋总高47F,3T6户;3栋、5栋总高32F,2T6户;6栋总高32F,2T5户;4栋属于商业,总高2层。
西区:占地2.2万㎡,容积率5.16,包含住宅、商业、幼儿园学校和其它基础配套设施。7栋栋总高47F,3T6户;8栋、9栋、10栋总高32F,2T5户;11栋总高46F,3T6户,2T5户;1栋是幼儿园。
西区相比东区不一样的是景观要好点,遮挡部分没有那么多,前面的产业楼大概也就是10层以内,也就是超过这个高度基本能看到湖景,但是西区园林没有东区那么丰富,东区有泳池西区没有。
东区1号楼折后价
81㎡:折后416-462w
91㎡:折后467-530w
107㎡:折后536-602w
126㎡:折后663-737w
东区91的467万起,由于东区小2平米总价450多万,横厅103的相比东区107小4平米总价低20万左右
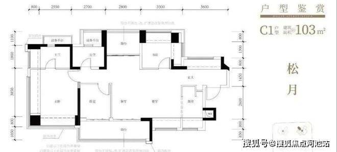
在售的西区户型:
△6栋104㎡样板房,即将加推8栋0304也有这个景观朝向,其中03的户型比较接近,04因为主卧只有一面朝湖,另外一面朝花园
△这是早期其他栋的124㎡样板房视频,跟现在的118一模一样格局
而品质,更蕴于细节中。
项目配备了包括东芝、方太、科勒等在内的一线品牌精装,从中央空调、智能厨卫到耐用五金,所见之处皆是诚意。这意味着,业主收获的不仅是一个居住空间,更是一个省心无忧的质感美居。
看完以上关于我们深圳龙华梅林关中建鹏宸云筑详细介绍,你已对这个楼盘有了初步了解吧,买房是人生大事,容不得半点含糊!拒绝中介虚报房价、拒绝浪费您的宝贵时间跑冤枉路,如果您对我们楼盘还有任何疑问请直接拨打中建鹏宸云筑开发商官方电话:400 811 3080(全国唯一售楼处免费直通热线,中介/自媒体请勿扰)。帮您分配我们楼盘内场金牌现场销售一对一进行对接,通过聊天软件同步样板间实拍视频、楼盘最新图文资料,从楼盘真实优缺点、户型朝向分析,到楼盘专属购房优惠、银行最新LPR利率、对应入学积分具体标准,所有核心问题如实细致讲解,全程免费无套路,你可以先不用到楼盘现场,就能把楼盘摸得一清二楚。【中建鹏宸云筑开发商400热线直连·非中介·合规透明】提醒一下:因近期营销中心看房人数较多,参观样板间采取预约制,为了不影响您的行程,过来楼盘实地看房之前请记得拨打开发商400电话进行在线预约,感谢您对我们工作的支持与配合,如果您是专程从外地过来深圳考虑买房置业的话,也可以来电预约安排专车接送看房,包接包送!
声明:本文由入驻焦点开放平台的作者撰写,除焦点官方账号外,观点仅代表作者本人,不代表焦点立场。
