【金地环湾城】福田高端豪宅,唯一在售大户型,125-270平海景3-5房,红岭集团红树林
扫描到手机,新闻随时看
扫一扫,用手机看文章
更加方便分享给朋友
深圳福田【金地环湾城】
深圳『金地·环湾城』2023年9月8日正式取得预售证,于2023年9月16号正式开盘,单价8.5万/㎡起带装修,预约看房价格更优惠!更多详情欢迎咨询金地环湾城开发商售楼处咨询/预约电话:4008113080,中介勿扰!
首推 2-3 单元,建面约 125-183-253-270㎡户型,2单元还有74㎡两房户型,套数不多,以及 125-271㎡复式住宅
从效果图看起来环湾城确实很高大上,加上金地操刀过不少高端项目,实力杠杠滴。
01-项目基础信息-
金地环湾城03地块由4栋住宅和2栋公寓组成,占地面积 21889.28㎡,建筑面积约 16.8万㎡,容积率约8-9,车位比1:1.3
可售商品房面积,75-125-188-252-270㎡,3+1、4+1房户型,可售住宅约800多套,首推的2/3单元约400套
02-项目位置与产品定位-

金地环湾城位于深圳市福田“大金沙”片区,福强路与沙嘴路交汇处,0距离地铁7号线沙尾站
超百万平米的综合体大城,含SHOPPING MALL、总部办公、国际顶奢酒店(大湾区首座Gapella(嘉佩乐)、文娱、高端住宅及公寓、学校/幼儿园、公园绿地等超多元的八大业态。

03-商业配套-
『金地环湾城』自带15.2万㎡集中式商业,购物娱乐家门口就能搞定
此外项目距离中洲C Future City16万㎡商业、京基kkone10万㎡购物广场2.5公里
04-交通情况-
地铁7号线沙尾站就在楼下,还有规划中的22号线上沙站
自驾方面,沙嘴路、福强路连接接、城市主干道滨河大道,开车到福田中心约13分钟,到南山深圳湾约15分钟
05-教育资源-
『金地环湾城』配建一所72班9年制公立学校,(目前确定是:红岭教育集团旗下的红树林校区)
目前学区划分,小学是福田区绿洲小学,红岭实验学校(上沙)初中部,排名都比较靠后
06-日照模拟-
金地环湾城采用的是半围合适布局,楼层的高低及朝向不同,日照时间差距较大
日照模拟效果来看,冬季最差的仅1小时日照时间

首批入市户型-
二单元,四梯六户/总高60F,避难层分布在12、28、44F
建面约74㎡两房(5-29F)、125㎡3 + 1 房,其中约33F以上有125㎡复式户型(标准复式层高)
三单元,四梯三户/总高51F,避难层分布在11、26、40F
5F-25F两边端头位是253平㎡四房,中间188㎡可三改四房户型
27F-51F,两边端头位是270㎡户型,中间270㎡复式户型(标准复式层高)

约74㎡竖厅两房两厅一卫,东南朝向,这个户型套数不多,低总价对于纯刚需群体比较友好

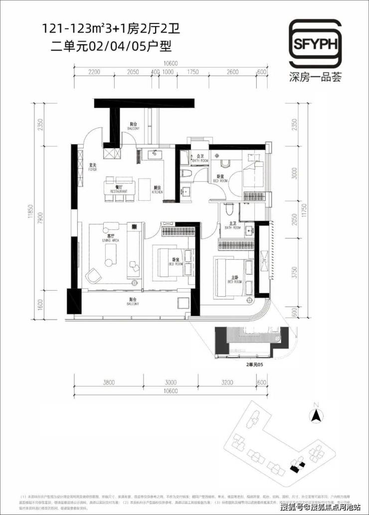
约121-123㎡3+1房2厅2卫,分布在02/04/05户型,三个卧室都中规中矩,小阳台外侧是花池直接可以使用到,测算后小阳台+花池接近有4㎡,做成书房使用足够了
约125-127㎡3+1房2厅2卫,双龙抱珠户型,厨房做了开放式设计,主卧L型转角阳台明亮大气,小阳台套内有5㎡完全可以做个房间使用
约123-126㎡3+1房2厅2卫,通透横厅设计,7m多餐客厅开间明亮大气,缺点在于主朝向在西北、小阳台做个房间使用又太小
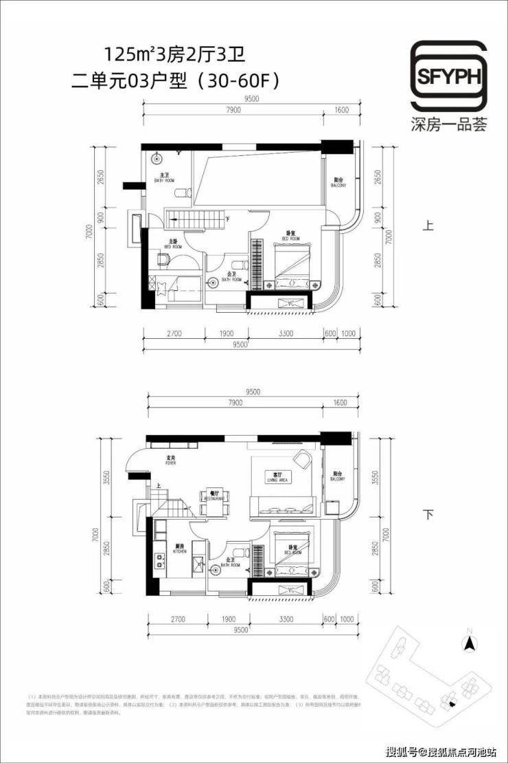
约125㎡3房2厅3卫(标准层高复式户型)分布在二单元03户型30-60楼
约183㎡4房2厅3卫双套房,分布在三单元03户型5-25楼,专梯入户,中西厨一体化设计
约253㎡4+1房2厅4卫,(分布在三单元01/02户型,5-25楼)南北通透三阳台设计,电梯厅的位置可以利用到
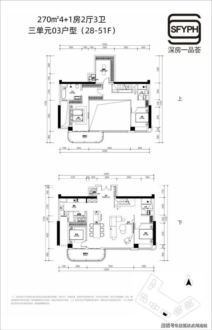
约270㎡4+1房2厅4卫,(分布在三单元01/02户型,27-51楼,高楼层海景好)253㎡户型放大版,适合追求空间感群体
约270㎡4+1房2厅3卫(标准层高复式户型)中空客厅视觉效果更加开阔,要求客厅面积要足够大,才可以体现尊贵感、豪华感
金地环湾城优点总结:

1、交通便利,与地铁7号线沙尾站0距离,规划中的22号线;
2、楼盘都是超高层建筑,目前现状可看红树林海景;
3、福田少有的大体量综合体住宅新盘,金地集团口碑不错;
4、效果图看规划挺高大上,具体还是看实际的品质;
5、车位相对充裕。
【深圳金地环湾城开发商售楼处咨询/预约电话:☎️400-811-3080(中介勿扰)】
✅ 过来楼盘售楼处现场参观样板房,请记得提前拨打电话进行在线预约,感谢配合!
注意:本楼盘开发商售楼部400电话没有设置任何“分机号”,拨打前请认真识别,注意保护个人隐私!谨防上当!
免责声明🔉:
以上所发布的关于深圳福田金地环湾城楼盘相关介绍详情仅供您购房前参考,以上所有关于本楼盘的图文资料及说明请以最终项目批文及双方在楼盘营销中心现场签署的买卖最终合同为准;本图文内容如无意中侵犯到某方权益,请联系我们将会及时处理。
声明:本文由入驻焦点开放平台的作者撰写,除焦点官方账号外,观点仅代表作者本人,不代表焦点立场。
