2025年·深圳满京华金硕臻府首页网站-满京华金硕臻府楼盘详情-满京华金硕臻府楼盘测评-最新房价+户型图+交通+小区配套环境
扫描到手机,新闻随时看
扫一扫,用手机看文章
更加方便分享给朋友
最新消息:满京华金硕臻府大户型,推出的大平层138-204㎡!本次推出1栋1/2/3单元,共420套房源,面积有138-139㎡的4房2厅2卫,202-204㎡的4房2厅3卫户型,作为光明顶豪楼盘,金硕臻府做到了一梯一户,专梯入户的奢阔大空间,3.15米层高,车位比1比1.6,其中光明仅有的204平大户型基本是千万起步门槛,预计在2026年10月份交房,138平户型带精装交房,204平户型带简装交房。
如需了解更多关于我们楼盘最新消息、剩余房源、优惠活动、房价走势等情况,欢迎咨询满京华金硕臻府开发商售楼处电话:400 880 7297(已认证)。
【深圳满京华金硕臻府开发商售楼处现场销售电话📞: 400-880-7297 中介勿扰】
温馨提示:本楼盘暂不接受临时到访,过来看房请提前来电预约,感谢您的配合!
项目区位
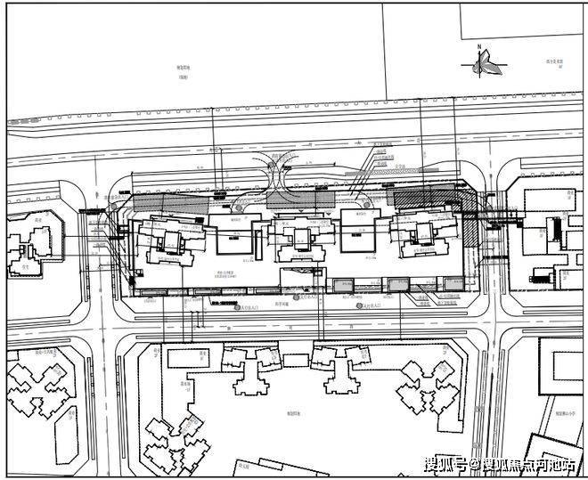
金硕臻府,由满京华集团开发,位于光明区光明中心区光辉大道与狮山三街交汇处,项目所在区域是光明规划最宜居,居住小区板块最大的片区,北侧靠近科学公园,东侧及南侧是深圳小学光明学校狮山校区及初中校区,距离最近的6号地铁线“光明站”约800米。
满京华金硕,前身为光明狮山利益统筹项目,由满京华集团全盘操刀,涵盖有10块用地,总占地面积约10.9万㎡,总建筑面积约32.38万㎡,其中住宅用地有7块,返还用地1块,公共绿化用地2块,住宅用地有:满京华金硕和府满京华金硕瑞府满京华金硕臻府满京华金硕华府满京华金硕悦府满京华金硕嘉府
项目介绍
满京华金硕臻府,总占地面积约1.4万㎡,总建筑面积12.22万㎡,计容建筑面积约8.97万㎡,容积率5.38,绿化率40.01%,共由3栋总高33-41层的住宅组成,其中1栋1单元住宅44F,1栋2单元住宅40F,1栋3单元住宅36F。
总规划420户,全部都是商品房住宅,3梯4户设计,地下3层,总规划661个车位,车位占比约1:1.57。
平面图及户型图
深圳满京华金硕臻府开发商售楼处电话 400-880-7297(中介勿扰)
过来售楼中心看房请提前预约,可尊享内部特惠,价格包您满意!
为您安排楼盘内场专业销售人员一对一接待服务!让你买的放心,住的舒心!
免责声明🔉:
以上所发布的关于楼盘相关图文信息仅供您买房前参考,以上所有关于本楼盘的图文资料及说明请以最终以项目批文及双方在楼盘营销中心现场签署的买卖最终合同为准;本图文内容如无意中侵犯到某方权益,请联系我们将会及时处理。
声明:本文由入驻焦点开放平台的作者撰写,除焦点官方账号外,观点仅代表作者本人,不代表焦点立场。
